Nowoczesny apartament z widokiem na winnice | 84 m² | 2 sypialnie | Basen | Garaż podziemny | Hondón de las Nieves, Costa Blanca
Z przyjemnością prezentujemy nowoczesne apartamenty położone w sercu malowniczej doliny Hondón de las Nieves w prowincji Alicante. To idealna propozycja dla osób szukających spokoju, klimatu śródziemnomorskiego oraz widoków na gaje oliwne, migdałowce i lokalne winnice.
Lokalizacja:
Hondón de las Nieves to spokojna miejscowość zlokalizowana w południowo-zachodniej części prowincji Alicante, 20 minut od Elche i 30 km od lotniska w Alicante. Otoczona jest przez górskie pasmo Crevillente, co zapewnia nie tylko walory krajobrazowe, ale i naturalną ochronę klimatyczną. W okolicy znajdują się sklepy, piekarnie, restauracje, bary i inne niezbędne punkty usługowe.
Układ i standard apartamentu:
-
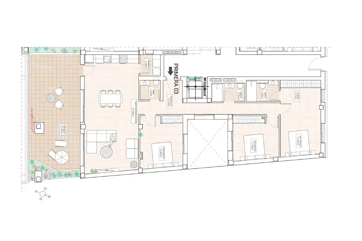
Powierzchnia: 84 m²
-
2 lub 3 sypialnie, 2 łazienki
-
Salon z otwartą kuchnią i wyjściem na balkon
-
Główna sypialnia z prywatną łazienką
-
Nowoczesny design i funkcjonalny układ pomieszczeń
-
Balkon z panoramicznym widokiem na winnice
Udogodnienia w inwestycji:
-
Basen osiedlowy
-
Podziemne miejsce parkingowe
-
Komórka lokatorska
-
Winda
-
Preinstalacja klimatyzacji
Dodatkowe informacje:
-
Rynek pierwotny
-
Cena: od 205 000 €
-
Referencja: Vineyard Views
-
Klimat: ponad 300 dni słonecznych w roku, idealny dla miłośników przyrody i spokojnego stylu życia
Zapraszamy do kontaktu i poznania pełnej oferty:
Fabian Bokś
📞 503 668 575
✉️ biuro@nieruchomosci-boks.pl
✉️ fabian@nieruchomosci-boks.pl
Bokś Nieruchomości













