Lokal na wynajem
10 000 zł
370 m2




1 / 4
Szczegóły ogłoszenia
- Symbol oferty MDI-LW-4134
- Typ oferty lokal na wynajem
- Czynsz wynajmu 10 000 zł / miesiąc
- Charakterystyka mieszkania 370 m2
- Budynek handlowo-usługowy
- Rozkład mieszkania parter piętro
- Instalacje dobre
- Kaucja jednomiesięczna
- Okna PCV
- Stan lokalu bardzo dobry
- Umeblowanie puste
Lokalizacja
- Adres kujawsko-pomorskie, aleksandrowski, Aleksandrów Kujawski (gm)
Opis nieruchomości
Na wynajem część kamienicy z 2005 roku położonej w ścisłym centrum Aleksandrowa Kujawskiego przy głównej ulicy miasta. Bardzo duże natężenie ruchu pieszego i samochodowego. Duże witryny wystawowe.
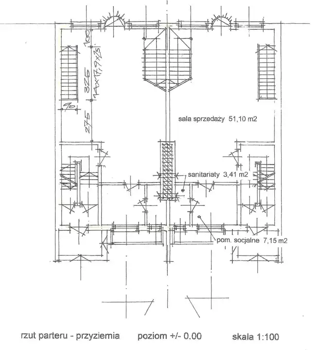
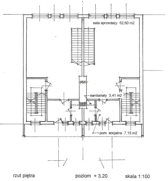
Cześć przeznaczona na wynajem to 370 m2 powierzchni całkowitej rozłożonej na dwóch kondygnacjach naziemnych i jednej podziemnej. Część podziemna to dwa pomieszczenia magazynowe (2 x 48 m2) i dwie kotłownie (2 x 14 m2). Na niskim parterze mamy dwie sale sprzedaży (2 x 51 m2), dwa pom. socjalne (2 x 7 m2) oraz dwa sanitariaty (2 x 3 m2). Rozkład pomieszczeń na parterze i piętrze jest identyczny.
Nieruchomość składa się z dwóch segmentów w zabudowie szeregowej z osobnym ogrzewaniem olejowym i opomiarowaniem. Na parterze i piętrze ogrzewanie podłogowe zaś w piwnicy grzejniki.
Nieruchomość doskonale nadaje się na różnego rodzaju działalność biurową czy usługową, idealna na prowadzenie sali zabaw dla dzieci, szkołę tańca czy też z przeznaczeniem dla samorządu. Parter i piętro z dużymi witrynami.
Możliwość podnajmu części powierzchni. Do ceny najmu należy doliczyć podatek vat 23%.
Cześć przeznaczona na wynajem to 370 m2 powierzchni całkowitej rozłożonej na dwóch kondygnacjach naziemnych i jednej podziemnej. Część podziemna to dwa pomieszczenia magazynowe (2 x 48 m2) i dwie kotłownie (2 x 14 m2). Na niskim parterze mamy dwie sale sprzedaży (2 x 51 m2), dwa pom. socjalne (2 x 7 m2) oraz dwa sanitariaty (2 x 3 m2). Rozkład pomieszczeń na parterze i piętrze jest identyczny.
Nieruchomość składa się z dwóch segmentów w zabudowie szeregowej z osobnym ogrzewaniem olejowym i opomiarowaniem. Na parterze i piętrze ogrzewanie podłogowe zaś w piwnicy grzejniki.
Nieruchomość doskonale nadaje się na różnego rodzaju działalność biurową czy usługową, idealna na prowadzenie sali zabaw dla dzieci, szkołę tańca czy też z przeznaczeniem dla samorządu. Parter i piętro z dużymi witrynami.
Możliwość podnajmu części powierzchni. Do ceny najmu należy doliczyć podatek vat 23%.
Nota prawna
Opis oferty zawarty na stronie internetowej sporządzany jest na podstawie oględzin nieruchomości oraz informacji uzyskanych od właściciela, może podlegać aktualizacji i nie stanowi oferty określonej w art. 66 i następnych K.C.
Formularz kontaktowy