Działka na sprzedaż












Szczegóły ogłoszenia
- Symbol oferty JAG-GS-12979
- Typ oferty działka na sprzedaż
- Cena 199 900 zł
- Charakterystyka mieszkania 880 m2
- Media Woda: na działce; Kanalizacja: szambo; Prąd: na działce; Gaz: na działce
- Bezpieczeństwo ogrodzenie działki: brak
- Dojazd droga utwardzona
- Działka Niezagospodarowana, płaska, prostokąt
- Otoczenie las
Lokalizacja
- Adres kujawsko-pomorskie, Białe Błota, Murowaniec
Opis nieruchomości
Oferta wyłącznie w biurze JAGŁA NIERUCHOMOŚCI -
na sprzedaż działka z wydanym pozwoleniem na budowę domu jednorodzinnego
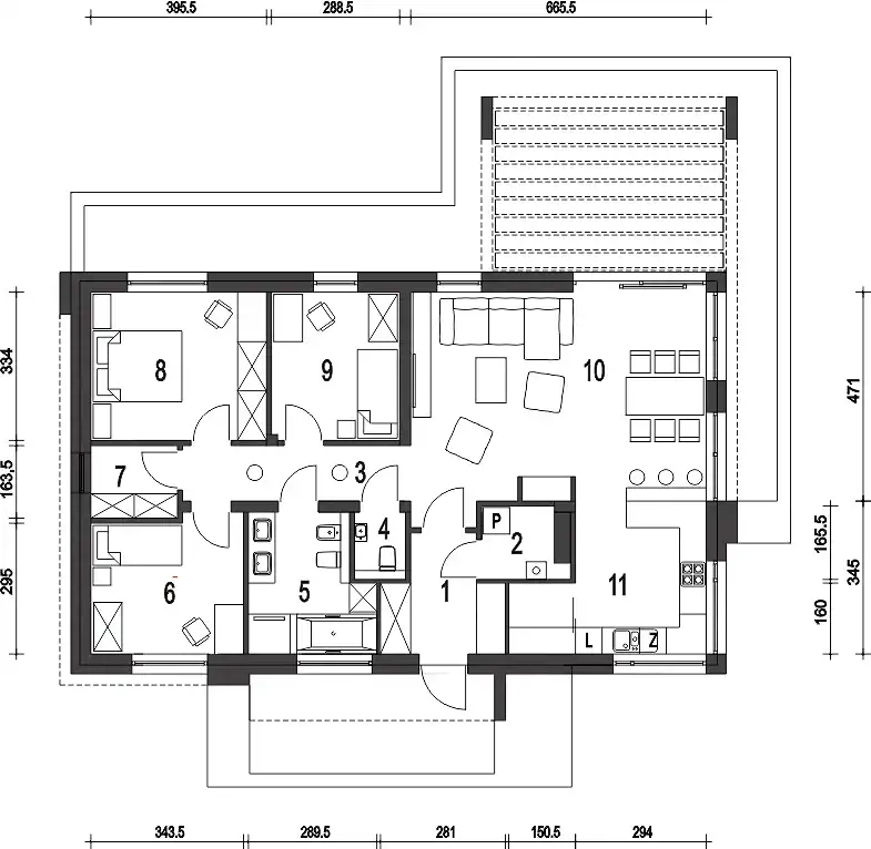
PROJEKT - "Kalikst bez garażu"
Rozpoczęta budowa - zostały wylane fundamenty.
POWIERZCHNIA - 880 m2
KSZTAŁT - prostokąt
SZEROKOŚĆ FRONTU od drogi - 25 m
DŁUGOŚĆ DZIAŁKI - 35 m
MEDIA - prąd, woda, gaz na działce, szambo zbiorcze dla całego osiedla
DOJAZD - droga gruntowa utwardzona
TEREN - płaski, niezadrzewiony, wokół osiedla las
ZABUDOWA - tylko domy jednorodzinne w nowoczesnej stylistyce
WARUNKI ZABUDOWY - aktualne z 7 października 2021 r.,
budynek mieszkalny jednorodzinny w układzie zabudowy wolno stojącej wraz z wewnętrzną instalacją gazu w budynku, zewnętrzną instalacją gazu oraz wewnętrzną elektroenergetyczną linią zasilającą WLZ
Działka znajduje się w ciekawym miejscu- dużo zieleni - otulina leśna.
Bardzo ciekawe miejsce, osłonięte od ruchliwych dróg, bardzo dobrze nasłonecznione.
Zapraszam na prezentację lub po więcej informacji
Marek Tomaszewski
telef. 5333 99924