Mieszkanie na sprzedaż








Szczegóły ogłoszenia
- Symbol oferty KNGN-MS-1381
- Typ oferty mieszkanie na sprzedaż
- Cena 250 000 zł
- Charakterystyka mieszkania 26.13 m2, 2 pokoje
- Budynek blok; rok budowy: 2023
- Rozkład mieszkania 1p piętro
- Media Ogrzewanie: pompa ciepła; Woda: ciepła - terma; Gaz: brak
- Dojazd asfalt
- Garaż brak
- Instalacje dobre
- Okna PCV
- Otoczenie rzeka
- Stan lokalu bardzo dobry
- Technologia budowlana beton, cegła
- Umeblowanie do uzgodnienia
Lokalizacja
- Adres kujawsko-pomorskie, Białe Błota, Łochowo
Opis nieruchomości
Sprzedam kawalerkę z dużą garderobą po generalnym remoncie.
Nowa kompletna łazienka, nowa kompletna kuchnia wraz z lodówką i płytą indukcyjną.
Nieruchomość położona na 1 piętrze w 2-kondygnacyjnym budynku wielorodzinnym przy Kanale Noteckim.
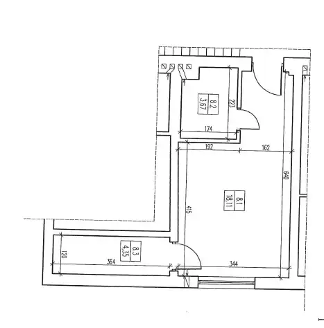
Mieszkanie o powierzchni łącznej 26,13m2:
- łazienka: 3.67m2,
- salon z aneksem: 18.11m2,
- garderoba: 4.35m2.
Rzut mieszkania załączony w galerii zdjęć.
Lokal po kompleksowym remoncie, m.in:
- nowa instalacja elektryczna,
- nowa instalacja wod.-kan.,
- wymieniona stolarka okienno-drzwiowa,
- nowe tynki i gipsy.
Całość wykończona i umeblowana.
Ogrzewanie centralne / zamontowane grzejniki we wszystkich pomieszczeniach.
Opomiarowane media wg własnego zużycia.
Utworzona Wspólnota mieszkaniowa.
Budynek w bardzo dobrym stanie technicznym m.in.:
- wyremontowana klatka schodowa,
- wykonana elewacja budynku.
Posiadamy jeszcze mieszkania w tej samej lokalizacji o metrażu:
50m2 po remoncie w cenie 360 000zł.
24,81m2 + 21,57m2 - dwupak- 380 000zł.
25,08m2 - 250 000zł.
Zapraszam na prezentację.
Niniejsza informacja nie stanowi oferty handlowej w rozumieniu art. 66 kodeksu cywilnego.