Mieszkanie na sprzedaż













Szczegóły ogłoszenia
- Symbol oferty PRN-MS-7359
- Typ oferty mieszkanie na sprzedaż
- Cena 394 230 zł
- Charakterystyka mieszkania 46.38 m2, 2 pokoje
- Budynek budynek wielorodzinny
- Rozkład mieszkania 1p piętro
- Media Ogrzewanie: centralne; Woda: jest; Gaz: brak
- Instalacje nowe
- Okna PCV
- Stan lokalu do wprowadzenia
- Technologia budowlana cegła
Lokalizacja
- Adres kujawsko-pomorskie, Białe Błota, Łochowo
Opis nieruchomości
OPIS OFERTY:
Oferujemy na sprzedaż dwa w pełni wykończone i umeblowane mieszkania w cenie jednego – idealna propozycja inwestycyjna dla osób poszukujących podwójnego źródła dochodu z najmu!
Lokal mieści się w świetnej lokalizacji przy ul. Szosa Bydgoska w Łochowie. Nieruchomość po generalnym remoncie, gotowa do natychmiastowego wprowadzenia najemców.
UKŁAD POMIESZCZEŃ:
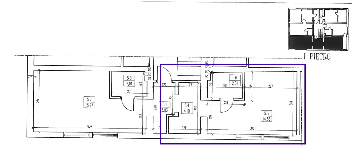
Nieruchomość o powierzchni 46,38m2 składa się z dwóch oddzielnych mieszkań:
Mieszkanie 5A
• pokój z aneksem kuchennym - 14,66m2
• łazienka z prysznicem – 2,81m2
• przedpokój - 4,10m2
Mieszkanie 5B
• pokój z aneksem kuchennym - 18,97m2
• łazienka z prysznicem - 2,81m2
• przedpokój - 3,03 m2
Oba lokale zostały przemyślanie zaprojektowane. Funkcjonalne i jasne pokoje z aneksem kuchennym, zaaranżowane z myślą o maksymalnym wykorzystaniu przestrzeni.
Część wypoczynkowa zapewnia miejsce do relaksu i codziennego funkcjonowania, a aneks kuchenny wykonany na wymiar przez stolarza został w pełni wyposażony w niezbędną zabudowę oraz nową płytę indukcyjną.
Nowoczesne wykończenie i spójna kolorystyka tworzą komfortową przestrzeń idealną pod wynajem.
STANDARD:
• mieszkania po generalnym remoncie
• nowe instalacje: elektryczna oraz wodno-kanalizacyjna
• nowe okna i drzwi wejściowe
• panele w częściach dziennych, drewnopodobne płytki w łazienkach
• kuchnie wykonane na wymiar przez stolarza
• nowe płyty indukcyjne
• nowoczesne, estetyczne łazienki
Wyposażenie mieszkania 5A:
• zabudowa kuchenna, płyta indukcyjna, zlewozmywak
• łazienka z szafką umywalkową, WC i prysznicem
Wyposażenie mieszkania 5B:
• zabudowa kuchenna, nowa płyta indukcyjna, zlewozmywak, lodówka
• kanapa, fotele, stół
• łazienka z szafką umywalkową, WC i prysznicem
W cenie pozostaje kompletne umeblowanie widoczne na zdjęciach – mieszkania są gotowe pod klucz.
BUDYNEK:
• kameralny budynek wielorodzinny
• budynek ocieplony i po remoncie elewacji
• wymienione instalacje wod. - kan. oraz elektryczne
• zadbana klatka schodowa
• nieruchomość ogrodzona
• miejsca parkingowe dla mieszkańców
LOKALIZACJA:
• Łochowo, ul. Szosa Bydgoska
• świetna infrastruktura: sklepy, komunikacja, usługi
• szybki dojazd do Bydgoszczy
INFORMACJE DODATKOWE:
• oferta idealna dla inwestora – dwa niezależne mieszkania generujące podwójny dochód
• pełne wyposażenie w cenie
• natychmiastowa możliwość rozpoczęcia najmu
• wysoki standard wykończenia
Zapraszam na prezentację!