Lokal na wynajem








Szczegóły ogłoszenia
- Symbol oferty AMBS-LW-1294
- Typ oferty lokal na wynajem
- Czynsz wynajmu 12 135 zł / miesiąc
- Charakterystyka mieszkania 227.16 m2
- Media Ogrzewanie: C.O. miejskie
- Dojazd asfalt
- Kaucja trzymiesięczna
- Okna PCV
- Stan lokalu częściowo po remoncie
- Umeblowanie brak
Lokalizacja
- Adres podlaskie, Białystok, Centrum
Opis nieruchomości
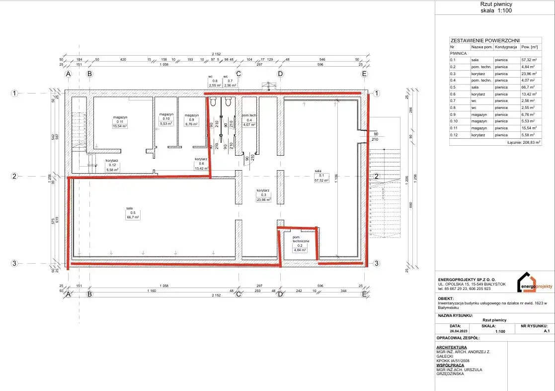
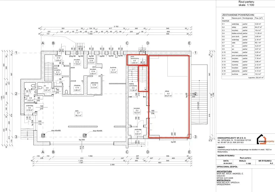
Przedmiot najmu są dwa lokale - jeden znajdujący się na parterze (ok. 70 m2) , drugi w piwnicy (ok. 157m2). Dużym udogodnieniem dla Najemcy jest możliwość korzystania z ogródka (ok. 112 m2). Dokładny rozkład pomieszczeń został umieszczony na rzucie technicznym.
Wykonane prace po stronie Wynajmującego:
- nowe drzwi wejściowych do lokalu od korytarza,
- nowa witryny (okna) od ul. Mikołaja,
- nowe wyjście na taras – drzwi dwuskrzydłowe,
- przygotowanie pod windę towarową,
- nowe drzwi wyjściowe zewnętrzne z tyłu budynku,
- wymiana polbruku na podwórku.
Doprowadzony światłowód (internet) Orange, instalacja w budynku. Ogrzewanie miejskie ENEA Ciepło. Planowany jest również remont elewacji. Konieczność zaadoptowania lokalu we własnym zakresie. Możliwość partycypacji w kosztach remontu po stronie właściciela.
Miesięczny czynsz najmu 12.135zł netto plus VAT 23% oraz koszty eksploatacji - prąd, woda, ogrzewanie (według zużycia). Kaucja w wysokości 3 miesięcznego czynszu brutto.
Parking: bezpłatny parking na terenie działki budynku, strefa płatnego parkowania bezpośrednio przed budynkiem od ulicy Grochowej oraz od ulicy Mikołaja.
Załączone zdjęcia są wizualizacją wnętrz, które przedstawiają, jak lokal może wyglądać po wykończeniu. Wizualizacje te mają charakter przykładowy i mogą inspirować przyszłych najemców w procesie urządzania.
Lokal dostępny od ok. 01 stycznia 2026r.