Obiekt na sprzedaż
14 000 000 zł
2 422 m2



1 / 3
Szczegóły ogłoszenia
- Symbol oferty ESC-BS-827
- Typ oferty obiekt na sprzedaż
- Cena 14 000 000 zł
- Charakterystyka mieszkania 2422 m2
- Budynek rok budowy: 2013
- Media Ogrzewanie: C.O. GAZOWE; Woda: jest; Kanalizacja: tak; Prąd: jest; Gaz: jest
- Miejsce parkingowe Tak
- Dojazd ASFALTOWA
- Otoczenie działki zabudowane
Lokalizacja
- Adres podlaskie, Białystok, Zawady
Opis nieruchomości
Obiekt usługowy w północnej części Białegostoku.
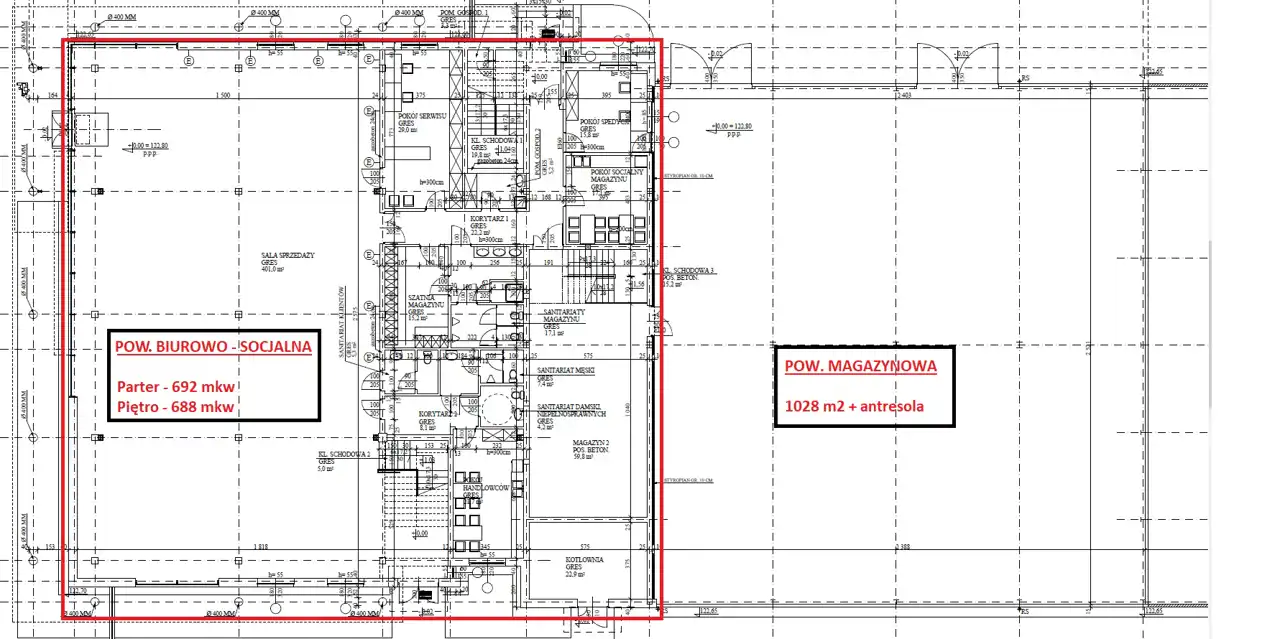
Do sprzedaży nieruchomość zabudowana budynkiem usługowym o łącznej powierzchni 2422 m2. Obiekt został wzniesiony na działce o powierzchni 7087 m2.
Część biurowa - dwukondygnacyjna, murowana z dużymi przeszkleniami fasadowymi. Powierzchnia parteru - 692m2, powierzchnia piętra - 688 m2. Wnętrze klimatyzowane i wentylowane z odzyskiem ciepła (rekuperacja).
Część magazynowa o konstrukcji stalowej z poszyciem z płyty warstwowej wypełnionej styropianem. Powierzchnia 1028 m2 + antresola (około 500m2).. Wysokość od 7,5 m do 8,3 m.
Polecamy.
Do sprzedaży nieruchomość zabudowana budynkiem usługowym o łącznej powierzchni 2422 m2. Obiekt został wzniesiony na działce o powierzchni 7087 m2.
Część biurowa - dwukondygnacyjna, murowana z dużymi przeszkleniami fasadowymi. Powierzchnia parteru - 692m2, powierzchnia piętra - 688 m2. Wnętrze klimatyzowane i wentylowane z odzyskiem ciepła (rekuperacja).
Część magazynowa o konstrukcji stalowej z poszyciem z płyty warstwowej wypełnionej styropianem. Powierzchnia 1028 m2 + antresola (około 500m2).. Wysokość od 7,5 m do 8,3 m.
- LOKALIZACJA: północna część Białegostoku w sąsiedztwie parku handlowego oraz zabudowy usługowej, z dogodnym połączeniem komunikacyjnym do Trasy Generalskiej;
- FUNKCJA: handlowo-usługowa połączona z magazynem wysokiego składowania. Na parterze przewidziano część ekspozycyjną wraz z działem handlowym i częścią socjalną oraz magazyn wysokiego składowania z dobudowaną antresolą o nośności 500kg/m2. Piętro użytkowane jest na cele biurowe.
Polecamy.
Nota prawna
Opis oferty zawarty na stronie internetowej sporządzany jest na podstawie oględzin nieruchomości oraz informacji uzyskanych od właściciela, może podlegać aktualizacji i nie stanowi oferty określonej w art. 66 i następnych K.C.
Kalkulator kredytowy
Formularz kontaktowy