Działka na sprzedaż









Szczegóły ogłoszenia
- Symbol oferty NHM-GS-35640
- Typ oferty działka na sprzedaż
- Cena 440 000 zł
- Charakterystyka mieszkania 13900 m2
- Media Woda: jest; Kanalizacja: brak; Prąd: jest; Gaz: brak
- Bezpieczeństwo ogrodzenie działki: brak
- Dojazd asfalt
- Działka Niezagospodarowana, płaska, w kształcie litery L
- Otoczenie las
Lokalizacja
- Adres dolnośląskie, oleśnicki, Bierutów (gw)
Opis nieruchomości
REZERWACJA
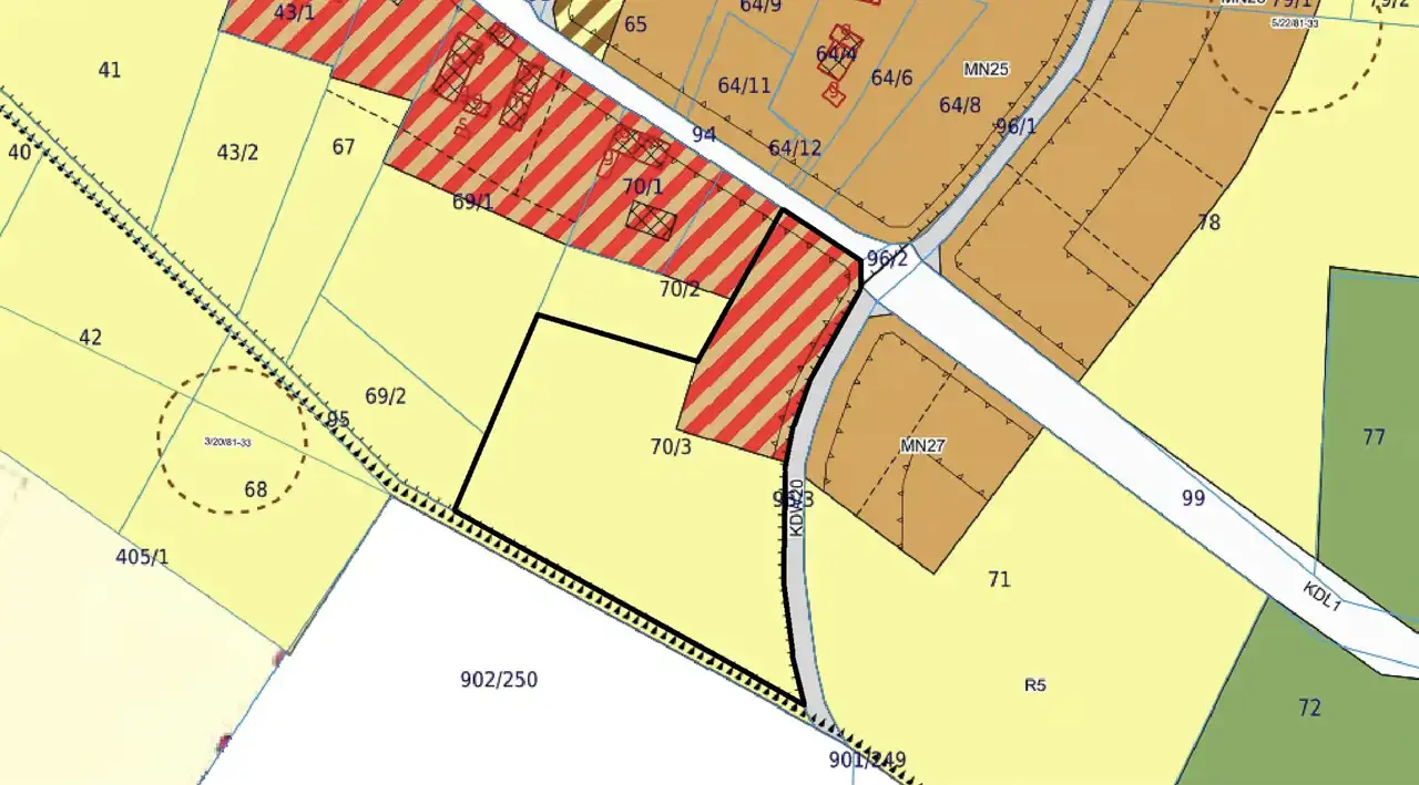
W ofercie grunt o powierzchni 13 900 m² – Radzieszyn, gmina Bierutów
Szukasz działki z ogromnym potencjałem w spokojnej, wiejskiej okolicy? Ta oferta jest dla Ciebie!
Powierzchnia całkowita: 13 900 m²
- część budowlana: 3 000 m²
- część rolna: 10 900 m²
Działka częściowo przeznaczona pod zabudowę, co daje szerokie możliwości inwestycyjne!
Bezpośredni dostęp do drogi publicznej.
Media: woda oraz prąd
Możliwości zabudowy i inwestycji:
- budowa domu jednorodzinnego
- podział na mniejsze działki budowlane
- dom z możliwością prowadzenia działalności usługowej
- zabudowa usługowa
Idealne miejsce pod stadninę koni dzięki bliskości natury i przestrzeni!
Udogodnienia:
- cicha i spokojna okolica – doskonała dla osób ceniących prywatność i bliskość przyrody
- bezpośrednie sąsiedztwo lasu gwarantuje wyjątkowy klimat i piękne widoki
Lokalizacja:
- 15 km Jelcz-Laskowice ( 17 minut )
- 10 km Bierutów (10 minut)
- 22 km Oława (20 minut)
- 28 km Brzeg (25 minut)
- 38 km Wrocław (45 minut)
To wyjątkowe miejsce, które pozwoli Ci zrealizować marzenia o życiu blisko natury lub przeprowadzeniu inwestycji z dużym potencjałem.
Działka objęta jest MPZP
- tereny zabudowy mieszkaniowej jednorodzinnej lub usług "MN/U2"
- rola "R3"
MN/U2:
1) przeznaczenie podstawowe:
a) zabudowa mieszkaniowo-usługowa,
b) zabudowa mieszkaniowa jednorodzinna,
c) zabudowa usługowa,
2) przeznaczenie uzupełniające - zabudowa zagrodowa, drogi wewnętrzne i parkingi.
Możliwość wydzielenia 2 działek budowlanych! (minimalna powierzchnia wymagana 1200 m2)
Serdecznie zapraszam do kontaktu!
Warto ze mną współpracować ponieważ:
- oferuję wsparcie przy uzyskaniu finansowania na zakup nieruchomości z opcją dodatkowych korzyści
- pomogę we wszystkich formalnościach.
- oferuję szereg innych usług związanych z zakupem nieruchomości
*Prezentowana oferta nie stanowi oferty handlowej w rozumieniu Art. 66 par. 1 Kodeksu Cywilnego, a dane w niej zawarte mają charakter jedynie informacyjny i mogą ulec zmianie.