Lokal na wynajem
0 zł
0 m2







1 / 7
Szczegóły ogłoszenia
- Symbol oferty PKP-LW-655
- Typ oferty lokal na wynajem
- Czynsz wynajmu 0 zł / miesiąc
- Charakterystyka mieszkania 0 m2
Lokalizacja
- Adres opolskie, brzeski, Brzeg
Opis nieruchomości
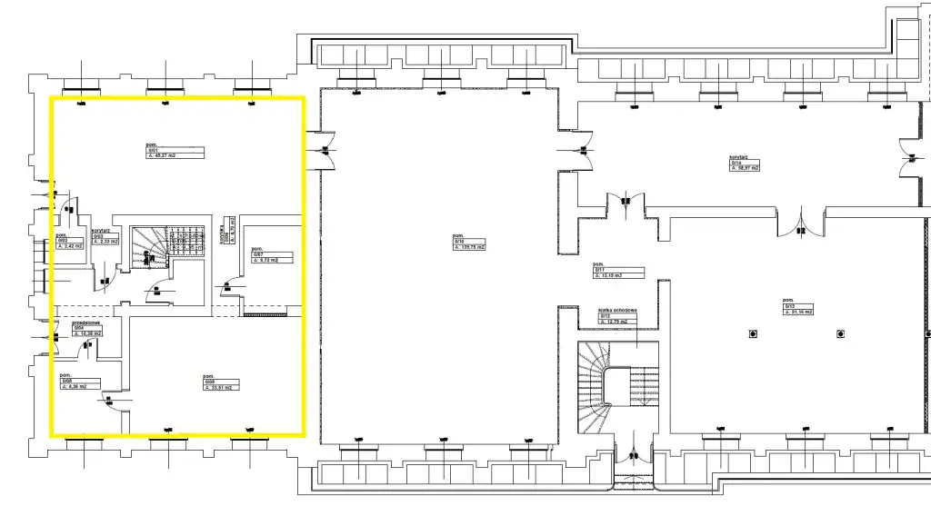
PKP S.A oferuje do wynajęcia lokal o łącznej pow. 119,71 m2 zlokalizowany na parterze wyremontowanego zabytkowego budynku dworca kolejowego w Brzegu przy ul. Plac Dworcowy 3.
W skład wchodzą następujące pomieszczenia:
- pom. 0/01 - 49,27 m2
- pom. 0/02 - 2,42 m2
- pom. 0/07 - 8,72 m2
- pom. 0/08 - 8,38 m2
- pom. 0/09 - 33,51 m2
- korytarz 0/03 - 2,33 m2
- korytarz 0/06 - 4,70 m2
- przedsionek 0/04 - 10,38 m2
Oferowana powierzchnia wyposażona jest w instalację elektryczną, centralnego ogrzewania, wodno-kanalizacyjną (doprowadzoną do budynku). Podłoga wyłożona jest płytkami, okna wymienione – PVC, dwa wejścia. Lokal w bardzo dobrym stanie technicznym.
Budynek dworca to jedna z wizytówek miasta, która położona jest tylko 1,5 km od ścisłego centrum. Zlokalizowany na linii kolejowej Katowice-Zgorzelec, stanowi istotny węzeł komunikacyjny odwiedzany nie tylko przez podróżnych.
Idealne miejsce na prowadzenie działalności handlowo-usługowej czy też biurowej.
W drodze negocjacji istnieje możliwość wynajmu części powierzchni.
Zapraszamy do kontaktu celem szczegółowego zapoznania się z ofertą.
W skład wchodzą następujące pomieszczenia:
- pom. 0/01 - 49,27 m2
- pom. 0/02 - 2,42 m2
- pom. 0/07 - 8,72 m2
- pom. 0/08 - 8,38 m2
- pom. 0/09 - 33,51 m2
- korytarz 0/03 - 2,33 m2
- korytarz 0/06 - 4,70 m2
- przedsionek 0/04 - 10,38 m2
Oferowana powierzchnia wyposażona jest w instalację elektryczną, centralnego ogrzewania, wodno-kanalizacyjną (doprowadzoną do budynku). Podłoga wyłożona jest płytkami, okna wymienione – PVC, dwa wejścia. Lokal w bardzo dobrym stanie technicznym.
Budynek dworca to jedna z wizytówek miasta, która położona jest tylko 1,5 km od ścisłego centrum. Zlokalizowany na linii kolejowej Katowice-Zgorzelec, stanowi istotny węzeł komunikacyjny odwiedzany nie tylko przez podróżnych.
Idealne miejsce na prowadzenie działalności handlowo-usługowej czy też biurowej.
W drodze negocjacji istnieje możliwość wynajmu części powierzchni.
Zapraszamy do kontaktu celem szczegółowego zapoznania się z ofertą.
Nota prawna
Opis oferty zawarty na stronie internetowej sporządzany jest na podstawie oględzin nieruchomości oraz informacji uzyskanych od właściciela, może podlegać aktualizacji i nie stanowi oferty określonej w art. 66 i następnych K.C.
Formularz kontaktowy