Hala na sprzedaż
999 999 zł
400 m2





1 / 5
Szczegóły ogłoszenia
- Symbol oferty SED-HS-1319
- Typ oferty hala na sprzedaż
- Cena 999 999 zł
- Charakterystyka mieszkania 400 m2
- Media Ogrzewanie: C.O. miejskie
- Dojazd droga utwardzona
- Liczba kondygnacji 1
- Otoczenie działki zabudowane
Lokalizacja
- Adres kujawsko-pomorskie, Bydgoszcz, Okole
Opis nieruchomości
Zapraszam do zapoznania się z ofertą sprzedaży budynku parterowej hali produkcyjno - magazynowej mieszczącej się w Bydgoszczy.
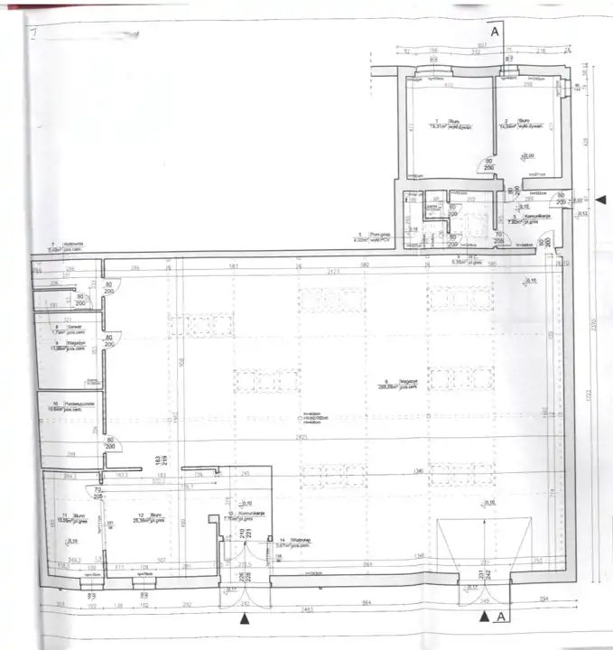
Przedmiotowa nieruchomość o powierzchni 400m2 na którą składa się 270 m² powierzchni magazynowej, natomiast 130 m² stanowią pomieszczenia biurowo socjalne.
Działka o powierzchni 926 m2 + 89m2 udziały w drogach dojazdowych. Nieruchomość posiada 2 bramy 2x2m, pomieszczenia dobrze doświetlone - okna dachowe.
Budynek parterowy, który ze względu na swoje położenie może mieć różne przeznaczenie np. magazyn, szwalnie, niewielką hurtownię itp., wyposażony jest w instalację: wodno-kanalizacyjną, instalację elektryczną, tablicę pomiarowo rozdzielcza, instalację oświetleniową, instalację gniazd wtykowych, instalację C.O.
Do budynku przynależy 6 miejsc postojowych. Dodatkowo indywidualny wjazd bramą. Plac manewrowy dla pojazdów do 3,5 tony. Większe pojazdy - możliwy rozładunek na działce przylegającej do hali mającej bezpośredni wjazd z ulicy. Teren utwardzony teren wokół hali utwardzony.
Cena Netto + VAT
*Istnieje możliwość najmu przedmiotowej nieruchomości na okres długoterminowy. *
Super lokalizacja - dzielnica Okole - zaledwie 15 minut od wjazdu na obwodnicę Bydgoszczy.
Magdalena Jaskulska-Witkowska
Pośrednik w Obrocie Nieruchomościami
Licencja nr 30113
tel: 789 564 900
mail: magdalenajaskulskawitkowska@sednonieruchomosci.pl
www.sednonieruchomosci.pl
https://www.instagram.com/sednonieruchomosci/
https://www.tiktok.com/@sedno_nieruchomosci
https://www.facebook.com/profile.php?id=10008913796282
Sedno Nieruchomości współpracuje z najlepszymi firmami w zakresie usług finansowych, znajdując dla Państwa najlepsze indywidualne rozwiązania finansowania zakupu nieruchomości oraz zapewnia niezawodną, bezpośrednią i priorytetową obsługę Państwa w renomowanej kancelarii notarialnej oraz prawnej a także do Państwa usług są nasi specjaliści ds. podatkowych, geodezyjnych oraz budowlanych.
Dokładamy wszelkich starań aby informacje dotyczące nieruchomości były możliwie rzetelne, aktualne i kompletne natomiast w związku z tym że pochodzą one od osób trzecich firma Sedno Nieruchomości nie ponosi odpowiedzialności za ich dokładność.
Niniejsza informacja nie stanowi oferty w rozumieniu Kodeksu Cywilnego.
Przedmiotowa nieruchomość o powierzchni 400m2 na którą składa się 270 m² powierzchni magazynowej, natomiast 130 m² stanowią pomieszczenia biurowo socjalne.
Działka o powierzchni 926 m2 + 89m2 udziały w drogach dojazdowych. Nieruchomość posiada 2 bramy 2x2m, pomieszczenia dobrze doświetlone - okna dachowe.
Budynek parterowy, który ze względu na swoje położenie może mieć różne przeznaczenie np. magazyn, szwalnie, niewielką hurtownię itp., wyposażony jest w instalację: wodno-kanalizacyjną, instalację elektryczną, tablicę pomiarowo rozdzielcza, instalację oświetleniową, instalację gniazd wtykowych, instalację C.O.
Do budynku przynależy 6 miejsc postojowych. Dodatkowo indywidualny wjazd bramą. Plac manewrowy dla pojazdów do 3,5 tony. Większe pojazdy - możliwy rozładunek na działce przylegającej do hali mającej bezpośredni wjazd z ulicy. Teren utwardzony teren wokół hali utwardzony.
Cena Netto + VAT
*Istnieje możliwość najmu przedmiotowej nieruchomości na okres długoterminowy. *
Super lokalizacja - dzielnica Okole - zaledwie 15 minut od wjazdu na obwodnicę Bydgoszczy.
Magdalena Jaskulska-Witkowska
Pośrednik w Obrocie Nieruchomościami
Licencja nr 30113
tel: 789 564 900
mail: magdalenajaskulskawitkowska@sednonieruchomosci.pl
www.sednonieruchomosci.pl
https://www.instagram.com/sednonieruchomosci/
https://www.tiktok.com/@sedno_nieruchomosci
https://www.facebook.com/profile.php?id=10008913796282
Sedno Nieruchomości współpracuje z najlepszymi firmami w zakresie usług finansowych, znajdując dla Państwa najlepsze indywidualne rozwiązania finansowania zakupu nieruchomości oraz zapewnia niezawodną, bezpośrednią i priorytetową obsługę Państwa w renomowanej kancelarii notarialnej oraz prawnej a także do Państwa usług są nasi specjaliści ds. podatkowych, geodezyjnych oraz budowlanych.
Dokładamy wszelkich starań aby informacje dotyczące nieruchomości były możliwie rzetelne, aktualne i kompletne natomiast w związku z tym że pochodzą one od osób trzecich firma Sedno Nieruchomości nie ponosi odpowiedzialności za ich dokładność.
Niniejsza informacja nie stanowi oferty w rozumieniu Kodeksu Cywilnego.
Nota prawna
Opis oferty zawarty na stronie internetowej sporządzany jest na podstawie oględzin nieruchomości oraz informacji uzyskanych od właściciela, może podlegać aktualizacji i nie stanowi oferty określonej w art. 66 i następnych K.C.
Kalkulator kredytowy
Formularz kontaktowy