Lokal na sprzedaż






 Szczegóły ogłoszenia 
- Symbol oferty PRN-LS-7286
 - Typ oferty lokal na sprzedaż
 - Cena 1 561 005 zł
 - Charakterystyka mieszkania 148.84 m2
 - Budynek rok budowy: 2023
 - Rozkład mieszkania parter piętro
 - Media Ogrzewanie: podłogowe; Woda: tak - miejska; Gaz: brak
 - Instalacje nowe
 - Okna PCV
 - Stan lokalu deweloperski
 
 Lokalizacja 
- Adres kujawsko-pomorskie, Bydgoszcz m., Bydgoszcz
 
 Opis nieruchomości 
OPIS OFERTY:
Oferujemy na sprzedaż atrakcyjny lokal użytkowy w nowoczesnym budynku o unikatowej bryle, położony na osiedlu Okole w Bydgoszczy.
Idealne miejsce na biuro, punkt usługowy lub lokal handlowy!
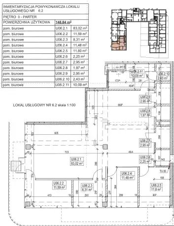
Lokal o powierzchni 148,84 m², położony jest na parterze w czteropiętrowym budynku.
UKŁAD POMIESZCZEŃ:
Stan deweloperski daje możliwość dostosowania wystroju wnętrza w zależności od wymogów przyszłego właściciela.
Powierzchnia lokalu - to 148,84 m², gdzie wyodrębnione zostały pomieszczenia wg załączonego rzutu. Do dyspozycji jest projekt aranżacji wnętrz.
STANDARD:
Przestronne wnętrze stwarza doskonałe warunki do prowadzenia działalności, swobodną aranżację i dopasowanie przestrzeni do indywidualnych potrzeb przedsiębiorcy.
Lokal zaprojektowano z myślą o komforcie i funkcjonalności:
- panoramiczne okna trzyszybowe,
- ogrzewanie podłogowe - gwarantuje komfort cieplny,
- rozprowadzone instalacje elektryczne i teletechniczne,
- przygotowanie pod klimatyzację (wyprowadzenie instalacji na dach).
Wysokość pomieszczeń kondygnacji parteru to 3,45m.
Nowoczesna przestrzeń stwarza idealne warunki do prowadzenia działalności – od biura, przez szkołę językową, po różnego rodzaju usługi.
BUDYNEK:
Obiekt to czterokondygnacyjny apartamentowiec o niepowtarzalnej, nowoczesnej bryle wzniesiony w 2023 r.
Na parterze przewidziano część usługo – handlową. Na kondygnacjach wyższych znajdują się lokale mieszkalne.
Obiekt monitorowany.
LOKALIZACJA:
Nieruchomość położona jest w doskonale skomunikowanej części miasta.
Lokalizacja w centrum zapewnia dostęp do różnorodnych usług oraz łatwą komunikację z pozostałymi dzielnicami miasta. W sąsiedztwie znajdują się liczne punkty handlowo-usługowe.
Dodatkowym atutem jest parking przeznaczony dla właścicieli i klientów obiektu.
INFORMACJE DODATKOWE:
Szacunkowe koszty utrzymania to ok.: 12zł/m² brutto.
Podana cena nieruchomości jest wartością netto, do której należy doliczyć 23% podatku VAT.
Zapraszam na prezentację!