Lokal na sprzedaż












 Szczegóły ogłoszenia 
- Symbol oferty ODOM-LS-221
 - Typ oferty lokal na sprzedaż
 - Cena 698 000 zł
 - Charakterystyka mieszkania 93.94 m2, 3 pokoje
 - Budynek obiekt handlowy
 - Rozkład mieszkania parter piętro
 - Media Ogrzewanie: miejskie; Woda: tak - miejska; Gaz: brak
 - Miejsce parkingowe Tak
 - Dojazd asfalt
 - Instalacje ELEKTRYCZNA
 - Okna PCV
 - Otoczenie zabudowa mieszana
 - Stan lokalu deweloperski
 - Winda Tak
 
 Lokalizacja 
- Adres kujawsko-pomorskie, Bydgoszcz m., Bydgoszcz
 
 Opis nieruchomości 
Nowoczesny lokal z potencjałem daje Ci 93,94 m² sukcesu i pełnej swobody kreacji
Przestronny, jasny i zaprojektowany z myślą o komforcie przedsiębiorcy. Świetna ekspozycja, duży ruch pieszy i samochodowy, szybki dojazd do centrum, to magnes na klientów i gwarancja rozwoju Twojej działalności. Lokal znajduje się na ul.Chodkiewicza to jedno z najbardziej pożądanych i tętniących życiem miejsc w Bydgoszczy. To właśnie tutaj Twój biznes może rozkwitnąć! Doskonała lokalizacja, prestiżowe otoczenie i stały przepływ klientów gwarantują maksymalną widoczność marki i realny zysk.
Idealny adres dla gastronomii, usług, handlu lub biura – stwórz tu miejsce, do którego klienci będą wracać z przyjemnością!
Standard lokalu:
Lokal mieści się w eleganckim, nowoczesnym budynku klasy premium, który przyciąga uwagę już z daleka. Duża przeszklona witryna od ulicy zapewnia doskonałą widoczność Twojej marki i wyjątkową ekspozycję produktów lub wnętrza. Niezależne, reprezentacyjne wejście podkreśla prestiż i pozwala w pełni dopasować przestrzeń do charakteru Twojego biznesu. Wnętrze to otwarta przestrzeń o ogromnym potencjale aranżacyjnym – możesz stworzyć stylowy showroom, nowoczesne biuro, klimatyczną kawiarnię lub gabinet z duszą.
To miejsce daje Ci wolność tworzenia – tutaj Twój pomysł na biznes nabierze realnego kształtu!
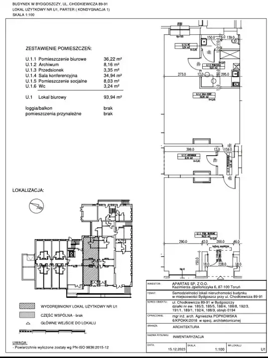
Projekt zakłada kilka możliwych rozwiązań przestrzennych – jedno z nich zostało przedstawione na dołączonym planie lokalu i składa się z :
- pomieszczenie biurowe o powierzchni 36,22 m2
- archiwum o powierzchni 8,16 m2
- przedsionek o powierzchni 3,35 m2 
- sala konferencyjna o powierzchni 34,94 m2
- pomieszczenie socjalne o powierzchni 8,03 m2
- łazienka o powierzchni 3,24 m2
Standard budynku: 
- wysokie trzyszybowe panoramiczne okna - naturalne światło przez cały dzień,,
- ogrzewanie miejskie – komfort i oszczędność energii,
- monitoring i system przeciwpożarowy – bezpieczeństwo przede wszystkim,
- z dostępem do parkingu i udogodnieniami dla klientów,
- zaawansowany system przeciwpożarowy,
- przystosowany dla ludzi z niepełnosprawnością 
- wysokość 3,5 m - przestrzeń dla kreatywnych aranżacji.
Istnieje także opcja poszerzenia zakupu o : 
- dodatkową przestrzeń do przechowywania w cenie od 39 000 zł o powierzchni 18,64 m2 
- miejsce postojowe w cenie 25 000 zł
- garażu w cenie 49 000 zł lub większego garażu z możliwością ładowania auta elektrycznego w cenie 69 000 zł
- możliwość połączenia z sąsiednim lokalem U2, tworząc powierzchnię 189 m²
Stan prawny:
Lokal stanowi pełną własność z założoną księgą wieczystą.
*** Kupujący nie płaci podatku PCC – oszczędność 2% wartości lokalu! ***
Chętnie przeprowadzę Cię bezpiecznie przez cały proces zakupu – od pierwszego kontaktu aż po przekazanie kluczy.
Zapraszam serdecznie na prezentację – to miejsce naprawdę warto zobaczyć!