Lokal na wynajem
12 350 zł
190 m2










1 / 10
Szczegóły ogłoszenia
- Symbol oferty OJN-LW-125110
- Typ oferty lokal na wynajem
- Czynsz wynajmu 12 350 zł / miesiąc
- Charakterystyka mieszkania 190 m2, 5 pokoi
- Budynek kamienica
- Rozkład mieszkania 3p piętro
- Media Ogrzewanie: C.O. GAZOWE
- Dojazd asfalt
- Kaucja dwumiesięczna, 24700 zł
- Okna PCV
- Stan lokalu do odświeżenia
- Umeblowanie częściowo umeblowane
- Winda Tak
Lokalizacja
- Adres kujawsko-pomorskie, Bydgoszcz, Stare Miasto
Opis nieruchomości
OFERTA WYNAJMU LOKALU BIUROWEGO – STARY RYNEK W BYDGOSZCZY
Zapraszamy do zapoznania się z wyjątkową ofertą wynajmu lokalu biurowego o powierzchni 190 m², zlokalizowanego w prestiżowej kamienicy na drugim piętrze na Starym Rynku w Bydgoszczy – jednej z najbardziej reprezentacyjnych i rozpoznawalnych lokalizacji w mieście.
Możliwość wynajęcia w trzech opcjach:
1. Opcja A - 190 m2 (lokal II piętro)
2. Opcja B - 376 m2 (lokal II i III piętro)
3. Opcja C - 625 m2 (lokal II, III, i IV piętro + antresola)
Lokalizacja
Lokal mieści się w sercu Bydgoszcz, w otoczeniu zabytkowej architektury, restauracji, instytucji finansowych oraz urzędów. Doskonała komunikacja miejska oraz prestiżowy adres stanowią idealne miejsce do prowadzenia działalności biznesowej, kancelarii, biura projektowego czy siedziby firmy.
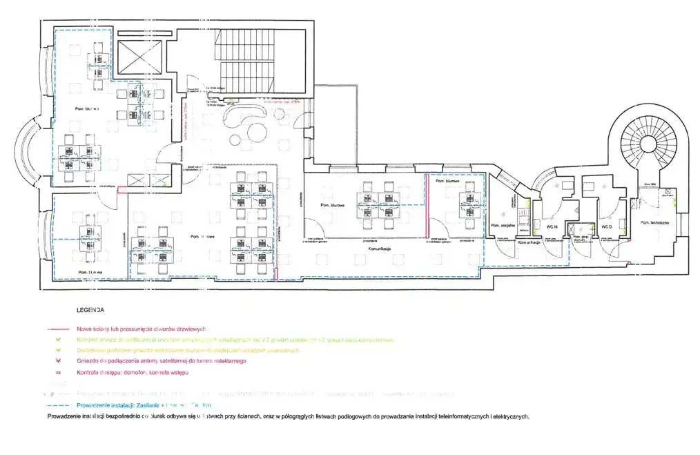
Charakterystyka lokalu
Powierzchnia 190 m² obejmuje:
- cztery przestronne pomieszczenia biurowe
- serwerownię
- dwie toalety,
- pomieszczenie socjalne - w pełni wyposażone,
- prywatny taras – stanowiący unikalną przestrzeń do spotkań lub chwili relaksu,
- wydzielona serwerownia
Standard i wyposażenie
Lokal jest w pełni przystosowany do prowadzenia nowoczesnej działalności biurowej i oferuje:
- klimatyzację,
- rozprowadzoną sieć komputerową i telewizyjną,
- system alarmowy,
- kontrolę dostępu na karty zbliżeniowe,
- system ochrony przeciwpożarowej (PPOŻ).
- Odświeżenie lokalu: Przed przekazaniem kluczy lokal zostanie profesjonalnie odmalowany oraz posprzątany.
- Bezpieczeństwo techniczne: Wszystkie przeglądy okresowe budynku są po stronie i na koszt właściciela.
- Wsparcie IT/Techniczne: Stała pomoc techniczna wliczona w czynsz najmu.
- Parking: 2 dedykowane miejsca postojowe wliczone w cenę najmu,
- Możliwość wynajęcia dodatkowych miejsc postojowych
- Lokalizacja: Prestiżowy punkt na mapie miasta, świetna komunikacja i bliskość kluczowych instytucji oraz restauracji.
· Czynsz najmu – 65 zł netto /m2
· Opłaty za media na podstawie faktur zużycia - prąd, woda, ogrzewanie są indywidualnie opomiarowane dla lokalu
· Kaucja –to równowartość dwumiesięcznego czynszu najmu
Wysoki standard wykończenia oraz reprezentacyjny charakter budynku podkreślają prestiż prowadzonej działalności.
To doskonała propozycja dla firm ceniących prestiżową lokalizację, funkcjonalny układ pomieszczeń oraz wysoki standard techniczny.
POLECAM IZAPRASZAM NA PREZENTACJĘ
Nota prawna
Opis oferty zawarty na stronie internetowej sporządzany jest na podstawie oględzin nieruchomości oraz informacji uzyskanych od właściciela, może podlegać aktualizacji i nie stanowi oferty określonej w art. 66 i następnych K.C.
Formularz kontaktowy