Lokal na wynajem
1 950 zł
65 m2





1 / 5
Szczegóły ogłoszenia
- Symbol oferty PRN-LW-7437
- Typ oferty lokal na wynajem
- Czynsz wynajmu 1 950 zł / miesiąc
- Charakterystyka mieszkania 65 m2, 3 pokoje
- Budynek biurowiec
- Rozkład mieszkania 1p piętro
- Media Ogrzewanie: centralne; Woda: jest
- Miejsce parkingowe Tak
- Dojazd asfalt
- Instalacje dobre
- Kaucja jednomiesięczna
- Okna PCV
- Otoczenie zakład produkcyjny
- Stan lokalu po remoncie
Lokalizacja
- Adres kujawsko-pomorskie, Bydgoszcz, Czyżkówko
Opis nieruchomości
OPIS OFERTY:
Biura na Czyżkówku, trzy pomieszczenia ok. 65 m2 na pierwszym piętrze.
W trakcie odświeżania, wkrótce dostępne.
Miejsca parkingowe na terenie obiektu.
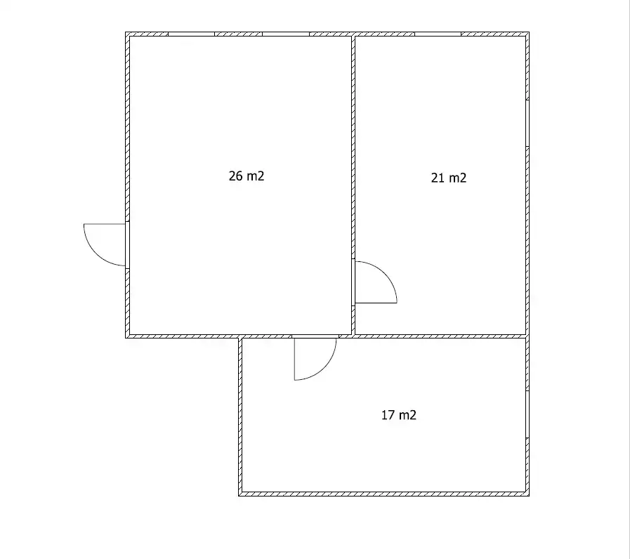
UKŁAD LOKALU:
Trzy pomieszczenia: 26 m2; 21 m2, 17 m2
W częściach wspólnych pomieszczenia socjalno-sanitarne.
STANDARD:
Lokal zostanie przekazany po remoncie.
Na podłodze panele.
Światłowód (Orange).
LOKALIZACJA:
Czyżkówko, w niewielkiej odległości przystanki komunikacji miejskiej.
INFORMACJE DODATKOWE:
Cena netto.
Kaucja jednomiesięczna.
Dodatkowe opłaty:
- prąd, wod-kan ryczałt od osoby
- ogrzewanie obliczane proporcjonalnie od wynajmowanej powierzchni
Zapraszam na prezentację!
Biura na Czyżkówku, trzy pomieszczenia ok. 65 m2 na pierwszym piętrze.
W trakcie odświeżania, wkrótce dostępne.
Miejsca parkingowe na terenie obiektu.
UKŁAD LOKALU:
Trzy pomieszczenia: 26 m2; 21 m2, 17 m2
W częściach wspólnych pomieszczenia socjalno-sanitarne.
STANDARD:
Lokal zostanie przekazany po remoncie.
Na podłodze panele.
Światłowód (Orange).
LOKALIZACJA:
Czyżkówko, w niewielkiej odległości przystanki komunikacji miejskiej.
INFORMACJE DODATKOWE:
Cena netto.
Kaucja jednomiesięczna.
Dodatkowe opłaty:
- prąd, wod-kan ryczałt od osoby
- ogrzewanie obliczane proporcjonalnie od wynajmowanej powierzchni
Zapraszam na prezentację!
Nota prawna
Opis oferty zawarty na stronie internetowej sporządzany jest na podstawie oględzin nieruchomości oraz informacji uzyskanych od właściciela, może podlegać aktualizacji i nie stanowi oferty określonej w art. 66 i następnych K.C.
Formularz kontaktowy