Mieszkanie na sprzedaż
219 000 zł
40 m2


1 / 2
Szczegóły ogłoszenia
- Symbol oferty IDE-MS-13257
- Typ oferty mieszkanie na sprzedaż
- Cena 219 000 zł
- Charakterystyka mieszkania 40.15 m2, 2 pokoje
- Budynek kamienica
- Rozkład mieszkania parter piętro
- Media Ogrzewanie: C.O. GAZOWE
- Dojazd asfaltowa/kostka
- Ilość sypialni 2
- Otoczenie centrum miasta
- Stan lokalu do remontu
Lokalizacja
- Adres kujawsko-pomorskie, Bydgoszcz, Śródmieście
Opis nieruchomości
MIESZKANIE:
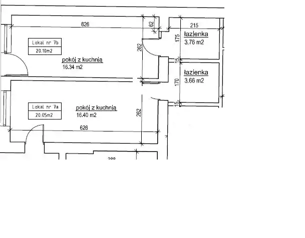
Na sprzedaż 2 samodzielne mieszkania o wielkości 20 m² w samym centrum Śródmieścia w całkowicie remontowanej kamienicy. To idealna nieruchomość inwestycyjna.
OPIS OFERTY:
Dwupak inwestycyjny.
Istnieje możliwość uzyskania dwóch niezależnych kawalerek, składających się z pokoju z aneksem kuchennym oraz łazienki.
STAN PRAWNY:
Pełna własność.
STANDARD WYKOŃCZENIA:
Mieszkanie w stanie do remontu.
BUDYNEK:
Kamienica w trakcie rewitalizacji.
LOKALIZACJA:
Samo centrum Śródmieścia, doskonała lokalizacja pod względem dostępności punktów usługowych i handlowych oraz komunikacji miejskiej. Dobry dojazd do każdej części Bydgoszczy.
DODATKOWE INFORMACJE:
Doskonała propozycja dla doświadczonych bądź początkujących inwestorów. Nieruchomość posłuży również do własnych celów mieszkalnych.
Zapraszam wszystkich zainteresowanych tą wyjątkową ofertą, nie przegap okazji!
Bartosz Cuske 500 016 795
Nota prawna
Opis oferty zawarty na stronie internetowej sporządzany jest na podstawie oględzin nieruchomości oraz informacji uzyskanych od właściciela, może podlegać aktualizacji i nie stanowi oferty określonej w art. 66 i następnych K.C.
Kalkulator kredytowy
Formularz kontaktowy