Mieszkanie na sprzedaż
247 500 zł
25 m2







1 / 7
Szczegóły ogłoszenia
- Symbol oferty PRN-MS-7302
- Typ oferty mieszkanie na sprzedaż
- Cena 247 500 zł
- Charakterystyka mieszkania 25 m2, 1 pokój
- Budynek blok; rok budowy: 1908
- Rozkład mieszkania 1p piętro
- Media Ogrzewanie: C.O. GAZOWE; Woda: tak - miejska
- Czynsz Czynsz letni: 320 zł
- Ilość sypialni 1
- Instalacje nowe
- Okna PCV
- Otoczenie centrum miasta
- Stan lokalu do wprowadzenia
- Technologia budowlana cegła
Lokalizacja
- Adres kujawsko-pomorskie, Bydgoszcz, Okole
Opis nieruchomości
OPIS OFERTY:
Kawalerka w sąsiedztwie Kanału Bydgoskiego.
Mieszkanie gotowe do zamieszkania.
Lokal mieści się w kamienicy po kapitalnym remoncie.
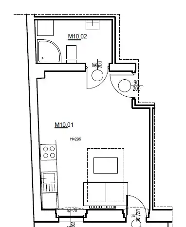
UKŁAD MIESZKANIA:
Łączna powierzchnia to 25 m2:
- pokój z aneksem kuchennym
- łazienka
- przedpokój
do mieszkania przynależy komórka lokatorska.
STANDARD:
Lokal po generalnym remoncie.
Mieszkanie utrzymane w jasnej kolorystyce.
Zabudowa kuchenna wraz ze sprzętem agd.
BUDYNEK:
Trzypiętrowa kamienica z 1908 roku.
Obecnie budynek po kapitalnym remoncie.
Prace obejmowały remont dachu, elewacji, klatki schodowej, wymianę instalacji, drzwi i okien.
LOKALIZACJA:
Atrakcyjnie położona nieruchomość nieopodal Centrum.
Dogodna komunikacja miejska
W pobliżu liczne punkty handlowe i usługowe.
Zapraszam na prezentację!
Kawalerka w sąsiedztwie Kanału Bydgoskiego.
Mieszkanie gotowe do zamieszkania.
Lokal mieści się w kamienicy po kapitalnym remoncie.
UKŁAD MIESZKANIA:
Łączna powierzchnia to 25 m2:
- pokój z aneksem kuchennym
- łazienka
- przedpokój
do mieszkania przynależy komórka lokatorska.
STANDARD:
Lokal po generalnym remoncie.
Mieszkanie utrzymane w jasnej kolorystyce.
Zabudowa kuchenna wraz ze sprzętem agd.
BUDYNEK:
Trzypiętrowa kamienica z 1908 roku.
Obecnie budynek po kapitalnym remoncie.
Prace obejmowały remont dachu, elewacji, klatki schodowej, wymianę instalacji, drzwi i okien.
LOKALIZACJA:
Atrakcyjnie położona nieruchomość nieopodal Centrum.
Dogodna komunikacja miejska
W pobliżu liczne punkty handlowe i usługowe.
Zapraszam na prezentację!
Nota prawna
Opis oferty zawarty na stronie internetowej sporządzany jest na podstawie oględzin nieruchomości oraz informacji uzyskanych od właściciela, może podlegać aktualizacji i nie stanowi oferty określonej w art. 66 i następnych K.C.
Kalkulator kredytowy
Formularz kontaktowy