Mieszkanie na sprzedaż














Szczegóły ogłoszenia
- Symbol oferty GLM-MS-214
- Typ oferty mieszkanie na sprzedaż
- Cena 302 500 zł
- Charakterystyka mieszkania 30.36 m2, 2 pokoje
- Budynek blok; rok budowy: 2024
- Rozkład mieszkania 2p piętro
- Media Ogrzewanie: C.O. miejskie; Woda: jest
- Dojazd asfaltowa/kostka
- Ilość sypialni 1
- Instalacje nowe
- Okna PCV
- Otoczenie centrum miasta
- Stan lokalu deweloperski
- Technologia budowlana cegła ceramiczna
- Winda Tak
Lokalizacja
- Adres kujawsko-pomorskie, Bydgoszcz, Bocianowo
Opis nieruchomości
BIURO NIERUCHOMOŚCI GLAM HOUSE z przyjemnością prezentuje na sprzedaż
Nowe 2-pokojowe mieszkanie w stanie deweloperskim
Na sprzedaż nowoczesne mieszkanie w nowym budynku zlokalizowanym w Bydgoszczy, w obrębie Bielaw, w rejonie Śródmieścia i graniczącego ze Starym Miastem. Jest to obszar bliski centrum miasta w Bydgoszczy. Nieruchomość w stanie deweloperskim – idealna do własnej aranżacji. Doskonała lokalizacja, wysoki standard inwestycji i funkcjonalny układ sprawiają, że to propozycja zarówno dla osób prywatnych, jak i inwestorów.
Informacje podstawowe:
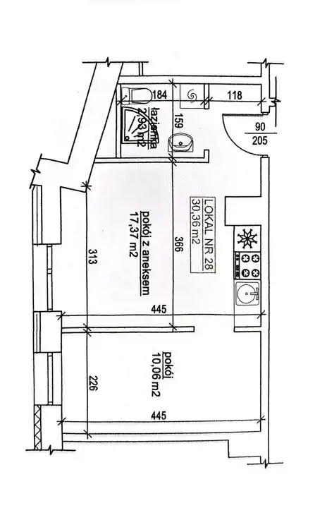
Powierzchnia: 30,36m²
Liczba pokoi: 2
Piętro: 2/3
Balkon: nie
Winda: tak
Stan prawny: pełna własność z księgą wieczystą
Ogrzewanie: miejskie KPEC
Układ mieszkania:
salon z aneksem kuchennym 17,37 m²
sypialnia 10,06 m²
łazienka 2,93 m²
Mieszkanie w stanie deweloperskim – gotowe do wykończenia według własnego projektu. W lokalu rozprowadzono wszystkie instalacje, wykonano wylewki i tynki. Nowoczesne okna i drzwi antywłamaniowe.
Budynek:
nowoczesna inwestycja z 2024 roku
winda
monitoring
ogrodzony teren
miejsca parkingowe dla mieszkańców
Lokalizacja:
To miejsce idealnie skomunikowane z centrum Bydgoszczy, a jednocześnie zapewniające ciszę i komfort życia.
W pobliżu:
przystanki tramwajowe i autobusowe
sklepy, apteki, usługi
szkoły, uczelnie
tereny spacerowe i rekreacyjne Leśny park Kultury i wypoczynku
To wygodne i przytulne mieszkanie o funkcjonalnym rozkładzie w jednej z najczęściej poszukiwanych lokalizacji w mieście jest z pewnością godne uwagi i polecenia.
Cena:
Cena ofertowa: 302 500 zł
Mieszkanie dostępne od zaraz – bez obciążeń i hipoteki.
Więcej informacji udzielę telefonicznie oraz przy prezentacji.
Oferujemy wsparcie w zakresie czynności finansowych oraz formalno-prawnych. Współpracujemy z biurami notarialnymi oraz doradcami finansowymi, którzy zaoferują najkorzystniejsze warunki kredytu lub pożyczki hipotecznej dopasowanej do Państwa potrzeb.
SERDECZNIE ZAPRASZAM NA PREZENTACJĘ I GORĄCO POLECAM:)