Mieszkanie na sprzedaż










Szczegóły ogłoszenia
- Symbol oferty PRN-MS-6972
- Typ oferty mieszkanie na sprzedaż
- Cena 329 000 zł
- Charakterystyka mieszkania 30.23 m2, 1 pokój
- Budynek nowe budownictwo; rok budowy: 2024
- Rozkład mieszkania 4p piętro
- Media Ogrzewanie: miejskie; Woda: tak - miejska; Gaz: brak
- Ilość sypialni 1
- Instalacje dobre
- Okna PCV
- Otoczenie zabudowa mieszana
- Stan lokalu wykończony
- Technologia budowlana beton komórkowy
- Umeblowanie brak
- Winda Tak
Lokalizacja
- Adres kujawsko-pomorskie, Bydgoszcz, Fordon
Opis nieruchomości
Kameralna inwestycja w dogodnej lokalizacji Nowego Fordonu.
W najbliższym sąsiedztwie mamy przystanki autobusowe, tramwajowe,
Politechnikę, szkołę, punktu handlowe, usługowe i gastronomiczne.
Niedaleko znajdują się również lasy, parki i liczne tereny spacerowe.
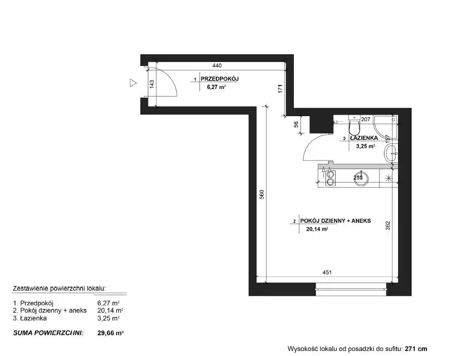
Prezentowane mieszkanie ma 30,23 m2 i znajduje się na 4. piętrze.
W skład mieszkania wchodzą:
- salon z aneksem kuchennym 20,14 m2
- łazienka 3,25 m2
- przedpokój 6,27 m2.
Lokal zostanie wykończony pod klucz: podłogi, ściany, drzwi, oświetlenie, dwie szafy, łazienka, kuchnia wraz ze sprzętem.
Do mieszkania przynależy dodatkowo:
- płatna komórka lokatorska o pow. 4,03 m2 w cenie 10 075 zł
- miejsce w hali garażowej w cenie 28 000 zł (zakup obligatoryjny).
Budynek składający się z 25 mieszkań oraz lokali usługowych na parterze.
Elegancka i nowoczesna bryła budynku wyróżnia go wśród starszej zabudowy.
Do dyspozycji mieszkańców są miejsca w hali garażowej i komórki lokatorskie.
Blok położony jest na terenie ogrodzonym i wyposażony został w windę.
Kupujący nie płaci 2% PCC.
Budowa ukończona.