Mieszkanie na sprzedaż






Szczegóły ogłoszenia
- Symbol oferty SFE-MS-10058
- Typ oferty mieszkanie na sprzedaż
- Cena 365 000 zł
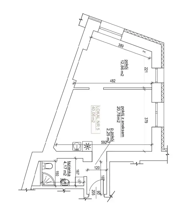
- Charakterystyka mieszkania 40.06 m2, 2 pokoje
- Budynek dom wielorodzinny; rok budowy: 2025
- Rozkład mieszkania parter piętro
- Media Ogrzewanie: C.O. miejskie; Woda: ciepła - miejska; Gaz: brak
- Dojazd ASFALTOWA
- Instalacje ELEKTRYCZNA
- Okna PCV 3 szyby, ciepły montaż
- Otoczenie centrum miasta
- Stan lokalu deweloperski
- Winda Tak
Lokalizacja
- Adres kujawsko-pomorskie, Bydgoszcz, Śródmieście
Opis nieruchomości
Nowa inwestycja realizowana na bydgoskim Śródmieściu zakłada przekształcenie dawnego magazynu w nowoczesny budynek mieszkalny, który stanie się ważnym elementem rewitalizacji dzielnicy. Atrakcyjna lokalizacja w pobliżu centrum zapewnia wygodny dostęp do komunikacji miejskiej, dworca kolejowego, uczelni, sklepów i terenów rekreacyjnych.
W budynku powstaną 53 mieszkania o funkcjonalnych układach i zróżnicowanych metrażach – od kompaktowych kawalerek po mieszkania dwupokojowe. Większość lokali będzie posiadała balkony, a dla mieszkańców przewidziano także możliwość korzystania z komórek lokatorskich i miejsc postojowych.
Architektura inwestycji łączy charakter przemysłowy z nowoczesnym designem. Budynek zostanie dostosowany do współczesnych standardów komfortu i bezpieczeństwa – z ogrzewaniem z sieci miejskiej, monitoringiem oraz starannie zagospodarowanym otoczeniem. Zieleń i mała architektura wokół obiektu podkreślą jego miejski, a jednocześnie kameralny charakter.
To propozycja dla osób szukających mieszkania w dobrze skomunikowanej części miasta, z szybkim dostępem do centrum, a jednocześnie w miejscu, które zyskuje nową jakość dzięki dynamicznym zmianom urbanistycznym w tej części Bydgoszczy.
Termin realizacji inwestycji planowany jest na koniec 2025 r.