Mieszkanie na sprzedaż










Szczegóły ogłoszenia
- Symbol oferty PRN-MS-6973
- Typ oferty mieszkanie na sprzedaż
- Cena 367 053 zł
- Charakterystyka mieszkania 42.19 m2, 2 pokoje
- Budynek nowe budownictwo; rok budowy: 2024
- Rozkład mieszkania 1p piętro
- Media Ogrzewanie: miejskie; Woda: tak - miejska; Gaz: brak
- Balkon jest
- Ilość sypialni 1
- Instalacje dobre
- Okna PCV
- Otoczenie zabudowa mieszana
- Stan lokalu deweloperski
- Technologia budowlana beton komórkowy
- Winda Tak
Lokalizacja
- Adres kujawsko-pomorskie, Bydgoszcz, Fordon
Opis nieruchomości
Kameralna inwestycja w dogodnej lokalizacji Nowego Fordonu.
W najbliższym sąsiedztwie mamy przystanki autobusowe, tramwajowe,
Politechnikę, szkołę, punktu handlowe, usługowe i gastronomiczne.
Niedaleko znajdują się również lasy, parki i liczne tereny spacerowe.
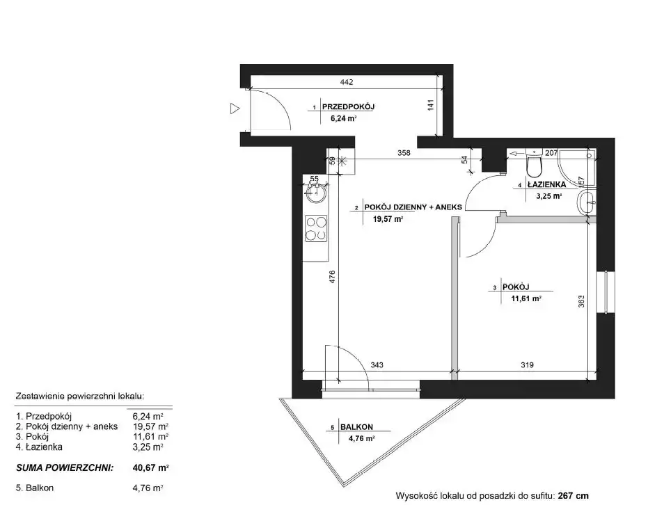
Prezentowane mieszkanie ma 42,19 m2 i znajduje się na 1. piętrze.
W skład mieszkania wchodzą:
- salon z aneksem kuchennym 19,57 m2
- pokój 11,61 m2
- łazienka 3,25 m2
- przedpokój 6,24 m2.
Do mieszkania przynależy balkon.
Lokal jest w stanie deweloperskim.
Do mieszkania przynależy dodatkowo:
- płatna komórka lokatorska o pow. 4,43 m2 w cenie 10 975 zł
- miejsce w hali garażowej w cenie 28 000 zł (zakup obligatoryjny).
Budynek składający się z 25 mieszkań oraz lokali usługowych na parterze.
Elegancka i nowoczesna bryła budynku wyróżnia go wśród starszej zabudowy.
Do dyspozycji mieszkańców są miejsca w hali garażowej i komórki lokatorskie.
Blok położony jest na terenie ogrodzonym i wyposażony został w windę.
Kupujący nie płaci 2% PCC.
Budowa ukończona.