Mieszkanie na sprzedaż




Szczegóły ogłoszenia
- Symbol oferty DMT-MS-113696
- Typ oferty mieszkanie na sprzedaż
- Cena 368 150 zł
- Charakterystyka mieszkania 49.75 m2, 1 pokój
- Budynek blok; rok budowy: 2000
- Rozkład mieszkania parter piętro
- Media Ogrzewanie: centralne; Woda: ciepła - miejska; Gaz: jest
- Dojazd asfalt
- Instalacje ELEKTRYCZNA, WODNA, GAZOWA
- Okna PCV
- Otoczenie centrum miasta
- Stan lokalu do odnowienia
Lokalizacja
- Adres kujawsko-pomorskie, Bydgoszcz
Opis nieruchomości
Mieszkanie 49,75 m² – centrum | parter | duży potencjał
Na sprzedaż jasne i ustawne mieszkanie o powierzchni 49,75 m², położone na parterze ocieplonego budynku z 2000 roku, w ścisłym centrum miasta.
Lokal dobrze doświetlony, z funkcjonalnym układem i dużymi możliwościami aranżacyjnymi – zarówno do zamieszkania, jak i pod działalność lub wynajem.
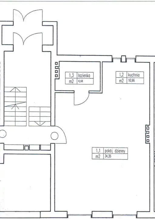
Układ:
-
pokój dzienny z aneksem kuchennym (możliwość wydzielenia osobnej kuchni lub dodatkowego pokoju)
-
łazienka – 4,44 m²
-
kuchnia – 10,96 m² (po wydzieleniu)
-
pokój dzienny – 34,35 m²
Możliwości:
-
podział na 2 niezależne pokoje
-
wydzielenie oddzielnej kuchni
-
adaptacja na lokal usługowy (parter, dobre doświetlenie, wygodny dostęp)
Dodatkowe informacje:
-
piwnica w cenie
-
czynsz: ok. 448 zł
-
wszystkie media miejskie (ogrzewanie, woda, gaz, prąd, internet)
Budynek i lokalizacja:
-
blok ocieplony, zadbany
-
wygodna klatka schodowa
-
ścisłe centrum – szybki dostęp do sklepów, komunikacji, szkół i usług
Cena: 368 150 zł
Mieszkanie sprawdzi się jako wygodne miejsce do życia lub inwestycja z możliwością różnych aranżacji.
Zapraszamy do kontaktu i na prezentację.