Mieszkanie na sprzedaż
























Szczegóły ogłoszenia
- Symbol oferty BPO-MS-1885
- Typ oferty mieszkanie na sprzedaż
- Cena 369 000 zł
- Charakterystyka mieszkania 53 m2, 3 pokoje
- Budynek blok; rok budowy: 1976
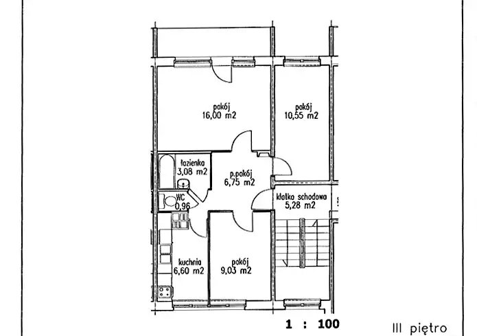
- Rozkład mieszkania 3p piętro
- Media Ogrzewanie: C.O. miejskie; Woda: ciepła - miejska; Gaz: jest
- Balkon loggia
- Czynsz Czynsz letni: 500 zł
- Dojazd asfalt
- Garaż brak
- Ilość sypialni 1
- Instalacje dobre
- Okna PCV
- Otoczenie bloki
- Plac zabaw Tak
- Stan lokalu częściowo po remoncie
- Technologia budowlana wielka płyta
Lokalizacja
- Adres kujawsko-pomorskie, Bydgoszcz, Wyżyny
Opis nieruchomości
Na sprzedaż 3 pokojowe mieszkanie przy ulicy Wojska Polskiego (osiedle Wyżyny/Kapuściska). Nieruchomość znajduje się na 3 piętrze niskiego bloku, niedaleko szpitala Świętego Łukasza i parku leśnego na Kapuściskach.
Na 53 m2 znajduje się:
- salon 16 m2 z wyjściem na duży balkon 3,72 m2
- pokój 10,55 m2
- sypialnia 9.03 m2
- kuchnia 6,6 m2
- łazienka 3,08 m2
- WC 0,96 m2
- przedpokój 6,75 m2
Do mieszkania przynależy piwnica 5,4 m2.
W pokojach i przedpokoju parkiet, w kuchni, łazience i na balkonie gres. Na sufitach gładzie. Kuchnia po remoncie z 2015 r. z meblami na wymiar i sprzętami AGD w cenie. Łazienka i WC świeżo po remoncie w 2022 r. Przedpokój z pojemną szafą typu Komandor. Drzwi antywłamaniowe, okna PCV.
Budynek po termoizolacji, klatki remontowane w 2022 roku.
Czynsz około 500 zł / 2 os. + prąd i gaz wg. liczników. Ogrzewanie i woda ciepła - miejskie, w czynszu.
Mieszkanie spółdzielcze własnościowe z księgą wieczystą, bez zadłużeń.
Pomagamy na każdym etapie kupna i sprzedaży, współpracujemy z notariuszami i doradcami finansowymi. Poprowadzimy Twoją transakcję skutecznie i bezpiecznie, dopasowując ofertę do indywidualnych potrzeb.
Jeśli ta nieruchomość nie spełnia Twoich oczekiwań, posiadamy większą bazę nieruchomości. Zadzwoń już dziś by dowiedzieć się więcej. ;)
Zapraszam serdecznie
Monika Dyguła
782 808 029
Nota prawna
Dbając o bezpieczeństwo klientów sprzedających, nie podajemy adresów nieruchomości bez podpisania umowy o pośrednictwo.
Opis oferty zawarty na stronie internetowej sporządzany jest na podstawie oględzin nieruchomości oraz informacji uzyskanych od właściciela. Nie stanowi oferty określonej w art. 66 i następnych K.C.