Mieszkanie na sprzedaż











Szczegóły ogłoszenia
- Symbol oferty PRN-MS-7340
- Typ oferty mieszkanie na sprzedaż
- Cena 378 500 zł
- Charakterystyka mieszkania 41.18 m2, 2 pokoje
- Budynek kamienica
- Rozkład mieszkania 2p piętro
- Media Ogrzewanie: gazowe; Woda: tak - miejska; Gaz: tak - miejski
- Instalacje nowe
- Okna PCV
- Stan lokalu do wprowadzenia
- Technologia budowlana cegła
Lokalizacja
- Adres kujawsko-pomorskie, Bydgoszcz, Szwederowo
Opis nieruchomości
OPIS OFERTY:
Oferujemy na sprzedaż dwa w pełni wykończone i umeblowane mieszkania w cenie jednego.
Idealna propozycja inwestycyjna dla osób poszukujących podwójnego źródła dochodu z najmu!
Lokal mieści się w świetnej lokalizacji przy ul. ks. I. Skorupki w Bydgoszczy, na osiedlu Szwederowo.
Nieruchomość po generalnym remoncie, gotowa do natychmiastowego wprowadzenia najemców.
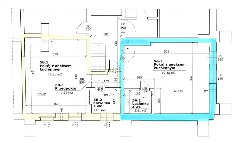
UKŁAD POMIESZCZEŃ:
Nieruchomość składa się z dwóch oddzielnych mieszkań:
Mieszkanie 5A
• salon z aneksem kuchennym
• łazienka z prysznicem
Mieszkanie 5B
• salon z aneksem kuchennym
• łazienka z prysznicem
Oba lokale zostały przemyślanie zaprojektowane, aby maksymalnie wykorzystać przestrzeń i zapewnić wygodę przyszłym najemcom.
STANDARD:
• mieszkania po świeżym generalnym remoncie
• nowe instalacje: elektryczna oraz wodno-kanalizacyjna
• nowe okna i drzwi wejściowe
• panele w częściach dziennych, drewnopodobne płytki w łazienkach
• kuchnie wykonane na wymiar przez stolarza
• nowe płyty indukcyjne
• nowoczesne, estetyczne łazienki
Wyposażenie mieszkania 5A:
• zabudowa kuchenna w kolorze szarym, płyta indukcyjna, zlewozmywak
• narożnik, pojemna szafa, komoda, stół i krzesła
• uchwyt pod telewizor
• łazienka z szafką umywalkową, WC i prysznicem
Wyposażenie mieszkania 5B:
• zabudowa kuchenna w kolorze kaszmirowym, nowa płyta indukcyjna, zlewozmywak
• narożnik, pojemna szafa, stół i krzesła
,• łazienka z szafką umywalkową, WC i prysznicem
W cenie pozostaje kompletne umeblowanie widoczne na zdjęciach – mieszkania są gotowe pod klucz.
BUDYNEK:
• kameralna kamienica po rewitalizacji w 2021 roku
• budynek ocieplony i po remoncie elewacji
• wymienione instalacje wod.–kan. oraz elektryczne
• zadbane klatki schodowe
• dostęp do światłowodu
• nieruchomość ogrodzona
• liczne miejsca parkingowe dla mieszkańców
• zarządzanie przez Wspólnotę Mieszkaniową (bez kredytów i obciążeń)
LOKALIZACJA:
• osiedle Szwederowo, ul. ks. I. Skorupki – blisko centrum
• tylko 1,5 km od Starego Rynku
• świetna infrastruktura: sklepy, komunikacja, usługi
• szybki dojazd do ścisłego centrum miasta
• okolica ceniona przez najemców ze względu na wygodę i bliskość atrakcji miasta
INFORMACJE DODATKOWE:
• oferta idealna dla inwestora – dwa niezależne mieszkania generujące podwójny dochód
• pełne wyposażenie w cenie
• natychmiastowa możliwość rozpoczęcia najmu
• wysoki standard wykończenia
• nieruchomość wolna od obciążeń
Zapraszam na prezentację!