Mieszkanie na sprzedaż
396 900 zł
37 m2











1 / 11
Szczegóły ogłoszenia
- Symbol oferty SFE-MS-10077
- Typ oferty mieszkanie na sprzedaż
- Cena 396 900 zł
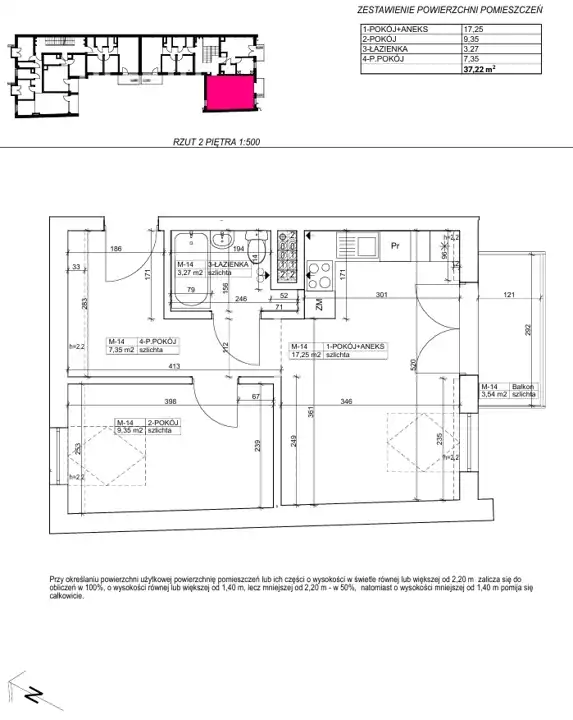
- Charakterystyka mieszkania 37.22 m2, 2 pokoje
- Budynek nowe budownictwo; rok budowy: 2024
- Rozkład mieszkania 2p piętro
- Media Ogrzewanie: C.O. GAZOWE; Woda: jest
- Balkon jest
- Dojazd asfalt
- Garaż możliwość kupna
- Ilość sypialni 1
- Instalacje nowe
- Okna PCV
- Otoczenie rzeka
- Stan lokalu deweloperski
Lokalizacja
- Adres kujawsko-pomorskie, Bydgoszcz, Fordon
Opis nieruchomości
Budynek usytuowany w Starym Fordonie, w sąsiedztwie odrestaurowanego bulwaru nad Wisłą z pełną infrastrukturą wypoczynkową: 2 skateparki, plac zabaw, zewnętrzna siłownia, ścianka wspinaczkowa dla dzieci i oczywiście piękne tereny spacerowe.
W kameralnej inwestycji zaprojektowano 16 mieszkań o pow. od 29,9 m2 do 57,91 m2, sześć indywidualnych garaży oraz lokal użytkowy na parterze.
Na uwagę zasługuje widok z okien – skierowany ku nadbrzeżu.
Osobiście szczególnie polecam mieszkania szczytowe z interesującym, niesymetrycznym sufitem i ponadprzeciętnymi wysokościami pomieszczeń.
Budynek oddany do użytkowania w 2024 r.
Nota prawna
Opis oferty zawarty na stronie internetowej sporządzany jest na podstawie oględzin nieruchomości oraz informacji uzyskanych od właściciela, może podlegać aktualizacji i nie stanowi oferty określonej w art. 66 i następnych K.C.
Kalkulator kredytowy
Formularz kontaktowy