Mieszkanie na sprzedaż











Szczegóły ogłoszenia
- Symbol oferty NOV-MS-7411
- Typ oferty mieszkanie na sprzedaż
- Cena 427 900 zł
- Charakterystyka mieszkania 38.9 m2, 2 pokoje
- Budynek kamienica
- Rozkład mieszkania 1p piętro
- Media Ogrzewanie: C.O. GAZOWE
- Balkon jest
- Czynsz Czynsz letni: 400 zł
- Okna PCV
- Stan lokalu po generalnym remoncie
- Technologia budowlana cegła
Lokalizacja
- Adres kujawsko-pomorskie, Bydgoszcz, Centrum
Opis nieruchomości
Mieszkania o powierzchni od 25 m2 do 44 m2 w cenie od 187.500 zł. Mieszkania w stanie do remontu, z możliwością doprowadzenia ich do stanu deweloperskiego, jak i "pod klucz" Ze względu na lokalizację mieszkania idealnie nadają się jako inwestycja pod wynajem, jak i również do zamieszkania przez przyszłych właścicieli.
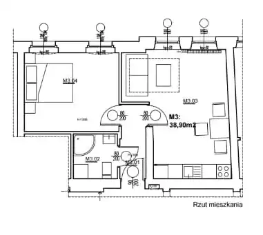
Oferowane mieszkanie znajduję się na 1 piętrze i ma powierzchnię 38,9 m2, na którą składa się:
- pokój z aneksem kuchennym
- pokój
- przedpokój
- łazienka
Do mieszkania przynależy komórka lokatorska.
Prezentowane mieszkanie ma 38,9 m2, jest po generalnym remoncie ( wszystkie nowe instalacje ) i znajduje się na 1 piętrze w zrewitalizowanej kamienicy. Mieszkanie 2 -pokojowe, wyposażone w kuchnię 'na wymiar' wraz z pełnym wyposażeniem ( lodówka, piekarnik, płyta grzewcza, zmywarka) nowy sprzęt AGD, w pełni wyposażoną łazienkę. Mieszkanie będzie w pełni umeblowane, gotowe do wprowadzenia. Mieszkanie wyjątkowo energooszczędne - docieplona elewacja oraz dach.
Czynsz do Wspólnoty mieszkaniowej wynosi ok. 500 zł., łącznie z ogrzewaniem.
Na zdjęciach przedstawiamy rzuty wszystkich mieszkań w ofercie.
Prezentowane w ofercie mieszkanie ma na rzucie oznaczenie M3.
Zdjęcia mieszkania są poglądowe i pokazują poprzednie realizację inwestora.
Budynek z wyremontowanymi klatkami schodowymi, wymienionym dachem oraz nowymi pionami w całej kamienicy. Elewacja po kapitalnym remoncie.
Kotłownia gazowa dla całego budynku.
Lokalizacja gwarantuję łatwą komunikację z innymi dzielnicami miasta. Sąsiedztwo malowniczego parku nad kanałem pozwala zarówno na spokojny odpoczynek, jak i na aktywne spędzanie wolnego czasu w otoczeniu przyrody. Nasza lokalizacja zapewni Ci bliskość natury, jak i ważnych węzłów komunikacyjnych oraz punktów handlowych.
Kontaktując się z agentem odpowiedzialnym za ofertę, zapytaj jakie są warunki współpracy z naszym biurem.
Dbając o bezpieczeństwo klientów sprzedających nie podajemy adresów nieruchomości bez podpisania umowy o pośrednictwo w kupnie.
Prowizja jest uzgadniania indywidualnie.
Więcej informacji udzielę telefonicznie oraz przy prezentacji.
ZAPRASZAMY!
Zadzwoń i dowiedz się więcej. Z pewnością znajdziemy nieruchomość spełniającą Twoim oczekiwaniom.