Mieszkanie na sprzedaż




Szczegóły ogłoszenia
- Symbol oferty BPO-MS-2154
- Typ oferty mieszkanie na sprzedaż
- Cena 449 000 zł
- Charakterystyka mieszkania 49.87 m2, 2 pokoje
- Budynek blok
- Rozkład mieszkania 3p piętro
- Media Ogrzewanie: C.O. miejskie; Woda: tak - miejska; Gaz: tak - miejski
- Balkon jest
- Czynsz Czynsz letni: 520 zł
- Dojazd asfalt
- Ilość sypialni 1
- Instalacje dobre
- Okna aluminiowe
- Otoczenie zabudowa mieszana
- Stan lokalu bardzo dobry
- Technologia budowlana cegła
Lokalizacja
- Adres kujawsko-pomorskie, Bydgoszcz, Osiedle Leśne
Opis nieruchomości
Gotowe do wprowadzenia dwupokojowe mieszkanie na Osiedlu Leśnym przy ul. Lelewela całkowicie
po remoncie, bez nakładów finansowych.
Mieszkanie dostępne od marca, idealne dla singla, pary lub małej rodziny.
Pełna infrastruktura miejska na wyciągnięcie ręki: markety, szkoły, przychodnie, restauracje, a obok tereny zielone, w tym Park Myślęcinek.
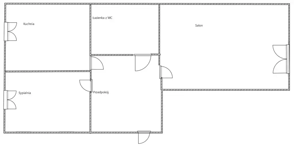
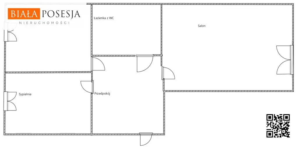
Szczegóły mieszkania (49,87 m², 3 piętro w budynku z cegły)
• Rozkładowy układ: salon z balkonem (ok. 18,7 m²),
- sypialnia (ok. 9,8 m²),
- osobna kuchnia (ok. 7 m²),
- łazienka z WC (ok. 5 m²),
- przedpokój z pojemnymi szafami na wymiar (ok. 4,7 m²).
• Wysokość pomieszczeń: 255 cm – komfortowe i przestronne.
• Okna PCV: ekspozycja wschód-zachód, dużo naturalnego światła.
• Ogrzewanie: sieć miejska; ciepła woda z bojlera (wymiana na miejską w 2027 r.).
• Czynsz: ok. 520 zł (w tym fundusz remontowy).
• Dodatki: piwnica w cenie;
Zarządzane przez Spółdzielnię Budowlani.
To okazja na stabilną inwestycję – szybka transakcja z pełnym wsparciem agenta.
Zapraszam na prezentację Ewa Bonk