Mieszkanie na sprzedaż













Szczegóły ogłoszenia
- Symbol oferty SED-MS-1580
- Typ oferty mieszkanie na sprzedaż
- Cena 459 000 zł
- Charakterystyka mieszkania 62 m2, 3 pokoje
- Budynek blok; rok budowy: 1982
- Rozkład mieszkania 3p piętro
- Media Ogrzewanie: centralne; Woda: ciepła - miejska; Gaz: jest
- Balkon średni
- Czynsz Czynsz letni: 1100 zł
- Dojazd asfaltowa/kostka
- Garaż miejsce parkingowe przy budynku
- Ilość sypialni 2
- Instalacje ELEKTRYCZNA, WODNA, GAZOWA
- Okna PCV
- Otoczenie las
- Stan lokalu do wprowadzenia
- Technologia budowlana wielka płyta
- Umeblowanie częściowo umeblowane
Lokalizacja
- Adres kujawsko-pomorskie, Bydgoszcz, Glinki
Opis nieruchomości
GLINKI, 3 pokoje, mieszkanie na granicy Puszczy Bydgoskiej!
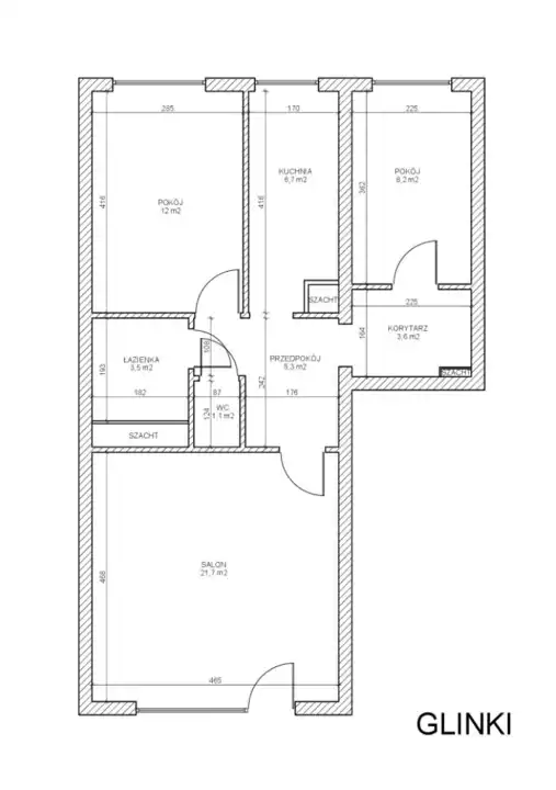
Mieszkanie o powierzchni przeszło 62m2, ulokowane na III piętrze 4-piętrowego bloku.
Salon, 2 x sypialnia, kuchnia, łazienka, WC, przedpokoju.
Z salonu wyjście na obszerną, południową loggię z widokiem na las!
Okna salonu wychodzą na stronę południową, reszty pomieszczeń na północ.
Miejsce postojowe przy bloku.
Pojemna komórka lokatorska!
Kuchnia wyposażona w zabudowę stworzoną na wymiar oraz niezbędny dziś w każdym domu sprzęt AGD.
Orientacyjny metraż pomieszczeń:
Salon - 22 m2,
Sypialnia - 12 m2,
Sypialnia - 8 m2,
Kuchnia - 7 m2,
Łazienka - 4 m2,
WC - 1 m2,
Przedpokój - 7 m2.
Blok ukryty przed miejskim hałasem, tuż przy Puszczy Bydgoskiej jednak blisko centrum Glinek gdzie odnajdziemy pełną infrastrukturę niezbędną do życia: markety, szpital miejski, liczne lokale gastronomiczne i usługowe, szkoły i przedszkola, przystanki komunikacji miejskiej.
Zainteresowany? Porozmawiajmy, chętnie odpowiem na Twoje pytania.
Powiedz czego poszukujesz, a my trafimy w samo SEDNO!
Sedno Nieruchomości Sp. z o. o. pobiera wynagrodzenie w formie prowizji, które jest ustalone w momencie podpisania umowy pośrednictwa a egzekwowalne w chwili zawarcia transakcji.
W związku z licznymi sugestiami właścicieli nieruchomości prosimy o umawianie terminów prezentacji wyłącznie za naszym pośrednictwem i przy naszym udziale w terminie dogodnym dla obu stron.
Paweł Kempski
Doradca ds. Nieruchomości
tel: 789 564 905
mail: pawel.kempski@sednonieruchomosci.pl
www.sednonieruchomosci.pl
https://www.instagram.com/sednonieruchomosci/
https://www.tiktok.com/@sedno_nieruchomosci
https://www.facebook.com/profile.php?id=10008913796282
Sedno Nieruchomości współpracuje z najlepszymi firmami w zakresie usług finansowych, znajdując dla Państwa najlepsze indywidualne rozwiązania finansowania zakupu nieruchomości oraz zapewnia niezawodną, bezpośrednią i priorytetową obsługę Państwa w renomowanej kancelarii notarialnej oraz prawnej a także do Państwa usług są nasi specjaliści ds. podatkowych, geodezyjnych oraz budowlanych.
Dokładamy wszelkich starań aby informacje dotyczące nieruchomości były możliwie rzetelne, aktualne i kompletne natomiast w związku z tym że pochodzą one od osób trzecich firma Sedno Nieruchomości nie ponosi odpowiedzialności za ich dokładność.
Niniejsza informacja nie stanowi oferty w rozumieniu Kodeksu Cywilnego.