Mieszkanie na sprzedaż
499 000 zł
63 m2






1 / 6
Szczegóły ogłoszenia
- Symbol oferty SFE-MS-10127
- Typ oferty mieszkanie na sprzedaż
- Cena 499 000 zł
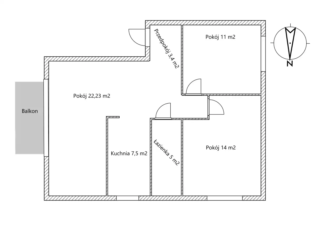
- Charakterystyka mieszkania 63.13 m2, 3 pokoje
- Budynek blok; rok budowy: 1989
- Rozkład mieszkania 4p piętro
- Media Ogrzewanie: C.O. miejskie; Woda: jest; Gaz: jest
- Czynsz Czynsz letni: 780 zł
- Dojazd ASFALTOWA
- Instalacje ELEKTRYCZNA, WODNA, GAZOWA
- Okna PCV
- Otoczenie osiedle
- Stan lokalu idealny
- Technologia budowlana płyta
- Umeblowanie pełne
Lokalizacja
- Adres kujawsko-pomorskie, Bydgoszcz, Fordon
Opis nieruchomości
Mieszkanie trzypokojowe (63m2) na czwartym piętrze w bloku mieszkalnym w bydgoskim Fordonie.
Na sprzedaż piękne przestronne mieszkanie. Lokal składa się z trzech niezależnych pokoi, przedpokoju, oddzielnej kuchni, oraz łazienki.
Do mieszkania przynależy balkon oraz piwnica co zapewnia dodatkową przestrzeń do przechowywania.
STANDARD:
Podłogi – gres, panele
Ściany - gładź gipsowa, tapety, glazura;
Parapety – PCV;
Okna – PCV.
W cenie pozostaje: zabudowa kuchenna ze sprzętem AGD, armatura łazienkowa, szafa wnękowa, większość umeblowania pokoi
OPIS BUDYNKU
Czteropiętrowy blok mieszkalny, wybudowany w 1989 roku, blisko pełna infrastruktura ( szkoła, przedszkole, przystanki tramwajowe i autobusowe, sklepy )
INFORMACJE DODATKOWE
Przyległości: piwnica, balkon
Zabezpieczenia: domofon
Ogrzewanie: miejskie
Wysokość czynszu: 780 zł (na 1 osobę)
Wystawa okien: wschód, zachód, północ, widok na inne budynki
Na sprzedaż piękne przestronne mieszkanie. Lokal składa się z trzech niezależnych pokoi, przedpokoju, oddzielnej kuchni, oraz łazienki.
Do mieszkania przynależy balkon oraz piwnica co zapewnia dodatkową przestrzeń do przechowywania.
STANDARD:
Podłogi – gres, panele
Ściany - gładź gipsowa, tapety, glazura;
Parapety – PCV;
Okna – PCV.
W cenie pozostaje: zabudowa kuchenna ze sprzętem AGD, armatura łazienkowa, szafa wnękowa, większość umeblowania pokoi
OPIS BUDYNKU
Czteropiętrowy blok mieszkalny, wybudowany w 1989 roku, blisko pełna infrastruktura ( szkoła, przedszkole, przystanki tramwajowe i autobusowe, sklepy )
INFORMACJE DODATKOWE
Przyległości: piwnica, balkon
Zabezpieczenia: domofon
Ogrzewanie: miejskie
Wysokość czynszu: 780 zł (na 1 osobę)
Wystawa okien: wschód, zachód, północ, widok na inne budynki
Nota prawna
Opis oferty zawarty na stronie internetowej sporządzany jest na podstawie oględzin nieruchomości oraz informacji uzyskanych od właściciela, może podlegać aktualizacji i nie stanowi oferty określonej w art. 66 i następnych K.C.
Kalkulator kredytowy
Formularz kontaktowy