Mieszkanie na sprzedaż










Szczegóły ogłoszenia
- Symbol oferty NST-MS-18
- Typ oferty mieszkanie na sprzedaż
- Cena 599 000 zł
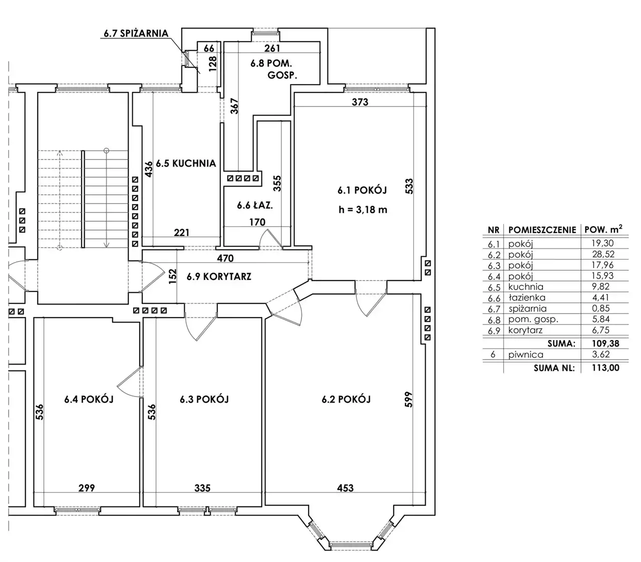
- Charakterystyka mieszkania 109.38 m2, 4 pokoje
- Budynek kamienica; rok budowy: 1900
- Rozkład mieszkania 2p piętro
- Media Ogrzewanie: etażowe; Woda: tak-podgrzewacz elektryczny; Gaz: jest
- Balkon jest
- Dojazd asfalt
- Ilość sypialni 3
- Instalacje ELEKTRYCZNA, WODNA, GAZOWA
- Okna DREWNIANE STARY TYP
- Otoczenie centrum miasta
- Stan lokalu do generalnego remontu
- Technologia budowlana cegła
Lokalizacja
- Adres kujawsko-pomorskie, Bydgoszcz, Śródmieście
Opis nieruchomości
Przestronne mieszkanie z olbrzymim potencjałem inwestycyjnym i mieszkaniowym na sprzedaż do kapitalnego remontu w odnowionej kamienicy w centrum miasta – Bydgoszcz, ul. Sobieskiego 2!
INFORMACJE O BUDYNEKU:
Kamienica wybudowana w 1900 roku. Frontowy budynek przeszedł gruntowny remont w 2024 roku wykonane:
- nowa elewacja,
- wstawiona nowa kuta brama wejściowa,
- położone nowe pokrycie dachowe,
- częściowa wymiana instalacji elektrycznej,
- rozprowadzenie instalacji domofonowej.
INFORMACJE O MIESZKANIU:
Prezentowane mieszkanie jest do remontu.
Układ czteropokojowy z możliwościami na stworzenie dwóch mieszkań
Powierzchnia użytkowa 109,38 m2.
Położony na drugim piętrze w kamienicy.
Do mieszkania przynależy piwnica (3,62 m²).
Mieszkanie w układzie dwustronnym, wystawiającym okna w ekspozycji południowej i północnej.
Wysokość mieszkania 318 cm!
Mieszkanie do remontu.
Okna: PCV;
Drzwi: skrzydła drzwiowe do odrestaurowania;
Ściany: tynki, gładzie, farba;
Podłogi: pierwotne deski z litego drewna, płytki;
Instalacja elektryczna: miedziana;
Instalacja wodna stalowa.
ROZKŁAD:
- pokój o powierzchni 28,52 m2 (ekspozycja północna);
- pokój o powierzchni 17,96 m2 (ekspozycja północna);
- pokój o powierzchni 15,93 m2 (ekspozycja północna);
- pokój o powierzchni 19,30 m2 (ekspozycja południowa);
- kuchnia o powierzchni 9,82 m2 (ekspozycja południowa);
- pom. gosp. o powierzchni 5,84 m2 (ekspozycja południowa);
- łazienka o powierzchni 4,41 m2;
- przedpokój o powierzchni 7,92 m2.
MEDIA
- centralne ogrzewanie: piec kaflowy, możliwość podłączenia instalacji gazowej z piecem dwufunkcyjnym;
- ciepła woda: bojler elektryczny;
- przyłącze prądu: 230V;
-internet: światłowód w budynku.
LOKALIZACJA:
Mieszkanie umiejscowione w idealnej lokalizacji do zamieszkania i na inwestycję:
W pobliżu znajdują się sklepy, min. Biedronka, Kik, Apteka.
W otoczeniu jest bogata infrastruktura: tramwaj, przedszkole, szkoła, basen.
Droga do Starego Miasta oraz tramwaju wodnego to 20 minut.
Centrum sportowe ASTORIA.
STAN PRAWNY I EKSPLOATACJA
Odrębne Własnościowe Prawo do Lokalu Mieszkalnego z Księgą Wieczystą. Mieszkanie bezczynszowe opłaty tylko zgodnie ze wskazaniem liczników.
Agent prowadzący ofertę:
Nesto Nieruchomości
Michał Lizik
tel. 507-282-033