Mieszkanie na sprzedaż
619 000 zł
132 m2


















1 / 18
Szczegóły ogłoszenia
- Symbol oferty PRN-MS-6897
- Typ oferty mieszkanie na sprzedaż
- Cena 619 000 zł
- Charakterystyka mieszkania 131.65 m2, 4 pokoje
- Budynek kamienica; rok budowy: 1898
- Rozkład mieszkania 2p piętro
- Media Ogrzewanie: piec dwufunkcyjny; Woda: ciepła - piecyk gazowy; Gaz: jest
- Czynsz Czynsz letni: 550 zł
- Instalacje dobre
- Okna PCV
- Stan lokalu do odświeżenia
- Technologia budowlana beton, cegła
- Umeblowanie częściowo umeblowane
Lokalizacja
- Adres kujawsko-pomorskie, Bydgoszcz, Centrum
Opis nieruchomości
OPIS OFERTY:
Na sprzedaż czteropokojowe mieszkanie położone w Śródmieściu.
Idealna propozycja dla miłośników klimatycznych wnętrz.
Mieszkanie ze względu na swój układ oraz lokalizację świetnie nadaje się np na kancelarię notarialną.
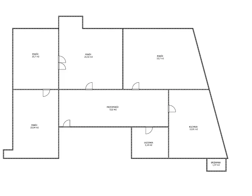
UKŁAD MIESZKANIA:
Mieszkanie o powierzchni 131,65 m2 znajduje się na drugim piętrze:
Składa się z:
- pokoju - 25,7 m2
- pokoju - 25,52 m2
- pokój - 23,14 m2
- pokój - 23,7 m2
- kuchnia - 12,01 m2
- łazienka - 5,18 m2
- spiżarnia - 1,47 m2
- przedpokój - 12,2 m2
STANDARD:
Mieszkanie w stanie do odświeżenia, łazienka w stanie do remontu.
Wyposażenie widoczne na zdjęciach w cenie.
Na podłogach oryginalna deska.
Piękne drewniane drzwi z oryginalnymi drewnianymi ościeżnicami.
Na sufitach efektowna sztukateria.
W dwóch pokojach znajdują się wykusze idealne na kącik jadalniany lub miejsce do czytania.
Ogrzewanie oraz ciepła woda - piec gazowy dwufunkcyjny.
Okna - PCV
BUDYNEK:
Kamienica wybudowana w 1898 roku.
Budynek zbudowany z cegły.
Elewacja w dobrym stanie.
Plusami tej lokalizacji są liczne punkty handlowo - usługowe, dobre skomunikowanie.
LOKALIZACJA:
Mieszkanie zlokalizowane na Śródmieściu.
Bardzo dobrze skomunikowana część miasta.
Wiele punktów handlowych i usługowych w pobliżu.
INFORMACJE DODATKOWE:.
Czynsz wynosi około 550 zł.
Zapraszam na prezentację!
Na sprzedaż czteropokojowe mieszkanie położone w Śródmieściu.
Idealna propozycja dla miłośników klimatycznych wnętrz.
Mieszkanie ze względu na swój układ oraz lokalizację świetnie nadaje się np na kancelarię notarialną.
UKŁAD MIESZKANIA:
Mieszkanie o powierzchni 131,65 m2 znajduje się na drugim piętrze:
Składa się z:
- pokoju - 25,7 m2
- pokoju - 25,52 m2
- pokój - 23,14 m2
- pokój - 23,7 m2
- kuchnia - 12,01 m2
- łazienka - 5,18 m2
- spiżarnia - 1,47 m2
- przedpokój - 12,2 m2
STANDARD:
Mieszkanie w stanie do odświeżenia, łazienka w stanie do remontu.
Wyposażenie widoczne na zdjęciach w cenie.
Na podłogach oryginalna deska.
Piękne drewniane drzwi z oryginalnymi drewnianymi ościeżnicami.
Na sufitach efektowna sztukateria.
W dwóch pokojach znajdują się wykusze idealne na kącik jadalniany lub miejsce do czytania.
Ogrzewanie oraz ciepła woda - piec gazowy dwufunkcyjny.
Okna - PCV
BUDYNEK:
Kamienica wybudowana w 1898 roku.
Budynek zbudowany z cegły.
Elewacja w dobrym stanie.
Plusami tej lokalizacji są liczne punkty handlowo - usługowe, dobre skomunikowanie.
LOKALIZACJA:
Mieszkanie zlokalizowane na Śródmieściu.
Bardzo dobrze skomunikowana część miasta.
Wiele punktów handlowych i usługowych w pobliżu.
INFORMACJE DODATKOWE:.
Czynsz wynosi około 550 zł.
Zapraszam na prezentację!
Nota prawna
Opis oferty zawarty na stronie internetowej sporządzany jest na podstawie oględzin nieruchomości oraz informacji uzyskanych od właściciela, może podlegać aktualizacji i nie stanowi oferty określonej w art. 66 i następnych K.C.
Kalkulator kredytowy
Formularz kontaktowy