Mieszkanie na sprzedaż
750 148 zł
70 m2







1 / 7
Szczegóły ogłoszenia
- Symbol oferty MAK-MS-27645
- Typ oferty mieszkanie na sprzedaż
- Cena 750 148 zł
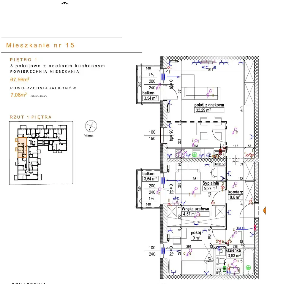
- Charakterystyka mieszkania 69.57 m2, 3 pokoje
- Budynek blok; rok budowy: 2024
- Rozkład mieszkania 1p piętro
- Media Ogrzewanie: miejskie
- Balkon jest
- Technologia budowlana silikat
- Winda Tak
Lokalizacja
- Adres kujawsko-pomorskie, Bydgoszcz, Górzyskowo
Opis nieruchomości
Biuro Makler poleca:
Szukasz NOWEGO DEVELOPERSKIEGO mieszkania?
Zależy Ci na cichej okolicy, bliskości terenów zielonych, oraz atrakcji Centrum miasta?
Jeśli TAK to ta oferta jest właśnie dla Ciebie !!
Kupujący nie płaci podatku PCC!! oraz prowizji do biura!!
Przedstawiamy 3 pokojowe mieszkanie o powierzchni 69,65 m2 na 1 piętrze w nowym bloku z windą i balkonem.
O inwestycji
W dzielnicy Górzyskowo w Bydgoszczy buduje się nowoczesny budynek wielorodzinny. Kaskadowa konstrukcja, przestronne tarasy z dużymi przeszkleniami, ponadczasowa kolorystyka w odcieniach bieli i szarości, nadają budynkom tu budowanym bardzo oryginalnego stylu. Dużym atutem inwestycji jest doskonała lokalizacja.
| Lokalizacja: | Inwestycja zlokalizowana jest na bydgoskim Górzyskowie, w zachodniej części miasta. W pobliżu znajduje się Castorama przy ul. Szubińskiej, a kawałek dalej jest Centrum Handlowe Rondo. |
| Przynależności: | Do każdego apartamentu przynależy ogród lub taras. |
| Bezpieczeństwo: | Domofon, teren zamknięty |
| Garaże: | Do dyspozycji mieszkańców należą miejsca postojowe w hali garażowej. |
| Komunikacja: | przystanek autobusowy 900 m, stacja kolejowa 4 km |
| Odległość od Centrum: | 2 km |
Zapraszam na prezentację!!
"Uwaga! Podane informacje cenowe mają charakter informacyjny i niewiążący. Wszelkie informacje, o których mowa w art. 19a z dnia 21.05.2021r. o ochronie praw nabywcy lokalu mieszkalnego lub domu jednorodzinnego oraz Deweloperskim Funduszu Gwarancyjnym, w tym dot. adresu siedziby dewelopera, adresu lokalu, w którym prowadzona jest sprzedaż, sposobu kontaktu nabywcy z deweloperem, lokalizacji przedsięwzięcia deweloperskiego lub zadania inwestycyjnego, a także informacje nt. aktualnych : cen m2 powierzchni użytkowej każdego z oferowanych lokali mieszkalnych lub domów jednorodzinnych oraz całej nieruchomości lub jej części, będących przedmiotem umowy; cen pomieszczeń przynależnych lub praw niezbędnych do korzystania z lokalu mieszkalnego lub domu jednorodzinnego - jeżeli ich cena nie jest uwzględniona w cenie lokalu lub domu; innych niż określone wyżej świadczeniach pieniężnych, które nabywca zobowiązany jest spełnić na rzecz dewelopera w wykonaniu umowy przenoszącej własność z uwzględnieniem podatku od towarów i usług - jeżeli występują; informacje nt. ich zmian a także część ogólna prospektu informacyjnego, dotyczącego tego przedsięwzięcia deweloperskiego lub zadania inwestycyjnego, dostępne są na stronie internetowej www.budstol-invest.pl'
Nota prawna
Opis oferty zawarty na stronie internetowej sporządzany jest na podstawie oględzin nieruchomości oraz informacji uzyskanych od właściciela, może podlegać aktualizacji i nie stanowi oferty określonej w art. 66 i następnych K.C.
Kalkulator kredytowy
Formularz kontaktowy