Mieszkanie na sprzedaż











Szczegóły ogłoszenia
- Symbol oferty ODOM-MS-455
- Typ oferty mieszkanie na sprzedaż
- Cena 758 508 zł
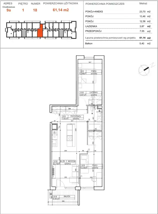
- Charakterystyka mieszkania 61.14 m2, 3 pokoje
- Budynek apartamentowiec; rok budowy: 2025
- Rozkład mieszkania 1p piętro
- Media Ogrzewanie: podłogowe
- Balkon jest
- Okna PCV
- Plac zabaw Tak
- Stan lokalu deweloperski
- Winda Tak
Lokalizacja
- Adres kujawsko-pomorskie, Bydgoszcz
Opis nieruchomości
Kameralne osiedle przy ul. Chodkiewicza 9 to wyjątkowa inwestycja, w ramach której powstało 211 starannie zaprojektowanych lokali mieszkalnych od kompaktowych mieszkań dla singli, po przestronne apartamenty dla rodzin. To miejsce, które łączy nowoczesną architekturę, wysoki standard wykonania i komfort codziennego życia.
Na mieszkańców czekają funkcjonalne układy pomieszczeń, przemyślane rozwiązania technologiczne oraz liczne udogodnienia, które podnoszą jakość życia i tworzą wyjątkową, przyjazną przestrzeń do zamieszkania.
Układ mieszkania
Powierzchnia użytkowa o metrażu 61,14 m² obejmuje:
- Pokój z aneksem kuchennym
- Salon
- Salon
- Łazienkę
- Balkon
Mieszkanie doskonale sprawdzi się dla singla, pary lub jako bezpieczna inwestycja kapitału w nieruchomość pod wynajem.
Dodatkowo możesz dokupić:
- Miejsce postojowe w hali garażowej – od 54 000 zł
- Miejsce postojowe na terenie zamkniętym – 29tys zł
- Komórkę lokatorską – 5 500 zł/m²
Na terenie inwestycji znajdziesz:
- miejsce do ładowania samochodów elektrycznych
- halę garażową i komórki lokatorskie
- szybką i cichobieżną windę
- monitoring i ogrodzony teren
- zagospodarowaną, zieloną przestrzeń wokół budynku
- wysoki standard części wspólnych
Lokalizacja, która sprzyja życiu
Osiedle Symfonia powstaje w wyjątkowym miejscu – w samym sercu Bydgoszczy, w otoczeniu zieleni i miejskich udogodnień. W pobliżu znajdują się parki, sklepy, restauracje, szkoły i przedszkola, a także kampus Akademii Muzycznej, który nadaje okolicy niepowtarzalny, artystyczny klimat.
Dzięki doskonałej komunikacji z centrum miasta, do najważniejszych punktów Bydgoszczy dotrzesz w zaledwie kilka minut.
To idealne miejsce dla tych, którzy cenią sobie wygodę miejskiego życia, a jednocześnie pragną spokoju i harmonii w codziennym otoczeniu.
** Dostępna jest opcja wykończenia pod klucz, przy czym koszt ustalany jest indywidualnie i zależy od wybranych materiałów. **
Z przyjemnością przeprowadzę Cię przez cały proces zakupu – od pierwszego kontaktu aż po przekazanie kluczy.