Mieszkanie na sprzedaż
799 000 zł
131 m2














1 / 14
Szczegóły ogłoszenia
- Symbol oferty PRN-MS-7115
- Typ oferty mieszkanie na sprzedaż
- Cena 799 000 zł
- Charakterystyka mieszkania 130.76 m2, 6 pokoi
- Budynek kamienica; rok budowy: 1812
- Rozkład mieszkania 2p piętro
- Media Ogrzewanie: C.O. GAZOWE; Woda: piecyk gazowy
- Balkon jest
- Czynsz Czynsz letni: 585 zł
- Dojazd ASFALTOWA
- Instalacje nowe
- Okna PCV
- Otoczenie centrum miasta
- Stan lokalu deweloperski
- Technologia budowlana cegła
Lokalizacja
- Adres kujawsko-pomorskie, Bydgoszcz, Centrum
Opis nieruchomości
OPIS OFERTY:
Oferujemy na sprzedaż przestronne mieszkanie w ścisłym centrum miasta.
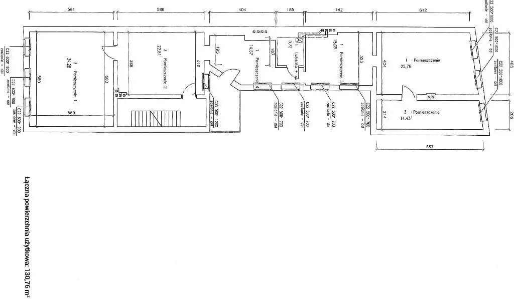
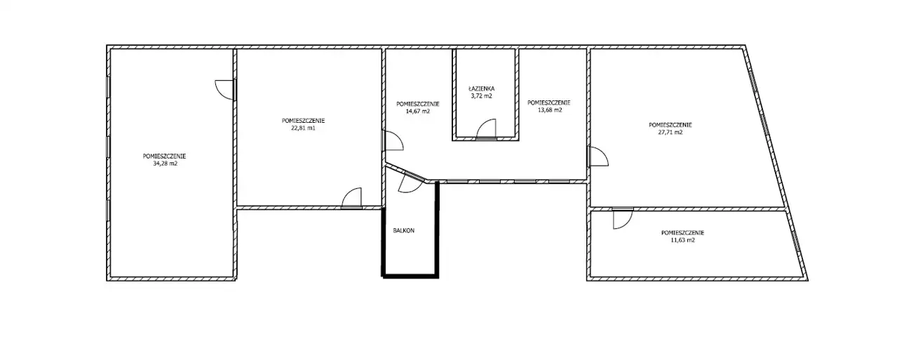
Lokal o powierzchni 130,76 m2 składa się aż z sześciu pokoi.
Wyróżnia się dużymi pomieszczaniami, ciekawym potencjałem aranżacyjnym oraz świetną lokalizacją dla osób lubiących korzystać z uroków życia w centrum.
UKŁAD MIESZKANIA:
W skład mieszkania wchodzą:
- pomieszczenie - 34,28 m2
- pomieszczenie - 22,81 m2
- pomieszczenie - 14,67 m2
- pomieszczenie - 13,68 m2
- pomieszczenie - 27,71 m2
- pomieszczenie - 11,63 m2
- łazienka - 3,72 m2
- balkon
Układ środkowy, dwustronny.
STANDARD:
Mieszkanie jest w standardzie deweloperskim plus.
Wymieniono wszystkie instalacje i grzejniki.
W całym mieszkaniu nowe okna.
Na podłodze płyty wiórowe osb.
Na ścianach gładzie pomalowane na biało.
BUDYNEK:
Kamienica wybudowana w 1812.
Elewacja odnowiona.
LOKALIZACJA:
Nieruchomość położona w ścisłym centrum miasta przy ul. Długiej.
Obok Stary Rynek.
Duży parking wielopoziomowy przy sąsiedniej ulicy.
INFORMACJE DODATKOWE:
Czynsz wynosi około 4,5 zł/ m2:
- media według zużycia.
Zapraszam na prezentację!
Oferujemy na sprzedaż przestronne mieszkanie w ścisłym centrum miasta.
Lokal o powierzchni 130,76 m2 składa się aż z sześciu pokoi.
Wyróżnia się dużymi pomieszczaniami, ciekawym potencjałem aranżacyjnym oraz świetną lokalizacją dla osób lubiących korzystać z uroków życia w centrum.
UKŁAD MIESZKANIA:
W skład mieszkania wchodzą:
- pomieszczenie - 34,28 m2
- pomieszczenie - 22,81 m2
- pomieszczenie - 14,67 m2
- pomieszczenie - 13,68 m2
- pomieszczenie - 27,71 m2
- pomieszczenie - 11,63 m2
- łazienka - 3,72 m2
- balkon
Układ środkowy, dwustronny.
STANDARD:
Mieszkanie jest w standardzie deweloperskim plus.
Wymieniono wszystkie instalacje i grzejniki.
W całym mieszkaniu nowe okna.
Na podłodze płyty wiórowe osb.
Na ścianach gładzie pomalowane na biało.
BUDYNEK:
Kamienica wybudowana w 1812.
Elewacja odnowiona.
LOKALIZACJA:
Nieruchomość położona w ścisłym centrum miasta przy ul. Długiej.
Obok Stary Rynek.
Duży parking wielopoziomowy przy sąsiedniej ulicy.
INFORMACJE DODATKOWE:
Czynsz wynosi około 4,5 zł/ m2:
- media według zużycia.
Zapraszam na prezentację!
Nota prawna
Opis oferty zawarty na stronie internetowej sporządzany jest na podstawie oględzin nieruchomości oraz informacji uzyskanych od właściciela, może podlegać aktualizacji i nie stanowi oferty określonej w art. 66 i następnych K.C.
Kalkulator kredytowy
Formularz kontaktowy