Mieszkanie na sprzedaż
855 000 zł
57 m2




1 / 4
Szczegóły ogłoszenia
- Symbol oferty MAK-MS-24947
- Typ oferty mieszkanie na sprzedaż
- Cena 855 000 zł
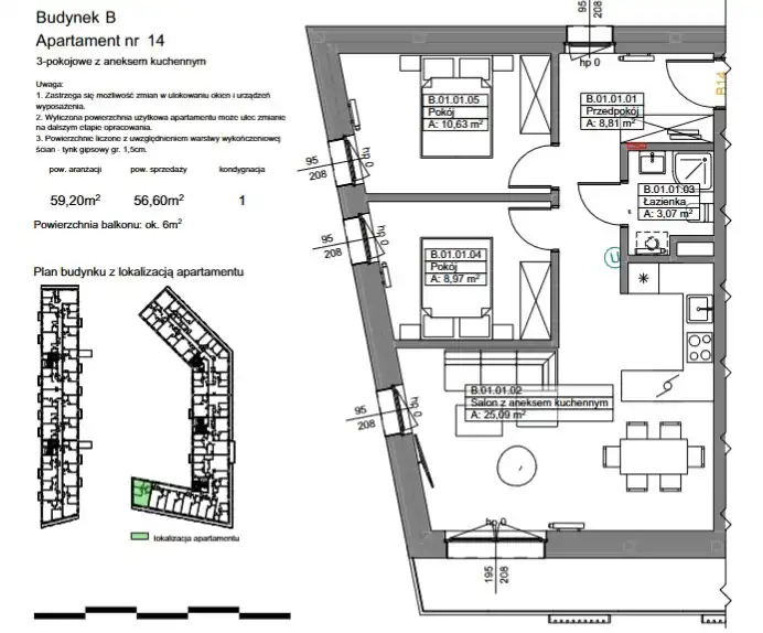
- Charakterystyka mieszkania 56.57 m2, 3 pokoje
- Budynek blok; rok budowy: 2025
- Rozkład mieszkania 1p piętro
- Media Ogrzewanie: miejskie
- Balkon jest
- Technologia budowlana silikat
- Winda Tak
Lokalizacja
- Adres kujawsko-pomorskie, Bydgoszcz, Bielawy
Opis nieruchomości
Biuro Makler poleca:
Szukasz NOWEGO DEVELOPERSKIEGO mieszkania?
Zależy Ci na cichej okolicy, bliskości terenów zielonych, oraz bliskości pięknego nowego kampusu Akademii Muzycznej?
Potrzebujesz bezpieczeństwa w postaci zamkniętego osiedla?
Jeśli TAK to ta oferta jest właśnie dla Ciebie !!
Kupujący nie płaci podatku PCC!! oraz prowizji do biura!!
Przedstawiamy 3 pokojowe mieszkanie o powierzchni 56,57m2 na 1 piętrze w bloku z cichą windą.
Opis inwestycji:
Doskonała lokalizacja, centrum Bydgoszczy i adres, który ma znaczenie. Tylko dwa budynki w wysokim standardzie na kameralnym osiedlu. W sąsiedztwie eleganckich, przedwojennych domów, nowoczesnych apartamentów i kampusu Akademii Muzycznej. Miejsce, w którym można korzystać ze wszystkich zalet zamieszkiwania w centrum miasta i jednocześnie cieszyć się zielenią, spokojem oraz niespiesznym tempem życia.
Osiedle które powstaje przy nowym kampusie Akademii Muzycznej w Bydgoszczy to funkcjonalne, mieszkania i przestronne apartamenty z wygodnymi, tarasami.
Do dyspozycji mieszkańców podziemna hala garażowa, cichobieżne windy i zagospodarowany zielenią przepiękne patio, w którym zostanie zasadzone 300 drzew i krzewów, oraz wiele, wiele innych atutów
W standardzie:
- ELEWACJA WENTYLOWANA ALUCOBOND / HPL
- OKNA 3-SZYBOWE Z SYSTEMEM ROLET LUB ŻALUZJI
- LUKSUSOWE LOBBY
- MUZYKA PRZY WEJŚCIACH I DYFUZORY ZAPACHU
- CENTRALNA STACJA UZDATNIANIA WODY
- INTELIGENTNE WINDY I WIDEOFONY
- PODZIEMNA HALA GARAŻOWA
- PONAD 300 DRZEW I KRZEWÓW
- INTELIGENTNE NAWADNIANIE I ROBOTY KOSZĄCE
- TEREN ZAMKNIĘTY / MONITOROWANY
W pobliżu inwestycji:
- 5 m NOWA AKADEMIA MUZYCZNA
- 800 m UNIWERSYTET KAZIMIERZA WIELKIEGO
- 500 m TEATR POLSKI
- 750 m FILHARMONIA POMORSKA
- Szpital Dziecięcy
- Cukiernia Staropolska- Stacja Roweru Aglomeracyjnego
- Stadion Lekkoatletyczny „Zawisza”
- Park Kochanowskiego
- Tako Sushi
- Park Handlowy
- Stadion Polonia Bydgoszcz
- Park Botaniczny
- Focus Mall
- Centrum Trampolin
- Korty tenisowe
Budynek zostanie oddany do użytku w IV kwartale 2025
Zapraszam na prezentację!!
Nota prawna
Opis oferty zawarty na stronie internetowej sporządzany jest na podstawie oględzin nieruchomości oraz informacji uzyskanych od właściciela, może podlegać aktualizacji i nie stanowi oferty określonej w art. 66 i następnych K.C.
Kalkulator kredytowy
Formularz kontaktowy