Obiekt na sprzedaż
1 020 000 zł
150 m2


















1 / 18
Szczegóły ogłoszenia
- Symbol oferty YNK-BS-2503
- Typ oferty obiekt na sprzedaż
- Cena 1 020 000 zł
- Charakterystyka mieszkania 150 m2
- Budynek rok budowy: 2012
- Media Ogrzewanie: elektryczne; Woda: tak - miejska; Kanalizacja: szambo
- Miejsce parkingowe Tak
- Dojazd asfalt
- Plac zabaw Tak
Lokalizacja
- Adres pomorskie, Choczewo, Kopalino
Opis nieruchomości
Oferujemy do sprzedaży w pełni działający i znajdujący się w doskonałym stanie technicznym zaciszny ośrodek wypoczynkowy nad morzem w urokliwej miejscowości Kopalino, gm. Choczewo przy ul. Jałowcowej.
UWAGA! – ośrodek sprzedawany z pełnym wyposażeniem – domki i zaplecze, gotowy do przyjęcia gości bez żadnych inwestycji.
W miejscowości funkcjonują sklepy, restauracje (w tym całoroczne), pensjonaty. Lokalna agroturystyka działa prężnie o każdej porze roku.
Urokliwa miejscowość, lasy, ścieżki rowerowe, plaże, jezioro. Ośrodek zlokalizowany jest na działce o powierzchni 1450m2, składa się z 4 drewnianych domków.
Posiadłość posiada bramę wjazdową, teren ogrodzony, dostępne miejsca parkingowe. Ponadto, każdy domek posiada częściowo zadaszony taras z zestawem mebli ogrodowych. Domki są w doskonałym stanie technicznym i wizualnym.
Na terenie ośrodka, zlokalizowano również domek narzędziowy oraz plac zabaw do dzieci.
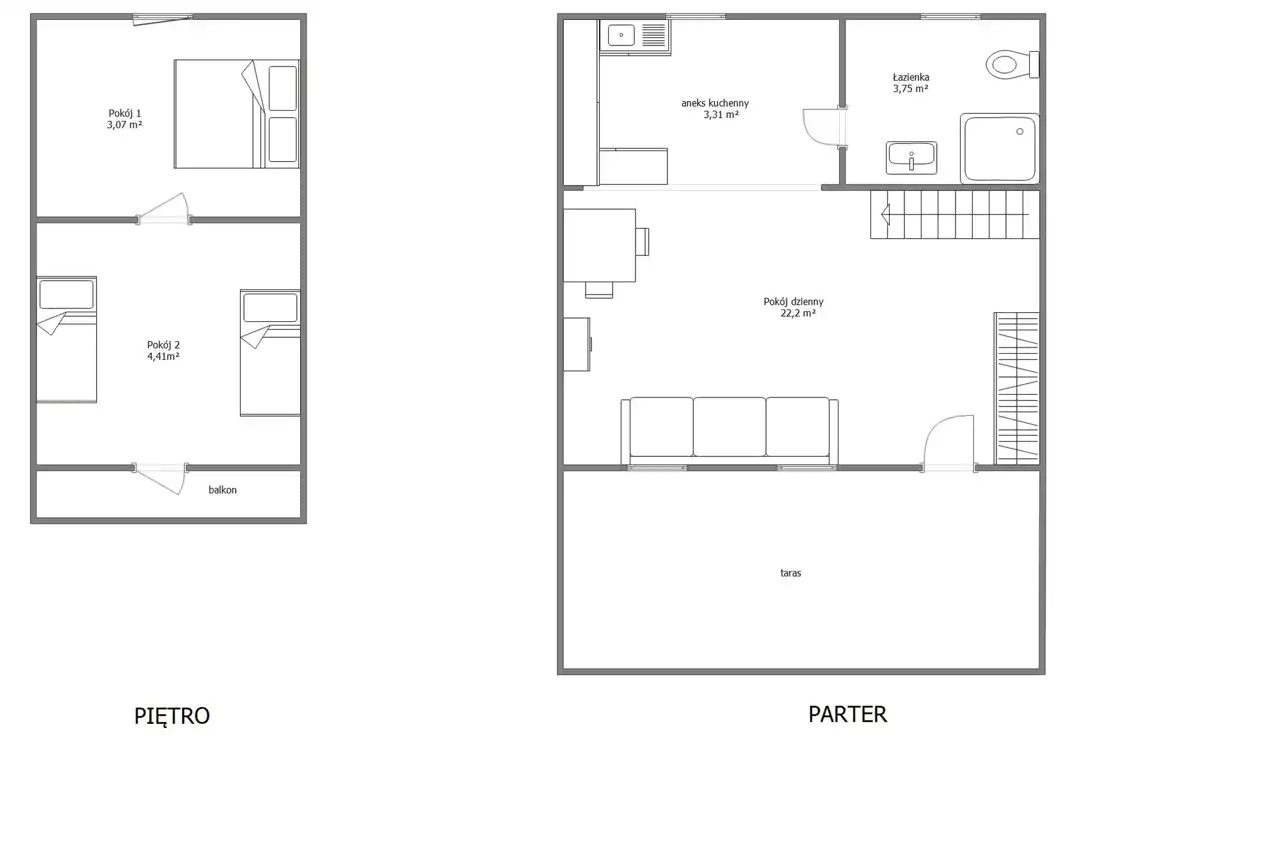
Do dyspozycji 4 domki o jednakowym rozkładzie pomieszczeń. Powierzchnia użytkowa każdego z nich to 36,74m2. Parter składa się z salonu/pokoju dziennego (22,2m2), kuchni, łazienki (3,75 m2) oraz schodów. Salon otwarty na część kuchenną. Kuchnia zabudowana praktycznymi meblami, wyposażona w podstawowy sprzęt kuchenny. Łazienka w wyłożona glazurą i terakotą, wyposażona w narożną kabinę prysznicową, umywalkę oraz toaletę. Na górę domku prowadzą ładne, drewniane schody. Do dyspozycji dwie sypialnie - większa z balkonem.
Media: prąd, woda, szambo
Ogrzewanie: elektryczne
Forma własności: pełna własność, brak obciążeń w księdze wieczystej
Rok budowy: 2012
CENA: 1 020 000 zł
Oferujemy Państwu pomoc w uzyskaniu kredytu hipotecznego. Współpracujemy z kluczowymi bankami, a ofertę dobieramy indywidualnie biorąc pod uwagę kryteria wskazane przez Ciebie, jak i Twoją kondycję finansową.
Gwarantujemy bezpieczeństwo i obsługę prawną.
Oferta godna polecenia. Zadzwoń i umów się na prezentację! Kontakt Marlena: 533 279 086
Niniejsza oferta nie stanowi oferty w rozumieniu kodeksu cywilnego, a dane w niej zawarte mają jedynie charakter informacyjny i mogą ulec zmianie.
UWAGA! – ośrodek sprzedawany z pełnym wyposażeniem – domki i zaplecze, gotowy do przyjęcia gości bez żadnych inwestycji.
W miejscowości funkcjonują sklepy, restauracje (w tym całoroczne), pensjonaty. Lokalna agroturystyka działa prężnie o każdej porze roku.
Urokliwa miejscowość, lasy, ścieżki rowerowe, plaże, jezioro. Ośrodek zlokalizowany jest na działce o powierzchni 1450m2, składa się z 4 drewnianych domków.
Posiadłość posiada bramę wjazdową, teren ogrodzony, dostępne miejsca parkingowe. Ponadto, każdy domek posiada częściowo zadaszony taras z zestawem mebli ogrodowych. Domki są w doskonałym stanie technicznym i wizualnym.
Na terenie ośrodka, zlokalizowano również domek narzędziowy oraz plac zabaw do dzieci.
Do dyspozycji 4 domki o jednakowym rozkładzie pomieszczeń. Powierzchnia użytkowa każdego z nich to 36,74m2. Parter składa się z salonu/pokoju dziennego (22,2m2), kuchni, łazienki (3,75 m2) oraz schodów. Salon otwarty na część kuchenną. Kuchnia zabudowana praktycznymi meblami, wyposażona w podstawowy sprzęt kuchenny. Łazienka w wyłożona glazurą i terakotą, wyposażona w narożną kabinę prysznicową, umywalkę oraz toaletę. Na górę domku prowadzą ładne, drewniane schody. Do dyspozycji dwie sypialnie - większa z balkonem.
Media: prąd, woda, szambo
Ogrzewanie: elektryczne
Forma własności: pełna własność, brak obciążeń w księdze wieczystej
Rok budowy: 2012
CENA: 1 020 000 zł
Oferujemy Państwu pomoc w uzyskaniu kredytu hipotecznego. Współpracujemy z kluczowymi bankami, a ofertę dobieramy indywidualnie biorąc pod uwagę kryteria wskazane przez Ciebie, jak i Twoją kondycję finansową.
Gwarantujemy bezpieczeństwo i obsługę prawną.
Oferta godna polecenia. Zadzwoń i umów się na prezentację! Kontakt Marlena: 533 279 086
Niniejsza oferta nie stanowi oferty w rozumieniu kodeksu cywilnego, a dane w niej zawarte mają jedynie charakter informacyjny i mogą ulec zmianie.
Nota prawna
Opis oferty zawarty na stronie internetowej sporządzany jest na podstawie oględzin nieruchomości oraz informacji uzyskanych od właściciela, może podlegać aktualizacji i nie stanowi oferty określonej w art. 66 i następnych K.C.
Kalkulator kredytowy
Formularz kontaktowy