Hala na wynajem
7 zł
3 673 m2



1 / 3
Szczegóły ogłoszenia
- Symbol oferty NDS-HW-14
- Typ oferty hala na wynajem
- Czynsz wynajmu 7 zł / miesiąc
- Charakterystyka mieszkania 3673 m2
- Media Ogrzewanie: elektryczne
- Dojazd asfalt
- Działka częściowo zagospodarowana, płaska, prostokąt
- Kaucja do uzgodnienia
- Liczba kondygnacji 3
- Otoczenie zakład produkcyjny
Lokalizacja
- Adres dolnośląskie, legnicki, Chojnów
Opis nieruchomości
Budynek Hala 3 piętrowa nadająca się na magazyn i produkcję w przemysłowej dzielnicy Chojnowa.
Do autostrady A4: 6km / 10min.
7zł/m2 netto
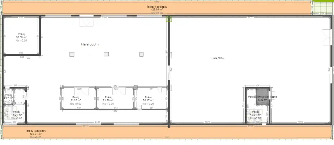
Duża możliwość konfiguracji najmu 1.200m2 na piętrze z możliwością podziału na 600m oraz mniej 6 oddzielnych bram dużych oraz 2 klatki schodowe.
3 piętra po 1200m2 w układzie z możliwością rozdzielenia na 2 samodzielne hale po 600m2 z windami (obecnie windy towarowe wyłączone z użytku).
Możliwość sprzedaży połowy budynku w całości za 1.3000.000zł lub połowy budynku w cenie 700.000zł netto.
2019r remont wymiana dachu na nowy wraz z ociepleniem. Poglądowy rzut parteru (pomieszczenia hali oraz pomieszczenia socjalne mogą zostać zmodyfikowane wg. własnych potrzeb).
Możliwość oględzin po wcześniejszym umówieniu (klucze w biurze).
Budynek posiada po obu stronach wzdłuż zadaszone rampy oraz na krótszym boku bramy w tym jedna z rampą, a druga z najazdem. Budynek bardzo uniwersalnego przeznaczenia więcej informacji udzielę telefonicznie lub e-mailem. 2 widny oraz 2 klatki schodowe. Jeden właściciel: spółka kapitałowa
Cena netto sprzedaży za metr na stawce 23%VAT lub zwolniona (do ustalenia).
Możliwość wynajmu całości lub części oraz przynależnego Placu częściowo ogrodzonego.
Zapraszam do kontaktu i prezentacji.
Do autostrady A4: 6km / 10min.
7zł/m2 netto
Duża możliwość konfiguracji najmu 1.200m2 na piętrze z możliwością podziału na 600m oraz mniej 6 oddzielnych bram dużych oraz 2 klatki schodowe.
3 piętra po 1200m2 w układzie z możliwością rozdzielenia na 2 samodzielne hale po 600m2 z windami (obecnie windy towarowe wyłączone z użytku).
Możliwość sprzedaży połowy budynku w całości za 1.3000.000zł lub połowy budynku w cenie 700.000zł netto.
2019r remont wymiana dachu na nowy wraz z ociepleniem. Poglądowy rzut parteru (pomieszczenia hali oraz pomieszczenia socjalne mogą zostać zmodyfikowane wg. własnych potrzeb).
Możliwość oględzin po wcześniejszym umówieniu (klucze w biurze).
Budynek posiada po obu stronach wzdłuż zadaszone rampy oraz na krótszym boku bramy w tym jedna z rampą, a druga z najazdem. Budynek bardzo uniwersalnego przeznaczenia więcej informacji udzielę telefonicznie lub e-mailem. 2 widny oraz 2 klatki schodowe. Jeden właściciel: spółka kapitałowa
Cena netto sprzedaży za metr na stawce 23%VAT lub zwolniona (do ustalenia).
Możliwość wynajmu całości lub części oraz przynależnego Placu częściowo ogrodzonego.
Zapraszam do kontaktu i prezentacji.
Nota prawna
Opis oferty zawarty na stronie internetowej sporządzany jest na podstawie oględzin nieruchomości oraz informacji uzyskanych od właściciela, może podlegać aktualizacji i nie stanowi oferty określonej w art. 66 i następnych K.C.
Formularz kontaktowy