Mieszkanie na sprzedaż










Szczegóły ogłoszenia
- Symbol oferty AMBS-MS-1039
- Typ oferty mieszkanie na sprzedaż
- Cena 460 000 zł
- Charakterystyka mieszkania 50.68 m2, 3 pokoje
- Budynek blok; rok budowy: 2024
- Rozkład mieszkania 1p piętro
- Media Ogrzewanie: miejskie; Woda: tak
- Balkon loggia
- Czynsz Czynsz letni: 400 zł
- Ilość sypialni 2
- Okna PCV
- Stan lokalu deweloperski
- Technologia budowlana beton, cegła
- Winda Tak
Lokalizacja
- Adres podlaskie, Choroszcz (gw), Porosły
Opis nieruchomości
Przedstawiam Państwu wyjątkową ofertę sprzedaży mieszkania, usytuowanego w niskiej zabudowie w malowniczej miejscowości Porosły, na prestiżowym osiedlu Berberys. Inwestycja Berberys to kameralny kompleks 3-piętrowych budynków otoczonych pięknymi zielonymi terenami oraz niską zabudową mieszkaniową. To idealne miejsce dla miłośników przyrody którzy chcą uciec od miejskiego zgiełku, jednocześnie pozostając w świetnej komunikacji z centrum Białegostoku.
Funkcjonalna infrastruktura umożliwia codzienne funkcjonowanie w komfortowych warunkach. Zabudowa jest przyjazna dla środowiska i korzysta z ekologicznych rozwiązań, takich jak panele fotowoltaiczne. Wybierając tą inwestycję, zyskujesz nie tylko wygodne i nowoczesne mieszkanie, ale także zapewniasz sobie i swojej rodzinie przyjazne środowisko do życia.
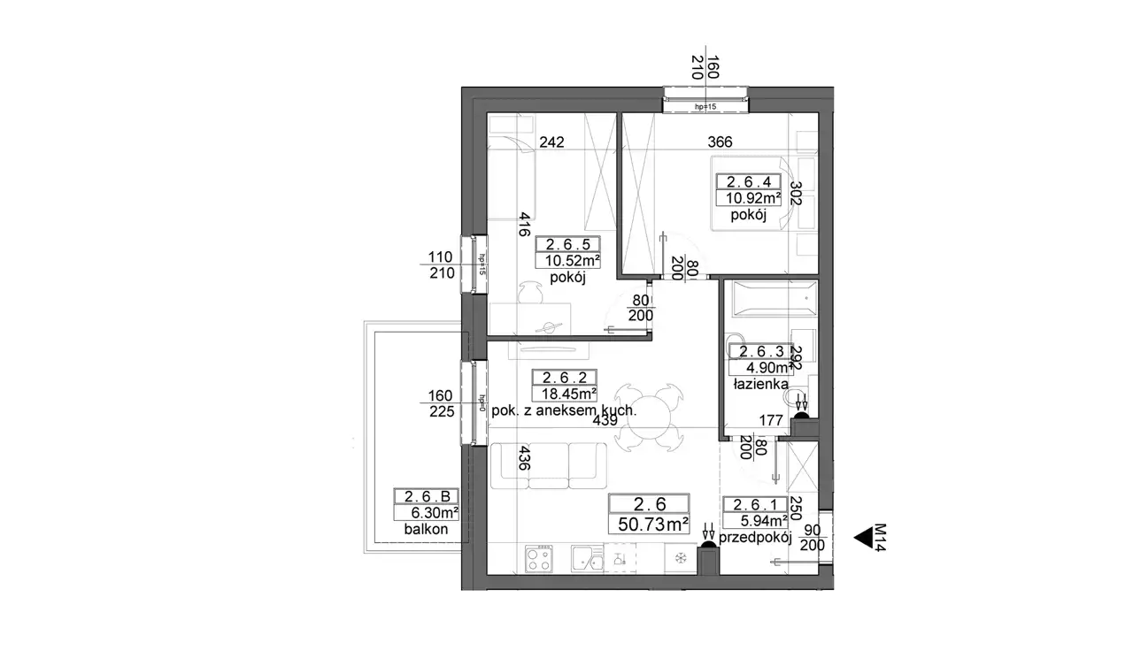
Mieszkanie w stanie deweloperskim usytuowane na 1.piętrze o powierzchni 50,68 m² obejmującej:
- aneks kuchenny z salonem z wyjściem na balkon,
- 2 sypialnie,
- łazienka,
- przedpokój.
Zapraszam na bezpłatna prezentację.
Magdalena Szmurło
Tel: 512 915 969
Ambasada Nieruchomości