Mieszkanie na sprzedaż








Szczegóły ogłoszenia
- Symbol oferty AMBS-MS-1038
- Typ oferty mieszkanie na sprzedaż
- Cena 470 000 zł
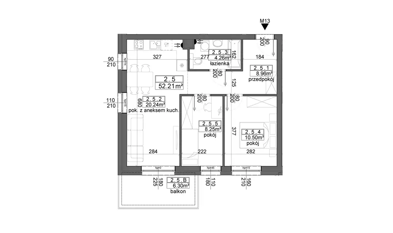
- Charakterystyka mieszkania 52.19 m2, 3 pokoje
- Budynek blok; rok budowy: 2024
- Rozkład mieszkania 1p piętro
- Media Ogrzewanie: C.O. miejskie; Woda: tak - miejska
- Balkon loggia
- Czynsz Czynsz letni: 400 zł
- Ilość sypialni 2
- Okna PCV
- Stan lokalu deweloperski
- Technologia budowlana beton, cegła
- Winda Tak
Lokalizacja
- Adres podlaskie, Choroszcz (gw), Porosły
Opis nieruchomości
Komfortowe M3 w nowym budownictwie
Serdecznie zapraszam do zapoznania się z wyjątkową ofertą sprzedaży 3-pokojowego mieszkania w prestiżowej inwestycji Berberys, zlokalizowanej przy ul. Wierzbowej w Porosłach. To miejsce, które łączy nowoczesną architekturę z kameralnym charakterem, a zarazem oferuje mieszkańcom pełen komfort codziennego życia.
Lokal o powierzchni 52,19 m² znajduje się na wygodnym pierwszym piętrze w nowoczesnym budynku z 2024 roku, wyposażonym w windę. Wnętrza w stanie deweloperskim dają możliwość swobodnej aranżacji zgodnie z własnymi potrzebami i gustem. W skład mieszkania wchodzi:
- przestronny salon z aneksem kuchennym
- dwa niezależne pokoje,
- funkcjonalna łazienka z wc,
- wygodny korytarz.
Miesięczny czynsz obejmujący koszty stałe oraz m.in. zaliczki na zużycie wody i c.o. wynosi ok. 400 zł. Dodatkowym atutem nieruchomości jest przynależne miejsce postojowe bezpośrednio pod budynkiem- dodatkowo płatne (30.000 zł)
Inwestycja Berberys to kameralny kompleks 3-piętrowych budynków otoczonych pięknymi zielonymi terenami oraz niską zabudową mieszkaniową. To idealne miejsce dla miłośników przyrody którzy chcą uciec od miejskiego zgiełku, jednocześnie pozostając w świetnej komunikacji z centrum Białegostoku.
Funkcjonalna infrastruktura umożliwia codzienne funkcjonowanie w komfortowych warunkach. Zabudowa jest przyjazna dla środowiska i korzysta z ekologicznych rozwiązań, takich jak panele fotowoltaiczne. Wybierając tą inwestycję, zyskujesz nie tylko wygodne i nowoczesne mieszkanie, ale także zapewniasz sobie i swojej rodzinie przyjazne środowisko do życia.
Załączone zdjęcia są wizualizacją wnętrz, które przedstawiają, jak mieszkanie może wyglądać po wykończeniu. Wizualizacje te mają charakter przykładowy i mogą inspirować przyszłych właścicieli w procesie urządzania ich wymarzonego domu.
Mieszkanie dostępne od zaraz – idealne pod inwestycję lub jako wymarzone miejsce do zamieszkania. Serdecznie zapraszam na prezentację!
Tel: 512 915 969
Ambasada Nieruchomości