Działka na sprzedaż










Szczegóły ogłoszenia
- Symbol oferty BS5-GS-300443
- Typ oferty działka na sprzedaż
- Cena 397 000 zł
- Charakterystyka mieszkania 1155 m2
- Media Woda: w ulicy; Kanalizacja: w ulicy; Prąd: na działce; Gaz: w ulicy
- Bezpieczeństwo ogrodzenie działki: częściowo ogrodzona
- Dojazd asfalt
- Działka Niezagospodarowana, płaska, prostokąt
- Otoczenie działki zabudowane
Lokalizacja
- Adres małopolskie, chrzanowski, Chrzanów
Opis nieruchomości
Działka usługowo – inwestycyjna z pnb w Chrzanowie
Oferujemy na sprzedaż działkę budowlaną położoną w Chrzanowie przy ul. Śląskiej (głównej drodze prowadzącej do Jaworzna), w pobliżu zjazdu z autostrady A4.
Działka o powierzchni 1155 m2, w kształcie prostokąta o wymiarach z ok. 21 x 54 m. Teren płaski, niezabudowany i niezadrzewiony.
Nieruchomość posiada prawomocne pozwolenie na budowę z pełną dokumentacją do zaplanowanej inwestycji tj. budowy budynku usługowo – handlowego wraz z infrastrukturą techniczną, z uwzględnieniem budowy zjazdu publicznego z drogi gminnej.
OPIS INWESTYCJI
Planowana inwestycja ma polegać na budowie budynku usługowo – handlowego o nw. parametrach:
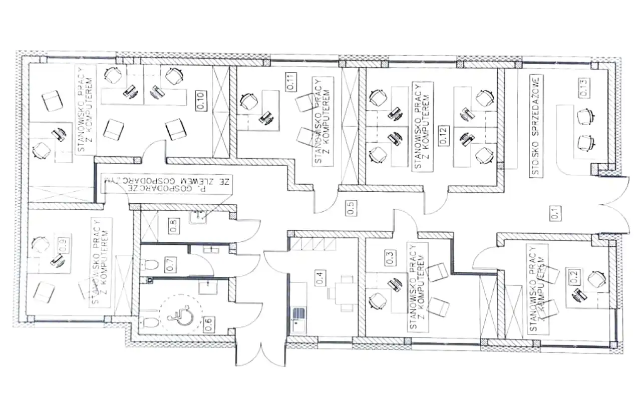
1. Zestawienie powierzchni użytkowej budynku:
pow. zabudowy – 230 m2
kubatura – 724 m3
pow. całkowita – 179,58 m2
pow. użytkowa – 179,58 m2
2. Rozkład pomieszczeń:
hol – 3,93 m2
biuro – 13,2 m2
biuro – 14,86 m2
pom. socjalne – 8,88 m2
komunikacja – 32,15 m2
wc – 6,29 m2
wc – 3,6 m2
pom. gospodarcze – 3,6 m2
biuro – 14,42 m2
biuro – 28,09 m2
biuro – 16,97 m2
biuro – 20,24 m2
pom. handlowe – 13,35 m2
RAZEM: 179,58 m2
Przy budynku zaplanowano wykonanie 8 miejsc postojowych.
WARUNKI ZABUDOWY
Decyzja o warunkach zabudowy przewiduje nw. parametry:
- powierzchnia inwestycji – 70%
- powierzchnia biologicznie czynna – min. 30%
- wysokość budynku – 11 m (co pozwala na ewentualną rozbudowę planowanego budynku)
MEDIA:
- prąd, woda, gaz, kanalizacja – znajdują się przy działce
- wydano warunki przyłączy dla wszystkich mediów
- światłowód przy działce
INNE:
działka utwardzona ok. 10 lat temu kamieniem
FORMA WŁASNOŚCI:
uregulowana, bez obciążeń
Biuro pomaga bezpiecznie przeprowadzić transakcję.
Szczegóły oferty
798 352 683
marek3@sadurscy.pl