Mieszkanie na sprzedaż












Szczegóły ogłoszenia
- Symbol oferty PLN-MS-8468
- Typ oferty mieszkanie na sprzedaż
- Cena 330 000 zł
- Charakterystyka mieszkania 48.25 m2, 3 pokoje
- Budynek blok; rok budowy: 1980
- Rozkład mieszkania 2p piętro
- Media Ogrzewanie: C.O. miejskie; Woda: ciepła - miejska; Gaz: jest
- Balkon jest
- Czynsz Czynsz letni: 600 zł
- Dojazd asfalt
- Garaż miejsce parkingowe przy budynku
- Ilość sypialni 2
- Instalacje ELEKTRYCZNA, WODNA, GAZOWA
- Okna PCV
- Otoczenie bloki
- Plac zabaw Tak
- Stan lokalu do remontu
- Technologia budowlana wielka płyta
Lokalizacja
- Adres małopolskie, chrzanowski, Chrzanów
Opis nieruchomości
- MIESZKANIE ZAREZERWOWANE -
Szukasz mieszkania dla swojej rodziny w centrum miasta, ale z dala od miejskiego zgiełku? Zależy Ci na funkcjonalnym układzie i dobrej lokalizacji? Mamy coś idealnego.
Biuro Plutecki Nieruchomości z przyjemnością prezentuje 3-pokojowe mieszkanie z balkonem, położone na drugim piętrze niskiego bloku przy ul. Mieszka I w Chrzanowie – na spokojnym i dobrze zorganizowanym Osiedlu Północ. To doskonała propozycja zarówno dla rodzin, jak i inwestorów szukających mieszkania pod wynajem.
O mieszkaniu:
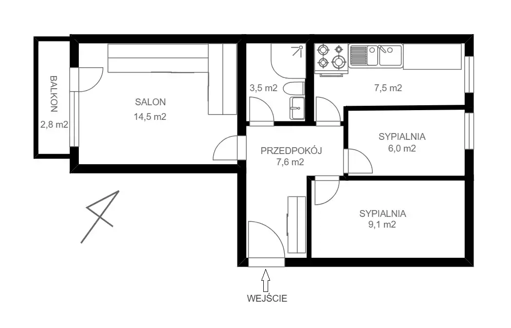
Mieszkanie ma powierzchnię 48,25 m² i znajduje się na 2. piętrze 4-piętrowego bloku po termomodernizacji. Układ mieszkania jest przemyślany i funkcjonalny:
- salon z wyjściem na balkon
- dwie sypialnie
- oddzielna kuchnia z oknem
- łazienka po remoncie
- przestronny przedpokój
- piwnica przynależna do lokalu
Ekspozycja na dwie strony świata: północno-wschodnią i południowo-zachodnią zapewnia dostęp naturalnego światła o różnych porach dnia. Mieszkanie wymaga remontu (z wyjątkiem łazienki), co daje możliwość aranżacji wnętrz zgodnie z własnym stylem i potrzebami.
Lokalizacja i otoczenie:
Nieruchomość położona jest w centrum Chrzanowa, na spokojnym i dobrze zagospodarowanym osiedlu, z dostępem do wielu udogodnień. Przy budynku znajdują się liczne miejsca postojowe dla mieszkańców, co zapewnia wygodę codziennego funkcjonowania.
To świetnie skomunikowana lokalizacja – zaledwie 150 metrów dzieli ją od przystanków autobusowych, które umożliwiają szybki dojazd do różnych części miasta i okolicznych miejscowości. Bliskość zjazdu na autostradę A4 to dodatkowy atut – dzięki temu w krótkim czasie można dotrzeć do Krakowa lub Katowic.
W bezpośrednim sąsiedztwie dostępna jest pełna infrastruktura miejska: sklepy, szkoła, przedszkole, przychodnia, apteka, biblioteka, plac zabaw, boisko sportowe i stacja PKP. Na terenie Chrzanowa znajduje się także szpital, liczne galerie handlowe, basen miejski, restauracje, a także tereny rekreacyjne, takie jak Park Miejski, Zalew Chechło czy rozległe lasy i ścieżki rowerowe.
Dodatkowe informacje:
- mieszkanie wyposażone jest w domofon,
- czynsz administracyjny około 600 zł plus media według zużycia.