Mieszkanie na sprzedaż









Szczegóły ogłoszenia
- Symbol oferty CNG-MS-1958
- Typ oferty mieszkanie na sprzedaż
- Cena 150 000 zł
- Charakterystyka mieszkania 51.5 m2, 2 pokoje
- Budynek budynek wielorodzinny
- Rozkład mieszkania 1p piętro
- Media Ogrzewanie: C.O. GAZOWE; Woda: tak - miejska; Gaz: własna butla
- Czynsz Czynsz letni: 50 zł
- Dojazd asfalt
- Ilość sypialni 2
- Okna PCV
- Otoczenie las
- Stan lokalu dobry
Lokalizacja
- Adres wielkopolskie, czarnkowsko-trzcianecki, Czarnków (gw)
Opis nieruchomości
Chcesz sprawdzić swoją zdolność kredytową?
Skorzystaj z bezpłatnych usług Naszego eksperta kredytowego!
NA SPRZEDAŻ
Przestronne i jasne mieszkanie w Średnicy, gm. Czarnków!
2 odrębne pokoje !
Osobna, przestronna kuchnia!
Pow. całkowita mieszkania 51,5 m2
Niskie koszty utrzymania!
Zdjęcia wnętrza już wkrótce !!
Dla ludzi ceniących spokój i kontakt z naturą !
Idealne miejsce by odpocząć od zgiełku miasta.
Dodatkowo do mieszkania przynależą:
- piwnica o powierzchni 6 m2;
- pomieszczenie gospodarcze na podwórzu;
- garaż,
- działka ogrodowa !
Mieszkanie z ogromnym potencjałem, wyposażone w rolety zewnętrzne.
Nowa okna PCV i drzwi zewnętrzne!
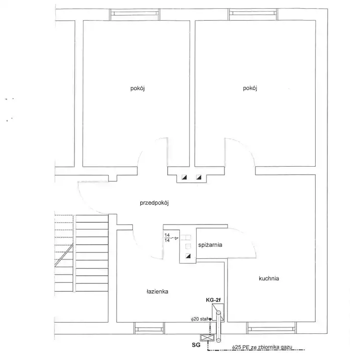
Rozkład pomieszczeń:
- pokoje o pow. 14 m2 , 15 m2;
- kuchnia ze spiżarnią o pow. 13,5 m2;
- łazienka o pow. 6 m2;
- przedpokój o pow. 3 m2;
Wysokość pomieszczeń to 2,83 m.
Media: woda z sieci, gaz ze zbiornika naziemnego, szambo zamknięte.
W sąsiedztwie stacja kolejowa w Biernatowie (dobre połączenie Piła -Trzcianka). Dogodny dojazd drogą asfaltową - droga wojewódzka 117.
Przybliżone odległości:
Piła - 44 km,
Trzcianka - 20 km,
Czarnków - 20 km.
ZAPRASZAMY NA PREZENTACJE!
Udzielamy bezpłatnej pomocy przy uzyskaniu kredytu!
Powyższy opis nie stanowi oferty w rozumieniu przepisów Kodeksu Cywilnego.