Lokal na wynajem










Szczegóły ogłoszenia
- Symbol oferty PRP-LW-75618
- Typ oferty lokal na wynajem
- Czynsz wynajmu 1 300 zł / miesiąc
- Charakterystyka mieszkania 43.5 m2
- Budynek biurowo-usługowy; rok budowy: 2003
- Rozkład mieszkania 1p piętro
- Media Ogrzewanie: olejowe
- Dojazd asfalt
- Instalacje ELEKTRYCZNA
- Kaucja dwumiesięczna
- Okna PCV
- Stan lokalu do adaptacji
- Umeblowanie brak
Lokalizacja
- Adres świętokrzyskie, Daleszyce
Opis nieruchomości
Lokal składa się z:
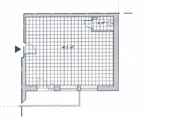
- pomieszczenia o powierzchni 41,5 m2, z wyjściem na balkon
- toalety o powierzchni 2 m2.
Budynek ogrodzony, zabezpieczony monitoringiem i alarmem. Do dyspozycji najemcy parking znajdujący się na posesji. Istnieje możliwość montażu własnej reklamy oraz wyposażenia i dostosowania lokalu do potrzeb najemcy.
Wysokość pomieszczeń ok. 2,6 m.
Lokal idealnie nadaje się pod działalność biurową/usługową/handlową.
Możliwość wynajęcia innych lokali o powierzchniach od ok. 22-64 m2, zlokalizowanych na różnych kondygnacjach w tym samym budynku.
Koszt najmu: 1 056,91 PLN netto (1300 PLN brutto) + media - woda, prąd, ogrzewanie (woda i ogrzewanie stosownie do zajmowanej powierzchni w przeliczeniu na m2; prąd według zużycia - odrębny podlicznik).
Kaucja dwumiesięczna.
Dla lokalu nie sporządzono świadectwa charakterystyki energetycznej.
Dane kontaktowe do agenta: Agata Grela, tel: 692-929-191, E-mail: ag@properco.pl
For service in English call Agata Grela, tel: 692-929-191, E-mail: ag@properco.pl
-------------
For rent: a premises with an area of 43.5 m², located on the first floor of a commercial and service building in the center of Daleszyce. Entrance to the unit through a shared staircase. The building has two entrances: from the front and from the yard.
The premises consist of:
-
a room with an area of 41.5 m², with access to a balcony
-
a toilet with an area of 2 m²
The building is fenced, equipped with monitoring and an alarm system. A parking lot located on the property is available for tenants. It is possible to install your own signage and to equip and adapt the unit to the tenant’s needs.
Room height approx. 2.6 m.
The premises are ideal for office or retail activities.
Possibility to rent other units with areas ranging from approx. 22–64 m², located on various floors in the same building.
Rental cost: 1,056.91 PLN net (1,300 PLN gross) + utilities – water, electricity, heating (water and heating costs calculated proportionally to the occupied area per m²; electricity according to individual sub-meter).
Two-month deposit.
No energy performance certificate has been issued for the premises.
Contact details: Agata Grela, tel: 692-929-191, E-mail: ag@properco.pl