Mieszkanie na sprzedaż






















Szczegóły ogłoszenia
- Symbol oferty GRS-MS-3021
- Typ oferty mieszkanie na sprzedaż
- Cena 270 000 zł
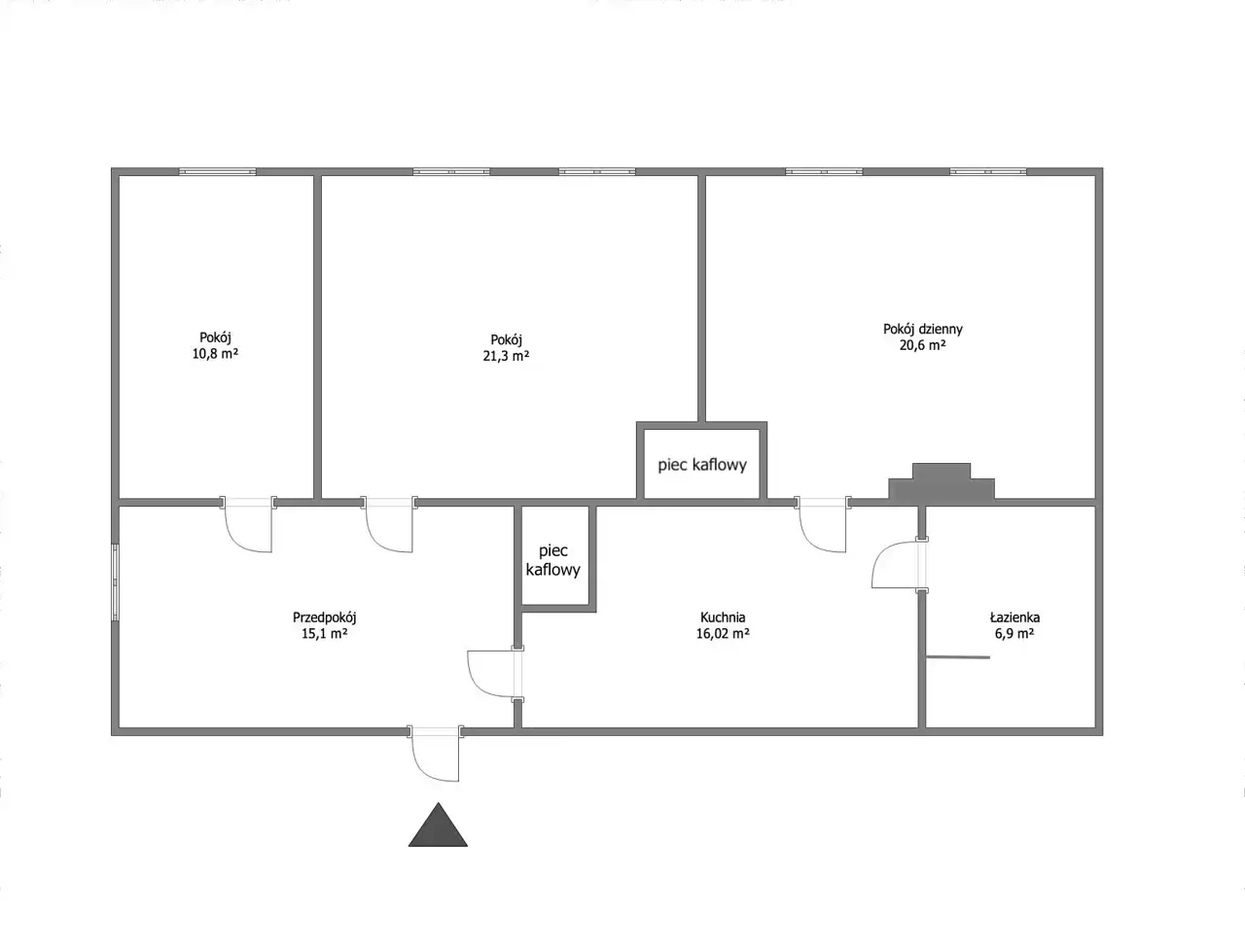
- Charakterystyka mieszkania 103.2 m2, 3 pokoje
- Budynek budynek wielorodzinny
- Rozkład mieszkania 1p piętro
- Media Ogrzewanie: piec kaflowy
- Dojazd asfalt
- Garaż garaż pod budynkiem
- Okna PCV
- Otoczenie działki zabudowane
- Stan lokalu do wprowadzenia
- Umeblowanie umeblowane
Lokalizacja
- Adres pomorskie, Damnica
Opis nieruchomości
Komfortowe mieszkanie 3-pokojowe o powierzchni całkowitej 103,20 m2 wraz z działkami o łącznej powierzchni 437 m2, piwnicą oraz dwoma garażami położone w Damnicy przy ulicy Lipowej!
Oferujemy na sprzedaż bardzo ustawne mieszkanie o powierzchni użytkowej 90,72 m2, położone w atrakcyjnym miejscu w miejscowości Damnica. Lokal mieszkalny znajduje się na 1 piętrze budynku wielorodzinnego. Do mieszkania przynależy piwnica o powierzchni 12,48 m2 oraz strych. W sprzedaży są również dwie ogrodzone działki o łącznej powierzchni 437 m2, na której posadowione jest pomieszczenie gospodarcze, drewutnia, 2 garaże a także altanka. Przy budynku znajdują się liczne, ogólnodostępne miejsca parkingowe.
Przestrzeń i funkcjonalność
- Ponad 90 m² powierzchni użytkowej daje ogromne możliwości aranżacyjne – idealne dla rodzin, osób pracujących zdalnie lub miłośników przestrzeni.
- Układ mieszkania pozwala na wygodne wydzielenie stref: dziennej, prywatnej oraz użytkowej (np. gabinetu, pokoju hobby czy domowego biura).
- Duże pomieszczenia zapewniają swobodę i komfort życia, jakiego nie daje większość mieszkań w mieście.
Mieszkanie to powierzchnia użytkowa 90,72 m2, na którą składa się:
- przedpokój
- łazienka z WC
- kuchnia
- sypialnia
- pokój dzienny
- pokój.
Nieruchomość pozwala nabywcy na nieograniczone możliwości aranżacyjne. Przestronne wnętrza stanowią idealną płaszczyznę do wyrażenia swojej kreatywności i stworzenia wymarzonego domu. To mieszkanie to idealna inwestycja dla tych, którzy chcą stworzyć swoje własne miejsce w spokojnej miejscowości.
Własna działka 437 m² – Twoja prywatna strefa relaksu
- Na terenie działki znajduje się altanka, idealna na letnie spotkania, grill czy poranną kawę wśród zieleni.
- Garaże i pomieszczenie gospodarcze to dodatkowa przestrzeń, którą możesz wykorzystać do przechowywania narzędzi, rowerów, sprzętu sportowego lub jako mały warsztat.
- Możliwość własnej aranżacji ogrodu – od grządek warzywnych po zielony zakątek z miejscem na hamak lub mini plac zabaw.
Komfort życia w spokojnej okolicy
To miejsce, które łączy spokój i bliskość natury – okolica jest zielona, w otoczeniu lasów i terenów typowo wiejskich, jednocześnie z dobrym dostępem do usług, komunikacji i nieco większych ośrodków miejskich.
Świetna lokalizacja
Jeśli szukasz miejsca z dala od miejskiego zgiełku, ale nadal z dostępem do podstawowej infrastruktury – Damnica spełnia te warunki. Punkty usługowo-handlowe, opieka zdrowotna, edukacja – wszystkie te elementy są dostępne w okolicy, co znacząco podnosi komfort życia. Bliskość zabytkowego pałacu, parku oraz zielonych terenów sprawia, że mieszkanie może być miejscem nie tylko do życia, ale i relaksu. Lokalizacja przy przystanku kolejowym, rozwijająca się infrastruktura – to może oznaczać wzrost wartości i większe możliwości w przyszłości.
Dodatkowe informacje:
- stan prawny: pełna własność, brak obciążeń w KW,
- mieszkanie narożne,
- mieszkanie bezczynszowe,
- ogrzewanie: piece kaflowe lub ogrzewanie elektryczne,
- bojler elektryczny na ciepłą wodę,
- piwnica o powierzchni 12,48 m2,
- okna PCV,
- dostępny strych,
- działki o pow. 437 m2,
- w cenie 2 garaże,
- ogólnodostępne miejsca parkingowe,
- instalacja elektryczna miedziana,
- budynek jest częściowo ocieplony.
Cena nieruchomości: 270 000 PLN
Strona Kupująca pokrywa wynagrodzenie prowizyjne dla biura.
Więcej informacji uzyskasz kontaktując się z nami:
799 799 397 - Dominika Szramiak (opiekun oferty)
728 111 007 - Przemysław Pryzwan
728 202 030 - Marta Patyna
503 901 101 - Adrianna Iwanicka
669 647 067 - Karolina Jakuczun
799 077 000 - Wiktoria Gołębiewska
799 333 633 - Dominika Wójcik
Więcej zdjęć znajdziecie Państwo na stronie: www.gryfnieruchomosci.pl
Serdecznie zapraszam Państwa na prezentację nieruchomości, z przyjemnością odpowiem na wszelkie pytania oraz udzielę dodatkowych informacji.
Zamierzasz kupić nieruchomość i skorzystać z finansowania banku? Pomożemy dokonać Ci dobrego wyboru najlepszej oferty spośród wielu banków. Nasz doradca dostosuje ofertę kredytu hipotecznego do Twoich potrzeb i oczekiwań oraz będzie do Twojej dyspozycji na każdym etapie procesu kredytowego.
Niniejsza oferta nie stanowi oferty w rozumieniu Kodeksu Cywilnego.