Mieszkanie na sprzedaż















Szczegóły ogłoszenia
- Symbol oferty BBN-MS-1749
- Typ oferty mieszkanie na sprzedaż
- Cena 536 480 zł
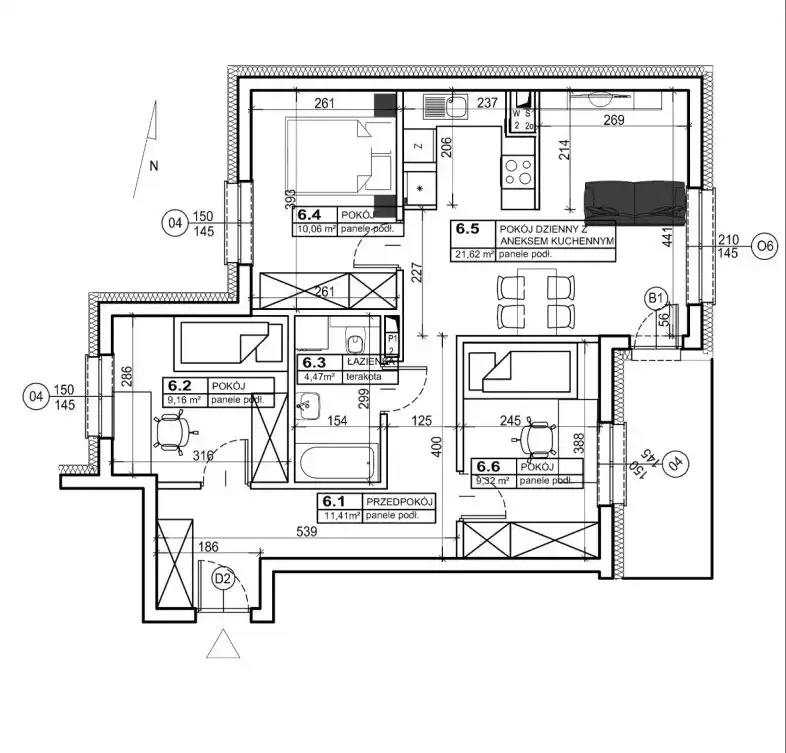
- Charakterystyka mieszkania 66.04 m2, 4 pokoje
- Budynek blok; rok budowy: 2024
- Rozkład mieszkania 1p piętro
- Media Ogrzewanie: C.O. Z SIECI MIEJSKIEJ; Woda: tak - miejska; Gaz: brak
- Balkon duży
- Ilość sypialni 3
- Instalacje nowe
- Okna PCV
- Otoczenie osiedle
- Plac zabaw Tak
- Stan lokalu deweloperski
- Technologia budowlana nowa cegła
- Winda Tak
Lokalizacja
- Adres warmińsko-mazurskie, Dobre Miasto, Dobre Miasto
Opis nieruchomości
OFERTA BEZ PROWIZJI.
Więcej informacje pod numerem +48 695 129 205.
Na sprzedaż 4 pokojowe mieszkanie o powierzchni 66,04 m2 położone na 1 Piętrze przy ulicy Placu 1 Sierpnia w Dobrym Mieście.
Lokal znajduje się w stanie deweloperskim i składa się z:
- Pokoju Dziennego z Aneksem Kuchennym 21,62 m2
- 3 Sypialni 10,06 m2, 9,16 m2, 9,32 m2
- Łazienki z WC 4,47 m2
- Przedpokoju 11,47 m2
- Balkonu 6,25 m2
- Komórki Lokatorskiej 4,90 m2
Ogrzewanie i ciepła woda z sieci miejskiej. Okna PCV, drzwi wejściowe antywłamaniowe.
Mieszkanie słoneczne (okna od strony Południowej i Zachodniej), narożne, ciepłe, rozkładowe, idealnie sprawdzi się jako inwestycja pod wynajem, jak i komfortowe mieszkanie dla rodziny. Budynek wybudowany w 2024 r. (wybudowany w bloczków Silka Tempo) posiadający windę, w pełni dostosowany dla osób niepełnosprawnych, wyposażony w panele fotowoltaiczne co w znacznym stopniu obniża koszty utrzymania budynku dla Wspólnoty. Cicha i spokojna lokalizacja z dala od głównych ulic miasta. W bliskim otoczeniu m.in. Park Przyjaciół Kultury, Przychodnia, Urzędy, Punkty Usługowe, Markety, Sklepy Osiedlowe. Duża ilość ogólnodostępnych miejsc parkingowych znajdujących się przy budynku oraz Plac Zabaw dla dzieci.
Ponad to dostępne są inne mieszkania w przedziale od 30 do 66 m2 (mieszkania 1, 2,3 i 4 pokojowe) w równie atrakcyjnych cenach.
Biuro nasze udziela bezpłatnej pomocy przy uzyskaniu kredytu hipotecznego.
Cena zł. 536 480 (8123 zł / m2).
Marek Barański MB NIERUCHOMOŚCI
ul. Żeromskiego 42/1 Olsztyn
Prezentowana oferta ma charakter informacyjny i nie stanowi oferty handlowej w rozumieniu art. 66 par. 1 Kodeksu Cywilnego.