Mieszkanie na sprzedaż
1 107 000 zł
123 m2


1 / 2
Szczegóły ogłoszenia
- Symbol oferty DFI-MS-1596
- Typ oferty mieszkanie na sprzedaż
- Cena 1 107 000 zł
- Charakterystyka mieszkania 123 m2, 2 pokoje
- Budynek kamienica; rok budowy: 1938
- Rozkład mieszkania 4p piętro
- Czynsz Czynsz letni: 740 zł
- Ilość sypialni 1
- Okna PCV
- Stan lokalu do generalnego remontu
Lokalizacja
- Adres pomorskie, Gdynia m., Gdynia
Opis nieruchomości
LOKALIZACJA:
BUDYNEK:
Nieruchomości znajdują się w pięciokondygnacyjnej kamienicy z 1938 roku. Wejście do budynku zabezpieczone domofonem.
NIERUCHOMOŚĆ:
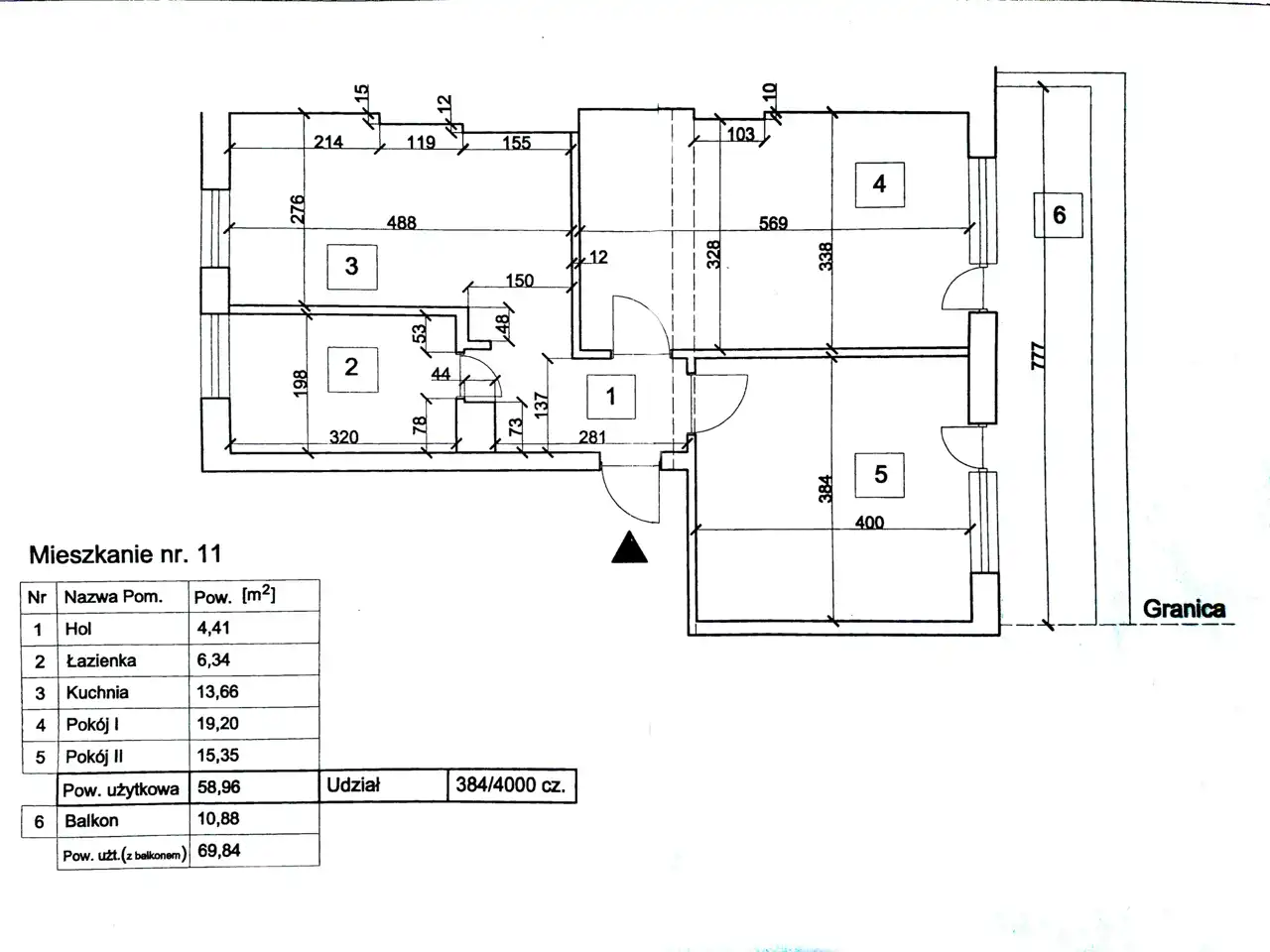
Oferta dotyczy udziałów w kamienicy z 1938 roku. Udziały składają na dwa samodzielne, ale niewyodrębnione lokale na 4 i 5 piętrze budynku.
Lokal na 4 piętrze o metrażu 53,12 m2 (w tym powierzchnia pomieszczenia przynależnego - piwnicy o metrażu 10,46 m2) o wysokości pomieszczeń 2,80 m.
Lokal na 5 piętrze o metrażu 69,84 m2 (w tym powierzchnia balkonu o metrażu 10,88 m2) o wysokości pomieszczeń 2,26 - 2,36 m.
Mieszkania są aktualnie wynajmowane. Lokale świetnie sprawdzą się jako przyszłościowa inwestycja w ścisłym centrum Gdyni.
OPŁATY:
Cena sprzedaży: 9 tyś zł/m2 (istnieje możliwość zakupu udziałów dotyczących jednego lub obu lokali)
Czynsz administracyjny: ok. 740 zł
Zapraszamy na prezentację.
SZYBKI KONTAKT: 608 502 333
Biuro Filar Nieruchomości ponadto OFERUJE:
Fachowość – indywidualne podejście.
Informacje – solidną wiedzę i kompetencje.
Lojalność – Klient jest dla Nas najważniejszy.
Atrakcyjność oferty – szeroki wybór ofert oraz brak prowizji.
Rzetelność – bezpieczne transakcje ubezpieczone polisą OC oraz opieka kancelarii prawnej.
Nota prawna
Opis oferty zawarty na stronie internetowej sporządzany jest na podstawie oględzin nieruchomości oraz informacji uzyskanych od właściciela, może podlegać aktualizacji i nie stanowi oferty określonej w art. 66 i następnych K.C.
Doskonała lokalizacja w ścisłym centrum handlowo-usługowym w Gdyni przy jednej z najruchliwszych i tętniących życiem ulic - ulicy Starowiejskiej, w otoczeniu sklepów, kawiarni, restauracji i innych placówek handlowo-usługowych, w miejscu gdzie ruch pieszy i samochodowy trwa nieprzerwanie przez cały dzień. Dodatkową zaletą jest bliskość dworca SKM i PKP - do tego miejsca każdy trafi bez problemu - na piechotę czy jakimkolwiek środkiem miejskiej komunikacji.
BUDYNEK:
Nieruchomości znajdują się w pięciokondygnacyjnej kamienicy z 1938 roku. Wejście do budynku zabezpieczone domofonem.
NIERUCHOMOŚĆ:
Oferta dotyczy udziałów w kamienicy z 1938 roku. Udziały składają na dwa samodzielne, ale niewyodrębnione lokale na 4 i 5 piętrze budynku.
Lokal na 4 piętrze o metrażu 53,12 m2 (w tym powierzchnia pomieszczenia przynależnego - piwnicy o metrażu 10,46 m2) o wysokości pomieszczeń 2,80 m.
Lokal na 5 piętrze o metrażu 69,84 m2 (w tym powierzchnia balkonu o metrażu 10,88 m2) o wysokości pomieszczeń 2,26 - 2,36 m.
Mieszkania są aktualnie wynajmowane. Lokale świetnie sprawdzą się jako przyszłościowa inwestycja w ścisłym centrum Gdyni.
OPŁATY:
Cena sprzedaży: 9 tyś zł/m2 (istnieje możliwość zakupu udziałów dotyczących jednego lub obu lokali)
Czynsz administracyjny: ok. 740 zł
Zapraszamy na prezentację.
SZYBKI KONTAKT: 608 502 333
Biuro Filar Nieruchomości ponadto OFERUJE:
Fachowość – indywidualne podejście.
Informacje – solidną wiedzę i kompetencje.
Lojalność – Klient jest dla Nas najważniejszy.
Atrakcyjność oferty – szeroki wybór ofert oraz brak prowizji.
Rzetelność – bezpieczne transakcje ubezpieczone polisą OC oraz opieka kancelarii prawnej.
Nota prawna
Opis oferty zawarty na stronie internetowej sporządzany jest na podstawie oględzin nieruchomości oraz informacji uzyskanych od właściciela, może podlegać aktualizacji i nie stanowi oferty określonej w art. 66 i następnych K.C.
Nota prawna
Opis oferty zawarty na stronie internetowej sporządzany jest na podstawie oględzin nieruchomości oraz informacji uzyskanych od właściciela, może podlegać aktualizacji i nie stanowi oferty określonej w art. 66 i następnych K.C.
Kalkulator kredytowy
Formularz kontaktowy