Mieszkanie na sprzedaż



Szczegóły ogłoszenia
- Symbol oferty 4KAT-MS-22620
- Typ oferty mieszkanie na sprzedaż
- Cena 459 000 zł
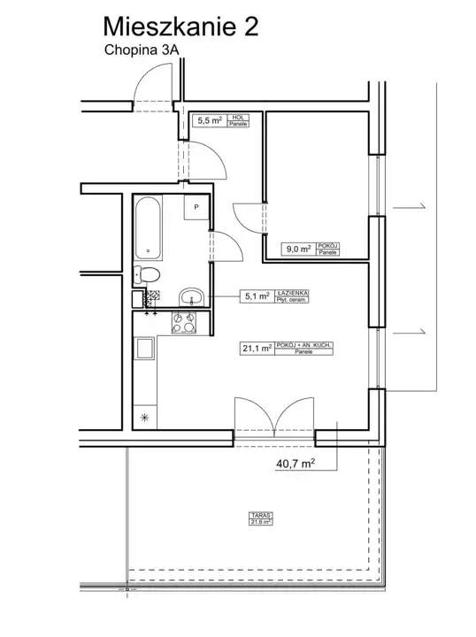
- Charakterystyka mieszkania 40.7 m2, 1 pokój
- Budynek blok
- Rozkład mieszkania parter piętro
- Garaż w budynku
- Instalacje nowe
- Okna PCV
- Stan lokalu deweloperski
- Taras taras duży
- Technologia budowlana żelbeton
- Winda Tak
Lokalizacja
- Adres zachodniopomorskie, goleniowski, Goleniów
Opis nieruchomości
Na sprzedaż: Nowa, duża kawalerka 40,7 m² – Goleniów, ul. Chopina
Etap 3 nowoczesnej inwestycji | Balkon | Winda | Garaż podziemny
Szukasz komfortowego, przestronnego mieszkania w spokojnej okolicy, a jednocześnie blisko centrum i komunikacji? To idealna propozycja dla Ciebie!
Opis mieszkania:
Mieszkanie o powierzchni 40,7m², w stanie deweloperskim – idealne do aranżacji według własnych potrzeb i gustu.
W skład mieszkania wchodzi:
- Pokój dzienny z aneksem kuchennym (21,1 m²) z wyjściem na duży taras – przestronna i jasna część dzienna,
- Łazienka (5,1 m²),
- Hol (5,5 m²).
Atuty inwestycji:
- Nowoczesna, niska zabudowa – kameralna atmosfera,
- Winda w budynku – wygoda na co dzień,
- Podziemne garaże oraz zewnętrzne miejsca postojowe,
- Plac zabaw dla dzieci na terenie osiedla,
- Zielona okolica – w sąsiedztwie park, rzeka i ścieżki rowerowe,
- Bardzo dobra lokalizacja – tylko kilka minut do dworca kolejowego i autobusowego, idealne połączenie z Szczecinem i regionem.
Dlaczego warto?
To doskonała lokalizacja zarówno do zamieszkania, jak i pod wynajem. Ciche otoczenie, dostęp do natury, a jednocześnie bliskość komunikacji i centrum miasta tworzą unikalną kombinację komfortu i wygody.
Cena: 459 000 zł
Kontakt: Paula Symonowicz t. 733-209-732
Budynek wybudowany został w sposób tradycyjny.
Ściany zewnętrzne: murowane, z bloków silikatowych 24 cm
- Stolarka okienna - profil PCV, 5-komorowa, zestaw 3-szybowy;
- Drzwi wejściowe do mieszkań typu antywłamaniowego PORTA;
- Winda cichobieżna z poziomu garaży;
- Instalacja internetowa wewnętrzna;
- Instalacja centralnego ogrzewania: miejskie, grzejniki panelowe z głowicami termostatycznymi.