Działka na sprzedaż
1 033 980 zł
2 721 m2








1 / 8
Szczegóły ogłoszenia
- Symbol oferty NKO-GS-3340
- Typ oferty działka na sprzedaż
- Cena 1 033 980 zł
- Charakterystyka mieszkania 2721 m2
- Media Woda: w ulicy; Kanalizacja: w ulicy; Prąd: w ulicy; Gaz: w ulicy
- Dojazd asfalt
- Działka Niezagospodarowana, płaska, prostokąt
- Otoczenie zabudowa jednorodzinna
Lokalizacja
- Adres podlaskie, białostocki, Grabówka (gw)
Opis nieruchomości
Poszukujesz działki pod budowę domów wolnostojących, bliźniaków lub szeregówek? Dobrze trafiłeś ta oferta spełni Twoje oczekiwania.
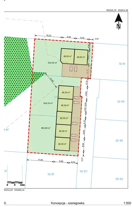
Do sprzedaży działka inwestycyjna pod zabudowę mieszkaniową jednorodzinną. Składająca się z trzech działek o odrębnych numerach geodezyjnych o całkowitej powierzchni 2721 m kw. położona w Zaściankach gm. Supraśl przy ul. Rybackiej.
Teren objęty Miejscowym Planem Zagospodarowania Przestrzennego o symbolu 6,5 MN.
Założenia miejscowego planu dla działek:
Na terenach oznaczonych symbolem 6.1 MN ; 6.2 MN, 6.3 MN, 6.4 MN, 6.5 MN ustala się:
* Przeznaczenie terenów:
- tereny zabudowy mieszkaniowej jednorodzinnej z dopuszczeniem usług wbudowanych, wraz z zielenią urządzoną, obiektami i urządzeniami towarzyszącymi;
* Warunki i zasady kształtowania zabudowy i zagospodarowania terenów:
- dopuszcza się realizację garaży i budynków gospodarczych wiat, altan itp. oraz lokalizację obiektów i urządzeń budowlanych towarzyszących,
- istniejące zagospodarowanie terenu, budynki i budowle których funkcja nie jest zgodna z docelowym przeznaczeniem terenu określonym w planie, pozostawia się do dalszego użytkowania z możliwością przeprowadzenia remontów i przebudowy;
* Parametry i wskaźniki kształtowania zabudowy dla budynków nowo wznoszonych, oraz zagospodarowania terenu:
- powierzchnia zabudowy budynkami i budowlami działki lub terenu objętego inwestycją do 25 % powierzchni na terenie oznaczonym symbolem 6.5 MN
- powierzchnia biologicznie czynna nie niej niż 50 % powierzchni działki na terenach oznaczonych symbolem 6.5 MN,
- wysokość zabudowy do 10 m,
- geometria dachu-dachy o kącie nachylenia połaci dachowych do 45°,
- wysokość budynków gospodarczych, wiat i altan mierzona przy głównym wejściu, od poziomu terenu do góry okapu lub attyki - do 4.5 m,
Możliwość wybudowania domów w zabudowie wolnostojącej, bliźniaczej lub szeregowej !
W ul. Rybackiej przeprowadzona jest kanalizacja, wodociąg i linia ee. W odległości około 200m ( od strony wschodniej ul. Rybackiej) znajduje się nitka gazociągu.
Dobra lokalizacja, dojazd do parceli drogą asfaltową, ostatnie 70m droga gruntowa. W odległości 1,5 km znajduje się Plaża Miejska Dojlidy, przystanek autobusowy w odległości około 1km w ul. Dojnowskiej. W odległości około 1,5 km znajdują się delikatesy spożywcze przy ul. Poziomej.
Dobra oferta dla osób chcących zamieszkać blisko terenów rekreacyjnych Zalewu Dojlidy! Zaletą oferty jest opracowany MPZP dla tego terenu- kupujesz i budujesz! Ne czekaj zadzwoń, ta oferta może być Twoja!
Podany opis ma charakter wyłącznie informacyjny i nie stanowi oferty w rozumieniu art. 66 Kodeksu Cywilnego oraz innych właściwych przepisów prawnych. Wszelkie dane dotyczące nieruchomości uzyskano na podstawie oświadczeń sprzedających. Zalecamy osobiste zapoznanie się ze stanem faktycznym nieruchomości przed jej nabyciem.
Do sprzedaży działka inwestycyjna pod zabudowę mieszkaniową jednorodzinną. Składająca się z trzech działek o odrębnych numerach geodezyjnych o całkowitej powierzchni 2721 m kw. położona w Zaściankach gm. Supraśl przy ul. Rybackiej.
Teren objęty Miejscowym Planem Zagospodarowania Przestrzennego o symbolu 6,5 MN.
Założenia miejscowego planu dla działek:
Na terenach oznaczonych symbolem 6.1 MN ; 6.2 MN, 6.3 MN, 6.4 MN, 6.5 MN ustala się:
* Przeznaczenie terenów:
- tereny zabudowy mieszkaniowej jednorodzinnej z dopuszczeniem usług wbudowanych, wraz z zielenią urządzoną, obiektami i urządzeniami towarzyszącymi;
* Warunki i zasady kształtowania zabudowy i zagospodarowania terenów:
- dopuszcza się realizację garaży i budynków gospodarczych wiat, altan itp. oraz lokalizację obiektów i urządzeń budowlanych towarzyszących,
- istniejące zagospodarowanie terenu, budynki i budowle których funkcja nie jest zgodna z docelowym przeznaczeniem terenu określonym w planie, pozostawia się do dalszego użytkowania z możliwością przeprowadzenia remontów i przebudowy;
* Parametry i wskaźniki kształtowania zabudowy dla budynków nowo wznoszonych, oraz zagospodarowania terenu:
- powierzchnia zabudowy budynkami i budowlami działki lub terenu objętego inwestycją do 25 % powierzchni na terenie oznaczonym symbolem 6.5 MN
- powierzchnia biologicznie czynna nie niej niż 50 % powierzchni działki na terenach oznaczonych symbolem 6.5 MN,
- wysokość zabudowy do 10 m,
- geometria dachu-dachy o kącie nachylenia połaci dachowych do 45°,
- wysokość budynków gospodarczych, wiat i altan mierzona przy głównym wejściu, od poziomu terenu do góry okapu lub attyki - do 4.5 m,
Możliwość wybudowania domów w zabudowie wolnostojącej, bliźniaczej lub szeregowej !
W ul. Rybackiej przeprowadzona jest kanalizacja, wodociąg i linia ee. W odległości około 200m ( od strony wschodniej ul. Rybackiej) znajduje się nitka gazociągu.
Dobra lokalizacja, dojazd do parceli drogą asfaltową, ostatnie 70m droga gruntowa. W odległości 1,5 km znajduje się Plaża Miejska Dojlidy, przystanek autobusowy w odległości około 1km w ul. Dojnowskiej. W odległości około 1,5 km znajdują się delikatesy spożywcze przy ul. Poziomej.
Dobra oferta dla osób chcących zamieszkać blisko terenów rekreacyjnych Zalewu Dojlidy! Zaletą oferty jest opracowany MPZP dla tego terenu- kupujesz i budujesz! Ne czekaj zadzwoń, ta oferta może być Twoja!
Podany opis ma charakter wyłącznie informacyjny i nie stanowi oferty w rozumieniu art. 66 Kodeksu Cywilnego oraz innych właściwych przepisów prawnych. Wszelkie dane dotyczące nieruchomości uzyskano na podstawie oświadczeń sprzedających. Zalecamy osobiste zapoznanie się ze stanem faktycznym nieruchomości przed jej nabyciem.
Nota prawna
Opis oferty zawarty na stronie internetowej sporządzany jest na podstawie oględzin nieruchomości oraz informacji uzyskanych od właściciela, może podlegać aktualizacji i nie stanowi oferty określonej w art. 66 i następnych K.C.
Kalkulator kredytowy
Formularz kontaktowy