Obiekt na sprzedaż
5 000 000 zł
2 450 m2


















































1 / 50
Szczegóły ogłoszenia
- Symbol oferty BS3-BS-309281
- Typ oferty obiekt na sprzedaż
- Cena 5 000 000 zł
- Charakterystyka mieszkania 2450 m2
- Budynek rok budowy: 1978
- Media Prąd: jest
- Miejsce parkingowe Tak
- Dojazd droga gruntowa
- Otoczenie jezioro i las
Lokalizacja
- Adres małopolskie, Gródek nad Dunajcem, Bartkowa
Opis nieruchomości
SZUKASZ MIEJSCA POD HOTEL / SPA/ DOM SENIORA ?
WŁAŚNIE GO ZNALAZŁEŚ
WŁAŚNIE GO ZNALAZŁEŚ
Oferujemy na sprzedaż nieruchomość leżącą w Znamirowicach nad jeziorem rożnowskim woj. małopolskie.
Nieruchomość składa się z zabudowanej działki na której zlokalizowany jest czterokondygnacyjny obiekt o powierzchni netto 2450 m2 oraz dwóch sąsiednich działek o łącznej powierzchni terenu 4976 m2.
Nieruchomość położona jest w miejscowości Znamirowice nad jeziorem rożnowskim, na półwyspie Patelnia w bezpośrednim sąsiedztwie brzegu jeziora z widokiem na małpią wyspę.
Na działce nr 40/61 zlokalizowany jest budynek hotelu który był realizowany w latach 70 - tych lecz nigdy nie został dokończony . Nieruchomość nie posiada odbiorów technicznych .
Teren inwestycji jest miejscem położonym w wyjątkowo malowniczym otoczeniu, o wybitnych walorach krajobrazowych.
Aktualnie jest to teren niezagospodarowany, pozbawiony infrastruktury turystycznej i zaniedbany lecz z bardzo dużym potencjałem .
Od strony wschodniej teren opada stromą skarpą w kierunku jeziora. zakończony pomostem .
Strona północno - zachodnia rozciąga się łagodnie wzdłuż brzegu, tworząc półkolistą, szeroką plażę.
Jezioro wzdłuż tego brzegu jest płytkie na sporym obszarze, tworząc znakomite warunki dla plażowania, kąpieli i sportów wodnych.
Bryła budynku jest dobrze widoczna od strony jeziora zarówno od strony wschodniej jak i północno - zachodniej znakomicie wtapiając się w krajobraz.
Do hotelu nie ma obecnie w całości drogi dojazdowej oraz wymaga kompleksowej przebudowy aby zapewnić odpowiedni standard dostępu , natomiast wzdłuż działek przeznaczonych na inwestycję wydzielony został pas terenu drogi koniecznej o szerokości około 3-4 metrów.
Opis istniejącej zabudowy.
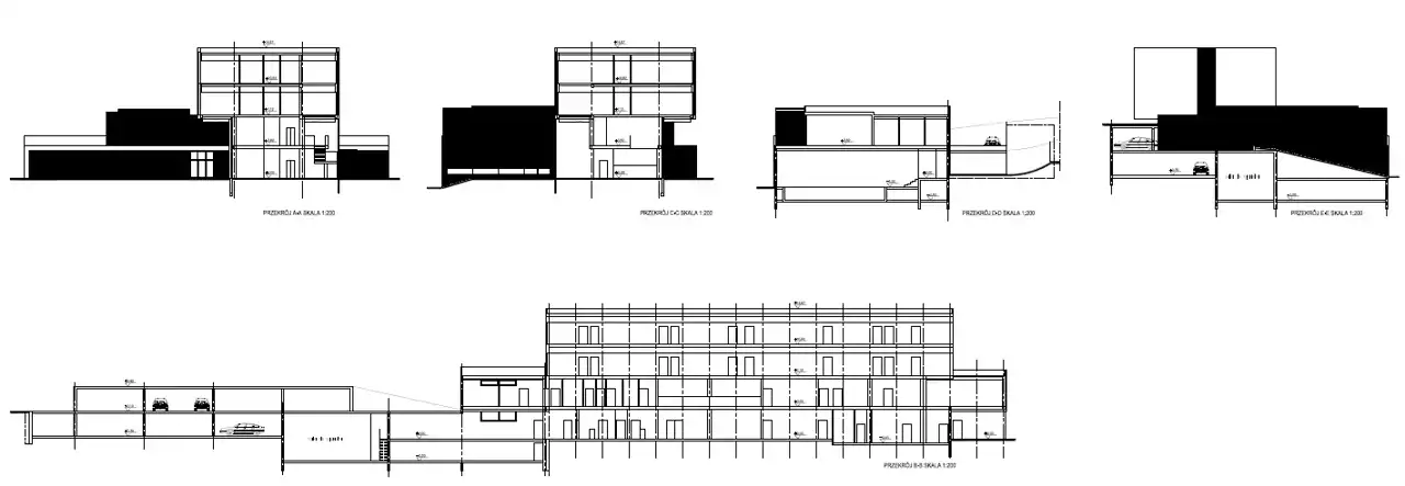
Istniejący obiekt jest budynkiem czterokondygnacyjnym, niepodpiwniczonym, zrealizowanym w latach 70-tych ubiegłego wieku w stylu modernistycznym, w konstrukcji szkieletowej żelbetowej wylewanej na budowie, z murowanymi ścianami zewnętrznymi.
Stropodachy płaskie, wentylowane, są kryte papą na płytkach korytkowych.
Bryła hotelu jest dobrze widoczna od strony jeziora, zarówno od strony wschodniej, jak i północno-zachodniej, znakomicie wtapiając się w krajobraz.
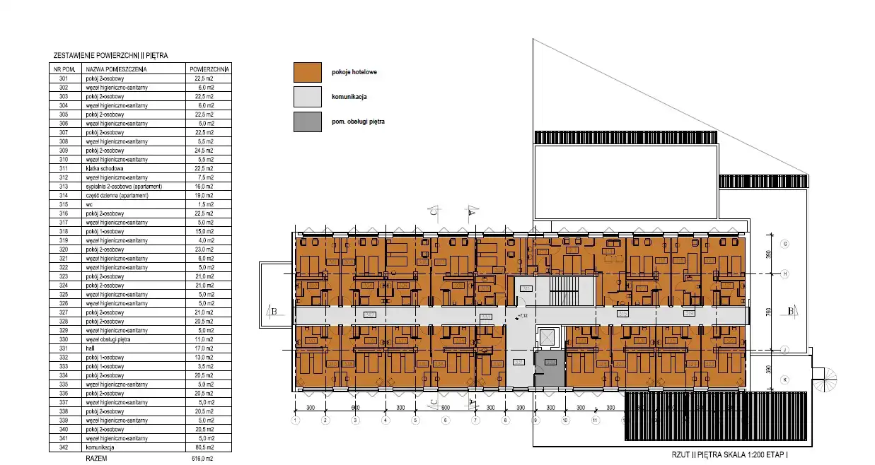
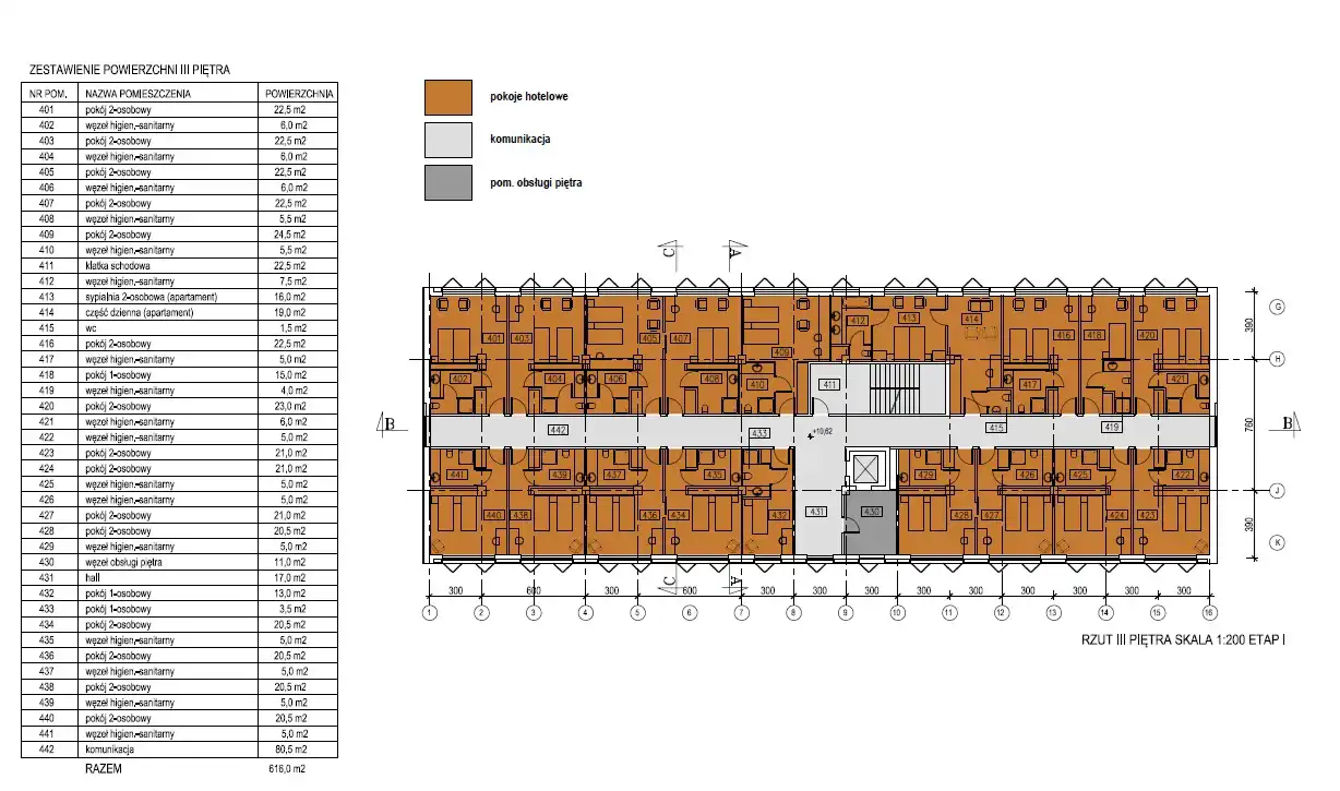
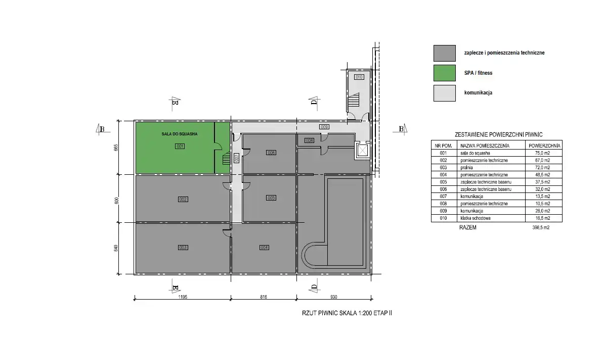
Podstawowe dane liczbowe dotyczące istniejącego obiektu.
• powierzchnia zabudowy 1 230 m2
• powierzchnia netto 2 450 m2
• kubatura 10 272 m3
• powierzchnia brutto kondygnacji nadziemnych (z loggiami) 2 965 m2
• wysokość 14,89 m
Uwarunkowania wynikające z miejscowego planu zagospodarowania terenu oraz koncepcji rozbudowy .
W planie działki wchodzące w skład terenu inwestycji oznaczone są symbolem UT/o
UT/o - UT Tereny usług związanych z funkcją turystyki ,rekreacji i sportu.
Dodatkowe oznaczenie zasięgu : o-zagrożeń osuwiskowych ;
Wskaźnik intensywności zabudowy dla tych terenów wynosi 0,5.
Istniejący wskaźnik na terenie inwestycji wynosi 0,6 - przekracza wielkość przewidzianą dla tego terenu.
Nieruchomość ze względu na świetną lokalizacje może być również wyburzona i w to miejsce może powstać nowy budynek zgodny z zapisami planu miejscowego .
Powierzchnia terenu biologicznie czynnego – obowiązuje wskaźnik co najmniej 0,5 dla terenu inwestycji
Plan nakazuje zapewnić na terenie inwestycji odpowiednią ilość miejsc parkingowych –
3 miejsca parkingowe /100 m2 powierzchni użytkowej oraz dodatkowo 4 miejsca parkingowe /10 zatrudnionych.
Media:
- Brak kanalizacji
- Prąd w pobliżu
- woda
Cena nieruchomości 5 mln zł brutto - Transakcja bez Vat-u.
Pozostałe szczegóły oferty będą przedstawione bezpośrednim klientom po podpisaniu Umowy Pośrednictwa .
Kontakt :
Rafał TEL. 507 894 500
UMOWA NA WYŁĄCZNOŚĆ
Nota prawna
Opis oferty zawarty na stronie internetowej sporządzany jest na podstawie oględzin nieruchomości oraz informacji uzyskanych od właściciela, może podlegać aktualizacji i nie stanowi oferty określonej w art. 66 i następnych K.C.
Kalkulator kredytowy
Formularz kontaktowy