Hala na wynajem










































Szczegóły ogłoszenia
- Symbol oferty BAJ-HW-6562
- Typ oferty hala na wynajem
- Czynsz wynajmu 76 924 zł / miesiąc
- Charakterystyka mieszkania 3076.97 m2
- Budynek rok budowy: 2015
- Media Ogrzewanie: C.O. GAZOWE
- Dojazd droga szutrowa
- Działka płaska
- Przeznaczenie hali magazynowy
Lokalizacja
- Adres kujawsko-pomorskie, Grudziądz (gw)
Opis nieruchomości
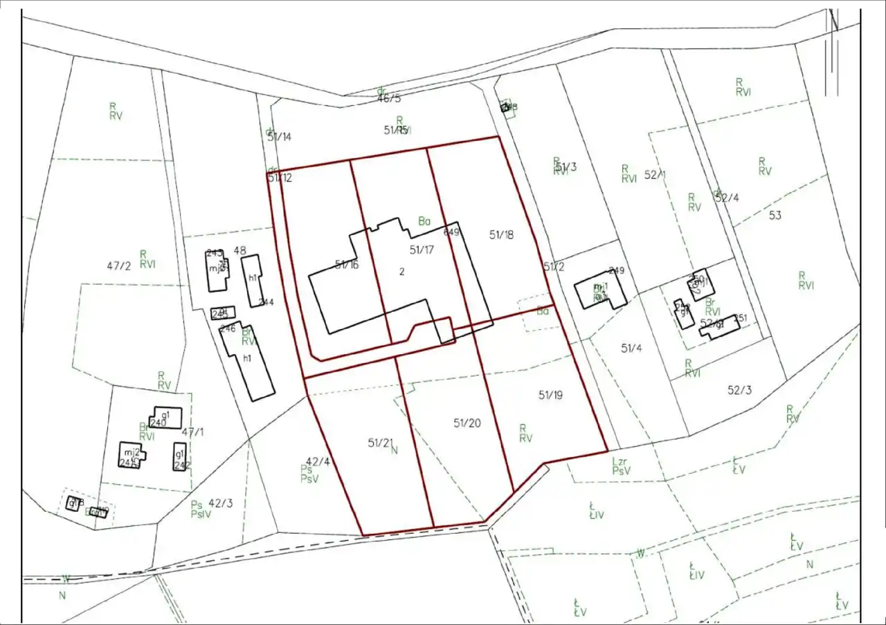
Biuro nieruchomości BAJ HOME oferuje Państwu na wynajem nieruchomość gruntową zbudowaną nowoczesnym budynkiem biurowo – magazynowo – produkcyjnym z zapleczem socjalno – sanitarnym o powierzchni użytkowej 3 076,97 m2. Nieruchomość gruntowa stanowi działki nr ew. 51/12, 51/14, 51/16, 51/17, 51/18, 51/19, 51/20, 51/21 o łącznej powierzchni 20 492 m2 oraz udział 66/100 w prawie własności dz. nr ew. 51/2 o pow. 1 101 m2, położonych w Białym Borze w odległości 2,3 km od granic Grudziądza.
Nieruchomość może zostać oddana do najmu od stycznia 2026r.
Koszt najmu nieruchomości jest określona na 25 zł/m2 netto.
Opis techniczny budynku
Nowoczesny i efektowny budynek został oddany do użytkowania w 2015 roku. Obiekt składa się z trzech segmentów: hali magazynowej wysokiego składowania, hali niskiej produkcyjnej oraz piętrowej części biurowo – socjalnej. Komunikację pomiędzy kondygnacjami części biurowo – socjalnej zapewnia klatka schodowa o konstrukcji żelbetowej z poręczami ze stali nierdzewnej i przestronnymi, efektownymi dla budynku oknami. Od strony magazynowej transport jest zapewniany poprzez zastosowanie 2 ramp najazdowych oraz 6 bram sterowanych pilotem. Aktualnie budynek znajduje się w stanie bardzo dobrym i nie wymaga inwestowania.
Charakterystyka rozwiązań konstrukcyjno – materiałowych obiektu:
Konstrukcja:
- część magazynowa i produkcyjna – stalowa, żelbetowa,
- część biurowo – socjalna – mieszana.
Ściany zewnętrzne:
- płyta warstwowa z wypełnieniem z wełny mineralnej,
- mur z bloczków „YTONG” ENERGO gr. 30cm, pokrycie tynkiem elewacyjnym,
- mur z bloczków SILKA gr. 24cm, ocieplenie - wełna min.,
- mur z bloczków „YTONG” gr. 30cm, pustka powietrzna,
Ściany wewnętrzne:
- płyta warstwowa z wypełnieniem z wełny mineralnej,
- mur z bloczków SILKA gr. 24 cm,
- mur z bloczków „YTONG” gr. 30 cm,
- mur z gazobetonu gr. 18 cm, - ściana g-k
- płyta gipsowo-kartonowa, gr. 1,25 cm,
- mur ogniowy pomiędzy częściami budynku.
Ściany systemowe:
- Ściany - ściana aluminium przeszklona - systemowa,
Ściany fundamentowe: - zewnętrzna żelbetowa 15 cm, 20 cm i 30 cm, styropian ekstrudowany, tynk na siatce, pokrycie masą asfaltowo-kauczukową IZOHAN DYSPERBIT, poniżej poziomu terenu folia kubełkowa zamiast tynku na siatce,
- ściana wewnętrzna żelbetowa 24cm.
Dach
a) hala magazynowa - membrana dachowa gr. 1,5 mm - wełna min. (płyta MONROCK PRO) – 15 cm - paraizolacja - blacha trapezowa T92 gr.0,88mm 9cm
b) hala produkcyjna - membrana dachowa gr. 1,5 mm - wełna min. (płyta MONROCK PRO) - 20cm - paraizolacja - blacha trapezowa T92 gr.0,88mm 9cm
Stropy:
a) część biurowo – socjalna: - płyta stropowa gr. 22cm
b) hala magazynowa - płyta stropowa gr. 22cm
Stolarka:
- okna: wysokiej jakości profil aluminium w kolorze antracyt.
- witryny zewnętrzne: aluminiowe,
- ścianki z profili aluminiowych z drzwiami,
- drzwi wewnętrzne: płycinowe, aluminiowe, aluminiowe przeszklone,
- brama wewnętrzna segmentowa,
- drzwi zewnętrzne: aluminiowe, aluminiowe przeszklone,
- brama zewnętrzna automatyczna, ocieplona, segmentowa,
Tynki:
- tynk kategorii 3 cementowo-wapienny na ścianach murowanych,
- tynk żywiczny na ścianach fundamentowych,
- tynk zewnętrzny elewacyjny systemowy.
Malowanie: - ściany wewnętrzne murowane, sufity - farba emulsyjna biała, - konstrukcja stalowa zabezpieczona antykorozyjnie. - w pomieszczeniach mokrych — część socjalno-higieniczna – ściany obłożone tworzywem i częściowo glazurą. Sufity: podwieszane w części socjalno - biurowej systemowe.
Posadzki:
a) cześć socjalno-biurowa: - płytki ceramiczne typu gres, tworzywo sztuczne - pomieszczenia mokre, panele, wykładzina dywanowa,
b) hala magazynowa / hala produkcyjna: - beton utwardzany powierzchniowo.
Elewacje: - zadaszenia konstrukcji stalowej nad drzwiami wejściowymi, pokrycie ze szkła hartowanego, - żaluzje zewnętrzne.
Instalacje:
- instalacja grzewcza – zasilana z kotłowni gazowej, na halach nagrzewnice,
- instalacja wody ciepłej i zimnej,
- instalacja kanalizacji deszczowej,
- instalacja kanalizacji sanitarnej ,
- instalacje elektryczne,
- instalacja hydrantowa,
- instalacja telefoniczna,
- instalacja gazowa,
- w części produkcyjnej instalacja sprężonego powietrza,
Wentylacja:
- Centrala wentylacyjna z odzyskiem ciepła Flowair OxeN z dogrzewem powietrza,
- Wentylacja zaplecza socjalno-biurowego grawitacyjna (w pomieszczeniach wc i socjalnych wspomagana klimatyzacją firmy LG sterowaną pilotami). W pomieszczeniach szatni i umywalni nawiewno-wywiewna. - Wentylacja hali produkcyjnej - mechaniczna nawiewno-wywiewna Volcano Euroheat. - Wentylacja hali magazynowej - grawitacyjna.
System alarmowy z czujkami ruchu i kamerami z możliwością powiadamiania do firmy ochroniarskiej i na telefon.
System ochrony przeciwpożarowej z centralą POLON 4100.
Inne media: szambo, prąd, woda gminna, linia telefoniczna.
Parametry powierzchniowe budynku: Powierzchnia użytkowa: 3 076,97 m2 Powierzchnia najmu: 3 009,63 m2
Budynek ogrzewany jest poprzez zastosowanie systemu instalacji gazowej grzewczej z dwoma nowoczesnymi piecami Vitocrossal 200 firmy Viessmann i kaloryferów oraz nagrzewnic. Jakość wody zapewnia stacja uzdatniania Aquahome 20-N firmy Viessmann.
Moc maksymalna każdego z pieców wynosi 186 kW.
Przeznaczenie nieruchomości w MPZP.
Zgodnie z zapisami w studium uwarunkowań i kierunków zagospodarowania przestrzennego gminy Grudziądz zmienionego Uchwałą Nr XV/107/2015 Rady Gminy Grudziądz z dnia 30 września 2015 r., zmienionego Uchwałą nr X/110/2019 Rady Gminy Grudziądz z dnia 29.05.2019 r., działki stanowiące przedmiot sprzedaży położone są na obszarze istniejącej i projektowanej zabudowy mieszkaniowo - usługowej.
Położenie
Nieruchomość jest położona w południowej części powiatu grudziądzkiego, na terenie o przewadze zabudowy mieszkaniowej, przemysłowej i magazynowej. Granica Grudziądza oddalona jest od obiektu o około 2,3 km. W promieniu około 700 m przebiega droga krajowa nr 55, a najbliższy wjazd na tą drogę oddalony jest o około 1 km. W odległości około 4 km od nieruchomości, droga krajowa nr 55 krzyżuje się z drogą krajową nr 95. Natomiast droga krajowa nr 95 w odległości około 7 km krzyżuje się z autostradą A1. Dodatkowo w promieniu około 700 m w kierunku zachodnim od obiektu przebiega linia kolejowa, a najbliższy przystanek PKP oddalony jest od nieruchomości o około 3 km. Oferowane działki tworzą jeden funkcjonalny kompleks o kształcie umożliwiającym racjonalne zagospodarowanie terenu. Nad północną częścią przedmiotu wyceny przebiega linia wysokiego napięcia, która nie powoduje znaczących utrudnień w zagospodarowaniu przedmiotu wyceny. W północnej części nieruchomości zlokalizowany został zbiornik przeciwpożarowy o powierzchni 533,09 m2 oraz pojemności czynnej 435 m3 – pod linią wysokiego napięcia. Południowa część nieruchomości jest niezagospodarowana, porośnięta roślinnością trawiastą i drzewami. Część południowa nieruchomości jest nieogrodzona. Część północna nieruchomości, na której posadowiony jest budynek produkcyjno – magazynowo – biurowy zagospodarowana, ogrodzona ogrodzeniem panelowym. Drogi wewnętrzne, place składowe i manewrowe, miejsca postojowe i ciągi piesze utwardzone kostką brukową. Przyłącza do instalacji: - energia elektryczna, - wodociągowe - z wodociągu gminnego, - odprowadzenie ścieków bytowych - 2 zbiorniki bezodpływowe. - przyłącze gazowe. Działki stanowiące przedmiot wyceny zlokalizowane są w drugiej linii zabudowy od drogi gminnej o nawierzchni nieutwardzonej i szutrowej. Działki posiadają bezpośredni dostęp do drogi publicznej – drogi gminnej stanowiącej dz. nr ew. 45, poprzez zjazd usytuowany na dz. nr ew. 51/14. Droga ta w odległości około 300 m krzyżuje się z drogą asfaltową. Dodatkowo dostęp do drogi gminnej możliwy jest przez drogę wewnętrzną stanowiącą dz. nr ew. 51/2.
Najwięcej zdjęć oferowanej nieruchomości jest na stronie www.baj-home.pl
Bezpieczeństwo i ułatwienia przy załatwianiu formalności podczas zakupu nieruchomości oparte są na precyzyjnej umowie, profesjonalnej obsłudze, naszym doświadczeniu i prostocie w otrzymaniu ewentualnego kredytu. Dołożymy wszelkich starań, aby podjęta przez Państwa decyzja o wyborze partnera biznesowego, czyli banku, była najlepsza i najkorzystniejsza, a zapisy w umowie kredytowej nie były dla Państwa zaskakujące i niejasne. Doradcy bankowi pomogą Państwu zgromadzić niezbędne dokumenty, podpisać wniosek kredytowy i wynegocjować najlepsze warunki kredytowe. Nawet po wypłaceniu środków przez bank, jak również na każdym innym etapie spłacania zobowiązania, mogą Państwo zwrócić się do nas o bezpłatną poradę.
Zapraszamy na prezentację, oferując rzetelną i profesjonalną opiekę nad całością transakcji przeprowadzonej w bezpieczny sposób przez licencjonowanego Pośrednika. Nr licencji zawodowej 22218. Posiadam ubezpieczenie OC pośrednika nieruchomości na równowartość 200 000 euro.