Mieszkanie na sprzedaż
















Szczegóły ogłoszenia
- Symbol oferty BAJ-MS-6887
- Typ oferty mieszkanie na sprzedaż
- Cena 460 000 zł
- Charakterystyka mieszkania 61.6 m2, 3 pokoje
- Budynek bliźniak; rok budowy: 2025
- Rozkład mieszkania parter piętro
- Media Ogrzewanie: pompa ciepła; Woda: jest
- Bezpieczeństwo Rolety antywłamaniowe
- Instalacje ELEKTRYCZNA, WODNA, GAZOWA
- Okna PCV
- Pokrycie dachu dachówka ceramiczna
- Stan lokalu deweloperski
- Taras taras
Lokalizacja
- Adres kujawsko-pomorskie, Grudziądz, Owczarki
Opis nieruchomości
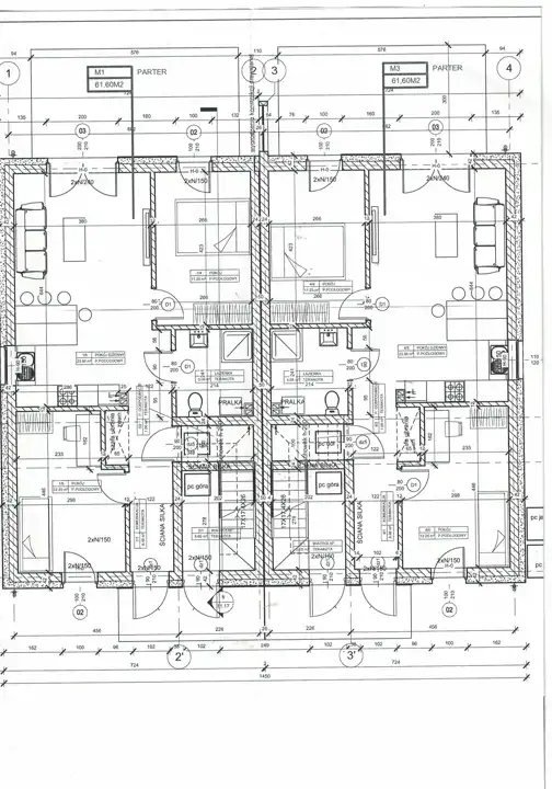
Oferujemy Państwu funkcjonalny, trzypokojowy apartament w czterolokalowym budynku jednorodzinnym w zabudowie bliźniaczej, który usytuowany jest na działce o pow. 1190 m2 przy ul. Bluszczowej, w dzielnicy Owczarki w Grudziądzu. Apartament jest położony na parterze i posiada powierzchnię użytkową 61,60 m2. Dużym atutem nieruchomości jest przynależny do apartamentu ogródek oraz 2 miejsca parkingowe przed budynkiem.
W budynku posiadamy również do sprzedaży lokal na piętrze I o powierzchni 72,61 m2 z przynależnym ogródkiem z boku budynku, balkonem o pow. 6,70 m2 i 2 miejscami parkingowymi - cena 450 000zł.
Spis pomieszczeń:
1. Komunikacja -8,48 m2
2. Salon z aneksem kuchennym -23,56 m2
3. Pokój -11,25 m2
4. Pokój -12,25 m2
5. Łazienka -5,06 m2
6. Pomieszczenie gospodarcze -1,0 m2
Razem - 61,60 m2.
Budynek wykonano w technologii tradycyjnej, murowanej i charakteryzuje się on niezwykle atrakcyjnym i funkcjonalnym układem. Ściany zewnętrzne wybudowano z bloczków z gazobetonu o grubości 24cm i ocieplono 20cm styropianem, a następnie ozdobiono białym tynkiem mineralnym i imitacją drewna. Kopertowy, drewniany dach pokryto dachówką BRAAS i ocieplono 40 cm wełną celulozową poprzez metodę wdmuchiwania. Sufit na parterze wykonano z prefabrykowanych, żelbetowych płyt, a na poddaszu zastosowano konstrukcję lekką. Ściany zewnętrzne wykonane zostały z bloczków gazobetonu o grubości 24 cm, a ścianki działowe z gazobetonu o grubości 12 cm. Ściany i sufity (oprócz konstrukcji lekkich) w pomieszczeniach zostaną wykończone tynkiem maszynowym Knauf.. Zamontowano okna trzyszybowe, rolety i antywłamaniowe drzwi wejściowe. Trzyszybowe okna (Aluplast) z ciepłym montażem będą w kolorze antracytowym. We wszystkich oknach zamontowano zewnętrzne rolety z napędem elektrycznym, sterowane włącznikami.
Każdy apartament wyposażony zostanie w instalację ogrzewania podłogowego zasilaną pompą ciepła powietrze-woda ze zbiornikiem c.w.u. o pojemności 200 L. Podłączono również instalację elektryczną bez osprzętu, alarmową bez osprzętu, telewizyjną oraz kanalizację miejską. Budynek posiadać będzie podłączenie do miejskiej sieci elektroenergetycznej i wodnej. Od strony ogrodu wykonany zostanie taras rekreacyjny z kostki, a od frontu podjazd przed budynkiem z miejscami parkingowymi z kostki. Nabywcy lokalu mieszkalnego zgodnie z aktem notarialnym, nabędą prawo do wyłącznego korzystania z 2 miejsc parkingowych i ogródka.
Apartamenty na poddaszu będą posiadały balkon z balustradą wypełniona hartowanym szkłem w kolorze grafitowym. Teren nieruchomości został ogrodzony czarnym ogrodzeniem panelowym z podmurówka betonową.
W ofercie zamieszczone są zdjęcia z ukończonych już budynków o tym samym projekcie (ale z niewielkimi zmianami kolorystycznymi z zewnątrz budynku), tego samego wykonawcy.
Oddanie budynku do użytkowania nastąpi nie później niż do końca 2026 roku.
Kupujący nie płaci podatku PCC !
Oferta na wyłączność biura nieruchomości BAJ HOME.
Bezpieczeństwo i ułatwienia przy załatwianiu formalności podczas zakupu nieruchomości oparte są na precyzyjnej umowie, profesjonalnej obsłudze, naszym doświadczeniu i prostocie w otrzymaniu ewentualnego kredytu. Dołożymy wszelkich starań, aby podjęta przez Państwa decyzja o wyborze partnera biznesowego, czyli banku, była najlepsza i najkorzystniejsza, a zapisy w umowie kredytowej nie były dla Państwa zaskakujące i niejasne. Doradcy bankowi pomogą Państwu zgromadzić niezbędne dokumenty, podpisać wniosek kredytowy i wynegocjować najlepsze warunki kredytowe.